Vuokrataan varastotilat - Lahti
Upo 2 Logistiikkatalo, Valimonkatu 2, 15100 Lahti #10803253
Lahden Askonalueella sijaitsevassa logistiikkakiinteistössä vuokrattavana tuotanto- ja varastotilaa. Oma liittymä valtatieltä. Sopii moneen käyttötarkoitukseen.
Osoite
Valimonkatu 2, 15100 Lahti
Tilatyyppi
Varastotilaa
500 - 14500 m2
Tilajako
Jaettavissa
Pohjapiirros
Kiinteistö
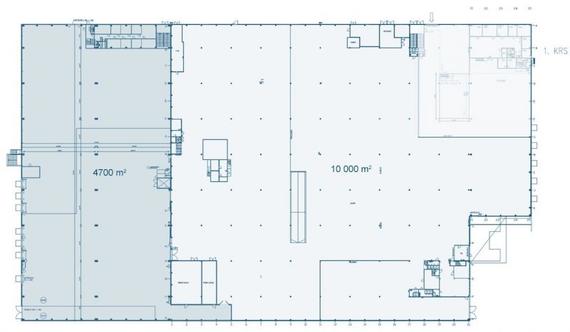
Korkea varasto n. 4500 m2, jonka vapaa korkeus n. 10 metriä. Tilassa maantasossa oleva 5×4 metriä oleva taitto-ovi sekä 7 lastaustaskua. Hallin sisällä mahdollisuus rekan sivupurkamiseen (länsipäässä).
Matalalla puolella vuokrattavissa varastotilaa noin 10 000 m2. Matalan puolen tila mahdollista jakaa useammaksi pienemmäksi vuokratilaksi 500-10 000 m2. Tilassa kolme (3-5) lastaustaskua sekä lastauslaituri.
Matalalla puolella vuokrattavissa varastotilaa noin 10 000 m2. Matalan puolen tila mahdollista jakaa useammaksi pienemmäksi vuokratilaksi 500-10 000 m2. Tilassa kolme (3-5) lastaustaskua sekä lastauslaituri.
Sijainti
Askonalueen sijainti ja yhteydet ovat logistisesti loistavat: kuljetusliikennettä palvelevat Vt 12 Lahden eteläinen kehätie sekä E75 Lahti-Helsinki-moottoritie. Kuljetus ja tavaroiden liikuttaminen on vaivatonta toimivien piha- ja väylärakenteiden vuoksi.
Palvelut
Askonalue on yksi Lahden talousalueen nopeimmin kasvavista yrityskeskittymistä. Tarjoamme asiakkaillemme valmiita, ainutlaatuisesti uudistettuja tiloja tai voimme toteuttaa asiakkaan tarpeiden mukaan räätälöityjä tilaratkaisuja. Askonalueella toimii noin 250 yritystä, ja asiakastyytyväisyys on pysynyt kehittyvällä alueella korkeana. Askonalueella toimii kaksi lounasravintolaa. Vuokrattavissa myös kokous- ja juhlatilaa.
Muuta
Askonalueella on vuokrattavana eri kokoisia toimisto-, tuotanto- ja varastotiloja. Pystymme tarjoamaan tiloja valmiina tai suunnittelemalla ratkaisuja niin sanottuun raakatilaan.
Alueelle on mahdollista rakentaa myös täysin uutta tuotanto- ja varastotilaa.
Renor toteuttaa kasvollisesti ja kestävästi asiakaslähtöisiä toimitilaratkaisuja uuden elinkaaren ansaitsevissa historiallisissa kaupunkikiinteistöissä.
Alueelle on mahdollista rakentaa myös täysin uutta tuotanto- ja varastotilaa.
Renor toteuttaa kasvollisesti ja kestävästi asiakaslähtöisiä toimitilaratkaisuja uuden elinkaaren ansaitsevissa historiallisissa kaupunkikiinteistöissä.
Vapautuu
Heti
Kerros
1 / 1
Katutasossa
Jaettavissa
Lastauslaituri
Ota yhteyttä
Renor Oy
Askonkatu 9
15100 Lahti
Simo Niemelä
kiinteistöjohtaja
puhelin
Näytä puhelinnumero
+358 40 869 1096
Pyydä lisätietoa
