Vuokrataan liiketilat - Helsinki
Yrjönkatu 23 A, Kamppi, 00100 Helsinki #10803019
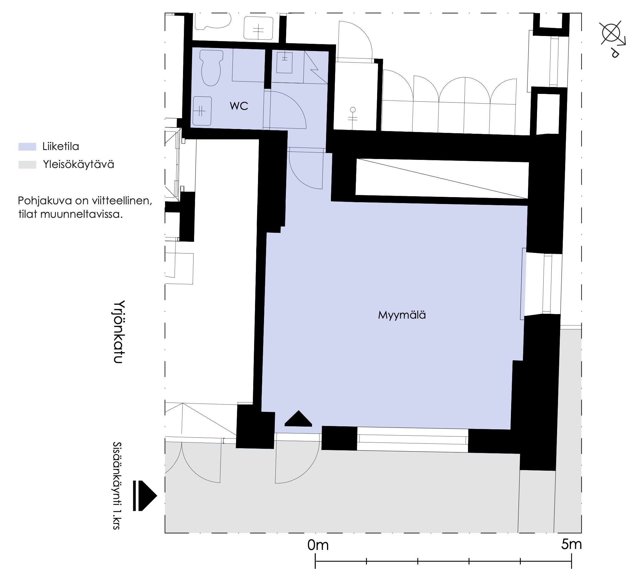
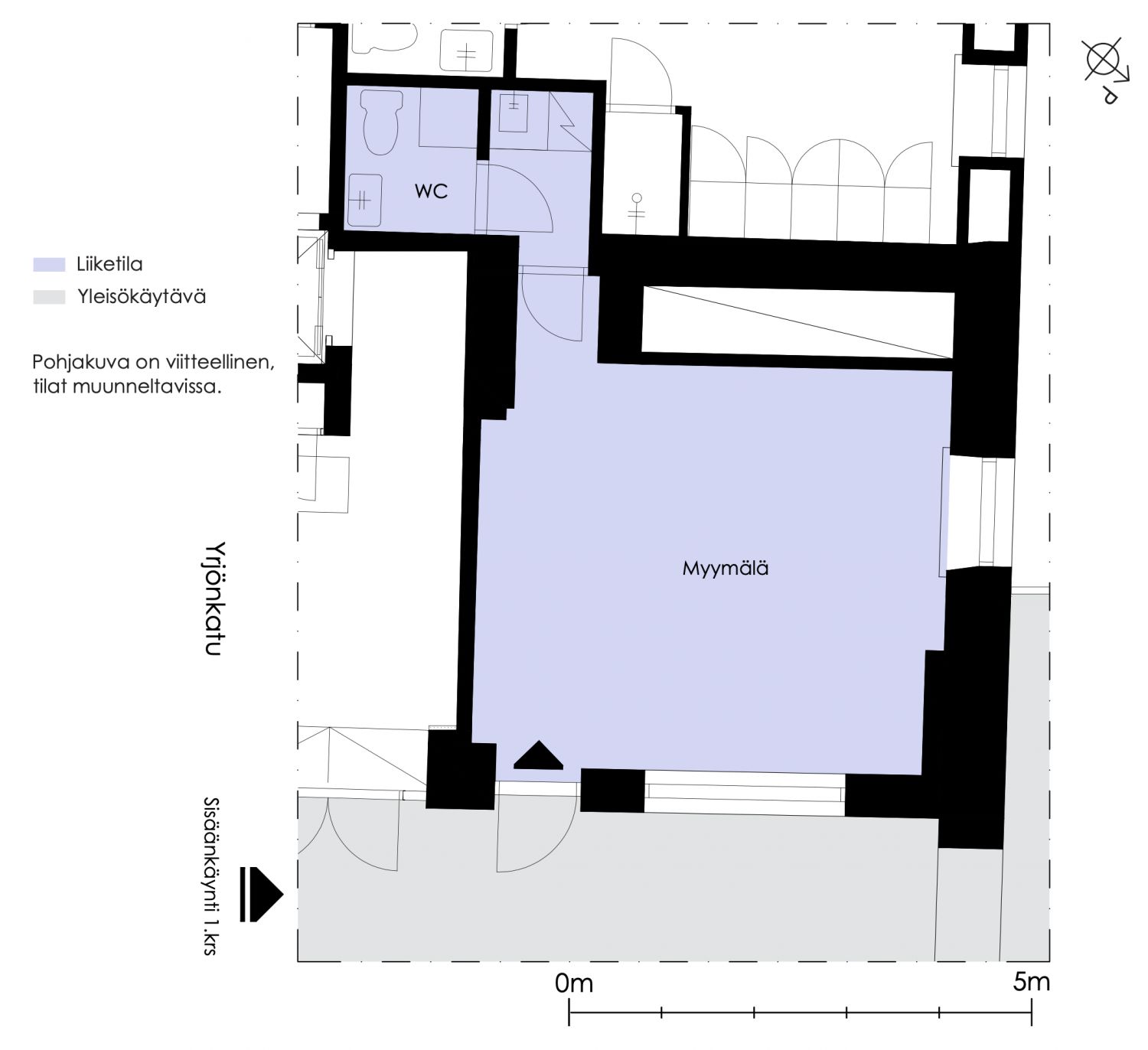
Persoonallinen ja viehättävä pieni liiketila Forumin Yrjönkäytävällä. Ihanteellinen esim. kukka- tai lahjatavarakaupalle. Tilan tekniikka ei mahdollista ruoan valmistusta tai kuumennusta.
Osoite
Yrjönkatu 23 A, 00100 Helsinki
Tilatyyppi
Liiketilaa
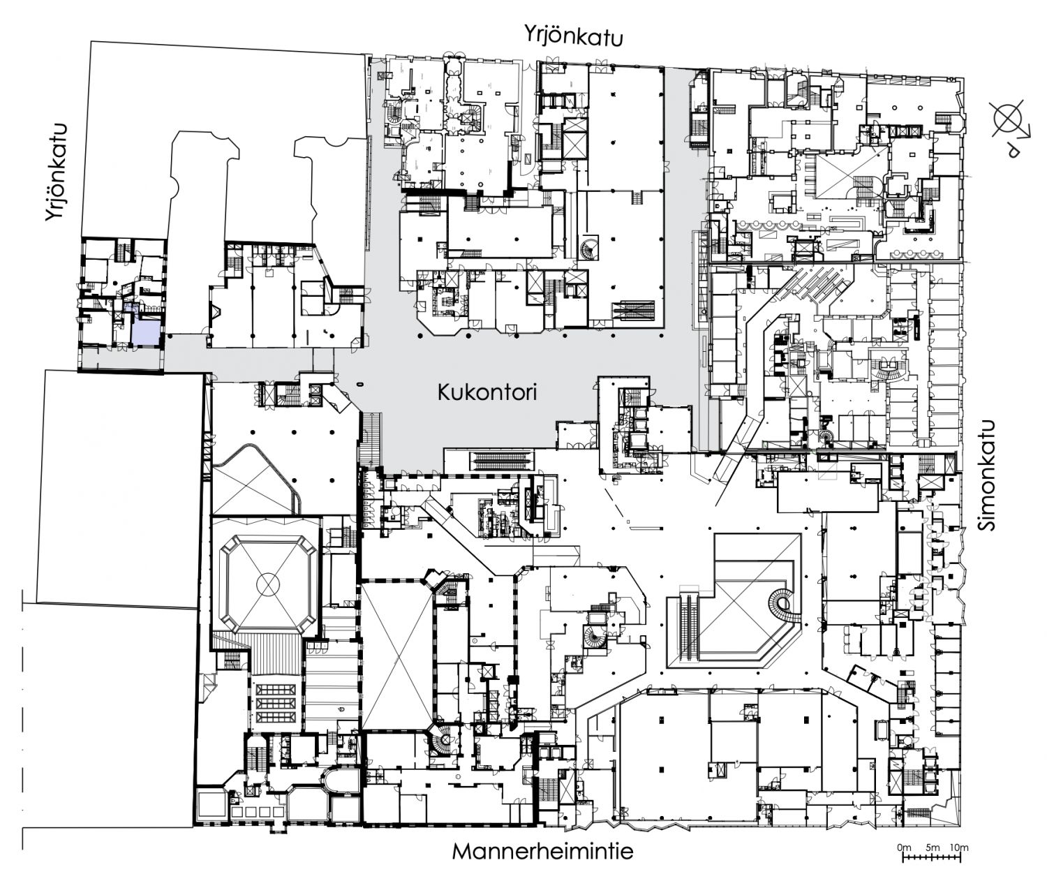
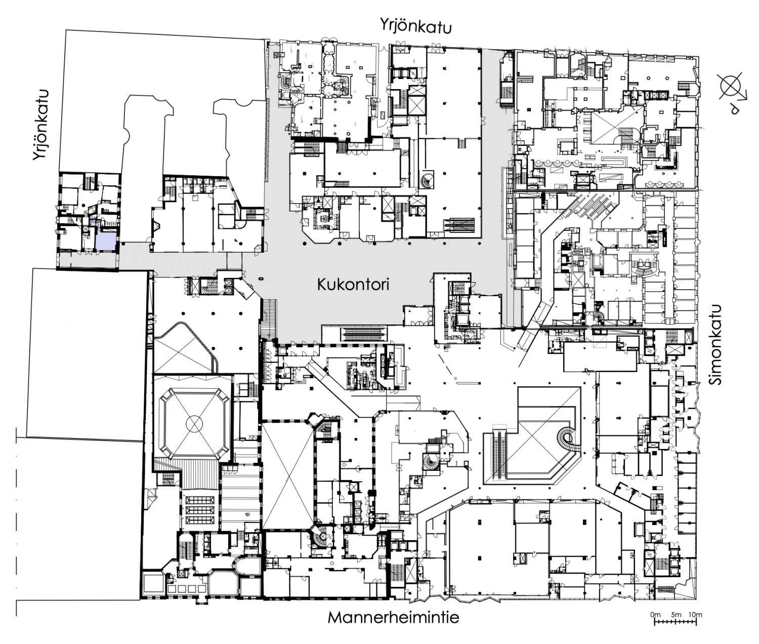
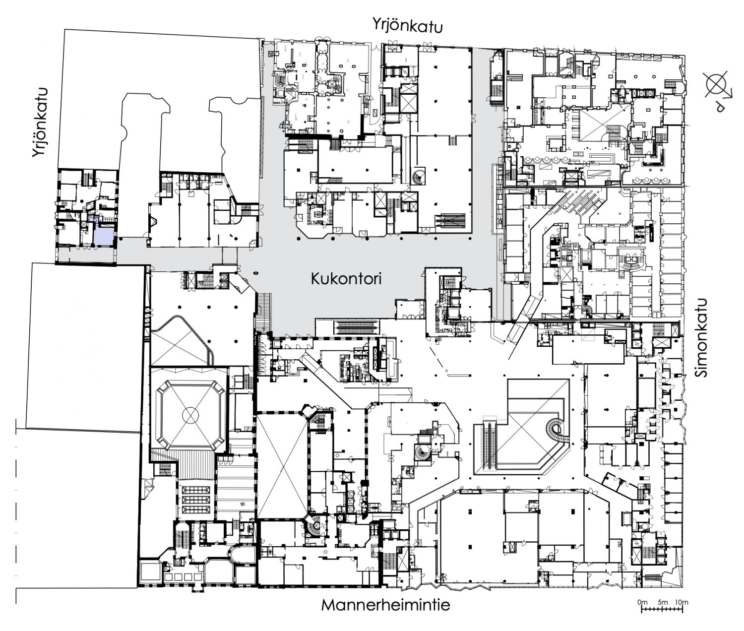
27 m2
Pohjapiirros
Kiinteistö
Helsingin keskeisimmällä paikalla sijaitsevassa jugendkiinteistössä on persoonallisia yksityiskohtia ja pitkän kulttuuriperinteen tuomaa arvokkuutta.
Yrjönkatu 23 valmistui vuonna 1908 ja edustaa 1900-luvun alun tanskalaisvaikutteista jugendia. Mannerheimintie 16 puoleinen osa on valmistunut 1890. Sisäpihan 1920-luvulla valmistuneessa entisessä elokuvasalissa toimivat nyt yökerho ja ravintola. Forum-korttelin ainutlaatuinen kokonaisuus muodostuu kuudesta kiinteistöstä. Helsingin keskeisimmällä paikalla sijaitsevissa rakennuksissa on persoonallisia yksityiskohtia ja pitkän kulttuuriperinteen tuomaa arvokkuutta.
Kaikille Forum-korttelin kiinteistöille on myönnetty BREEAM In-Use Excellent -tason ympäristösertifikaatti. BREEAM (Building Research Establishment Environmental Assessment Method) on kansainvälinen rakennusten ympäristöluokitusjärjestelmä, joka tähtää rakennuksen käytön ympäristövaikutusten vähentämiseen sekä terveellisempien työympäristöjen kehittämiseen.
Forum-kortteli on myös täysin hiilineutraali käytön aikaisen energiankulutuksen osalta.
Yrjönkatu 23 valmistui vuonna 1908 ja edustaa 1900-luvun alun tanskalaisvaikutteista jugendia. Mannerheimintie 16 puoleinen osa on valmistunut 1890. Sisäpihan 1920-luvulla valmistuneessa entisessä elokuvasalissa toimivat nyt yökerho ja ravintola. Forum-korttelin ainutlaatuinen kokonaisuus muodostuu kuudesta kiinteistöstä. Helsingin keskeisimmällä paikalla sijaitsevissa rakennuksissa on persoonallisia yksityiskohtia ja pitkän kulttuuriperinteen tuomaa arvokkuutta.
Kaikille Forum-korttelin kiinteistöille on myönnetty BREEAM In-Use Excellent -tason ympäristösertifikaatti. BREEAM (Building Research Establishment Environmental Assessment Method) on kansainvälinen rakennusten ympäristöluokitusjärjestelmä, joka tähtää rakennuksen käytön ympäristövaikutusten vähentämiseen sekä terveellisempien työympäristöjen kehittämiseen.
Forum-kortteli on myös täysin hiilineutraali käytön aikaisen energiankulutuksen osalta.
Sijainti
Kiinteistö sijaitsee aivan Helsingin ydinkeskustassa. Bussit, raitiovaunut, junat ja metro ovat välittömässä läheisyydessä tai muutaman minuutin kävelymatkan päässä. Forum-kortteli on Helsingin vilkkaimpia läpikulkupaikkoja. Sieltä on kulkutunneliyhteys muualle keskustaan, kuten päärautatieasemalle ja Kampin liikenneterminaaliin.
Pysäköinti
Forum-P
Palvelut
Korttelissa on kattava valikoima kaupanalan toimijoita sekä palveluita terveyden- ja kauneudenhoidosta kahviloihin ja ravintoloihin. Kaikki Kauppakeskus Forumin ja ydinkeskustan palvelut ovat lähellä.
Kulkuyhteydet
Lähimmälle bussipysäkille 250 m
Lähimmälle juna-asemalle 500 m
Lähimmälle metroasemalle 400 m
Lähimmälle raitiovaunupysäkille 150 m
Lentokentälle 30 min
Lähimmälle juna-asemalle 500 m
Lähimmälle metroasemalle 400 m
Lähimmälle raitiovaunupysäkille 150 m
Lentokentälle 30 min
Vapautuu
Kysy
Rakennusvuosi
1908
Kerros
1
Energiatehokkuusluokka
B2018 (liiketilat) C2018 (toimistot)
Ympäristöluokitus
BREEAM In-Use Excellent,GRESB Global Sector Leader 2025
Ota yhteyttä
Sponda Oy
Yrjönkatu 29C, 00100 Helsinki
Näytä puhelinnumero
020 43131
Harri Autio
Director, Leasing
Näytä puhelinnumero
+358 40 846 6560
Heidi Svartsjö
Leasing Manager, Retail
Näytä puhelinnumero
+35850 012 1183
Sponda Oy
https://www.sponda.fiPyydä lisätietoa
