Vuokrataan toimistotilat - Helsinki
Helsingin Yrittäjätalo, Työpajankatu 10, Kalasatama, 00580 Helsinki #10803001
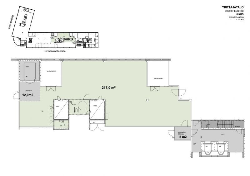
Siisti kuudennen kerroksen 224 m² toimisto, loistavien yhteyksien varrella Kalasatamassa.
Osoite
Työpajankatu 10, 00580 Helsinki
Tilatyyppi
Toimistotilaa
224 m2
Tilajako
Jaettavissa
Kiinteistö
Siisti toimisto joka koostuu avotilasta, keittiöstä sekä wc-tiloista.
Helsingin Yrittäjätalo on usean käyttäjän toimistotalo, joka sijaitsee hyvien kulkuyhteyksien varrella keskustan läheisyydessä, Kalasataman metroasemaa vastapäätä.
Tiloihin on toteutettu täydellinen remontti, jossa tiloihin tuodaan mm. moderni talotekniikka, ilmanvaihto ja -jäähdytys sekä valaistusratkaisut. Toimitilat rakennetaan laadukkailla ratkaisuilla ja asiakaskohtaiset tilatarpeet huomioiden. Talon runko mahdollistaa erikokoisten huoneiden rakentamisen tehokkaasti. Tiloissamme on uniikkeja yksityiskohtia kuten ainoana talossa kahden kerroksen korkuinen näyttävä aulatila sekä kaareva lasikulma.
Kattavat ravintolapalvelut ja neuvottelutilat löytyvät läheltä Rantatie Business Parkista sekä Lindström Talosta ja Kalasataman Kummelista.
Helsingin Yrittäjätalo on usean käyttäjän toimistotalo, joka sijaitsee hyvien kulkuyhteyksien varrella keskustan läheisyydessä, Kalasataman metroasemaa vastapäätä.
Tiloihin on toteutettu täydellinen remontti, jossa tiloihin tuodaan mm. moderni talotekniikka, ilmanvaihto ja -jäähdytys sekä valaistusratkaisut. Toimitilat rakennetaan laadukkailla ratkaisuilla ja asiakaskohtaiset tilatarpeet huomioiden. Talon runko mahdollistaa erikokoisten huoneiden rakentamisen tehokkaasti. Tiloissamme on uniikkeja yksityiskohtia kuten ainoana talossa kahden kerroksen korkuinen näyttävä aulatila sekä kaareva lasikulma.
Kattavat ravintolapalvelut ja neuvottelutilat löytyvät läheltä Rantatie Business Parkista sekä Lindström Talosta ja Kalasataman Kummelista.
Kulkuyhteydet
Metroasema alle 100 m, Raitiovaunupysäkki 900 m, Bussipysäkki alle 100 m, Juna-asema 3,2 km, Lentoasema 17 km
Muuta
Ei lain edellyttämää energiatodistusta
Vapautuu
Heti
Kerros
6
Energiatehokkuusluokka
Ei lain edellyttämää energiatodistusta
Näkyvällä paikalla
Jaettavissa
Hissi
Ota yhteyttä
ScanReal Oy LKV
Opus Business Park
Hitsaajankatu 24
00810 Helsinki
info@scanreal.fi
Puh:
Näytä puhelinnumero
020 730 8830
Sopivat toimitilat yhdellä otolla!
Kartoitamme toimitilatarpeesi ja etsimme yrityksellesi parhaiten sopivat vapaat toimitilat. Koska vuokranantajat maksavat palvelumme, on tämä yrityksellesi veloituksetonta.
OTA YHTEYTTÄ - SOVI NÄYTTÖ!
Kaikki kohteemme eivät ole netissä, kerro tilatarpeesi niin kartoitamme vaihtoehdot.
Palvelumme on tilanhakijalle ilmainen
Pyydä lisätietoa
