Vuokrataan toimistotilat - Espoo
Polaris Business Park - Capella, Vänrikinkuja 3, Perkkaa, 02600 Espoo #10802990
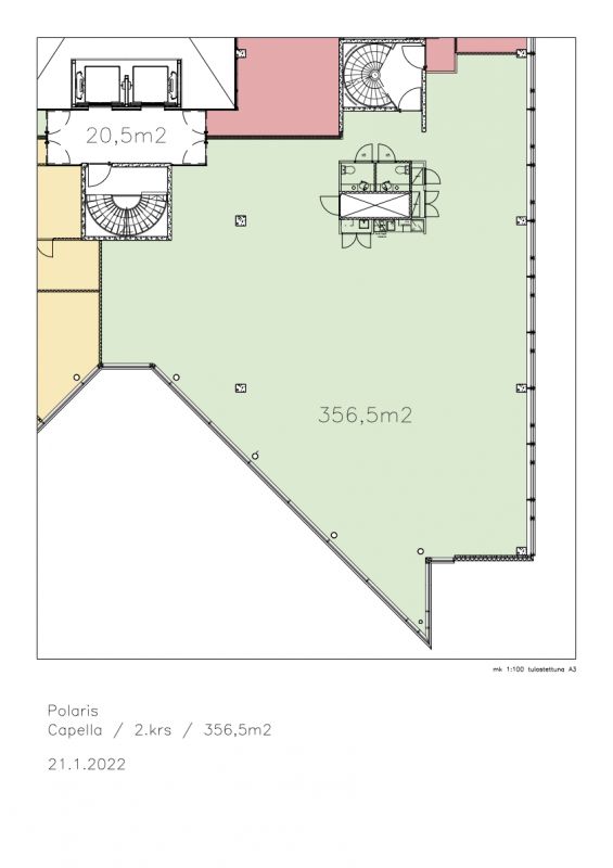
Moderni ja valoisa 363 m² toimistotila Polaris Business Parkin Capella-talossa.
Osoite
Vänrikinkuja 3, 02600 Espoo
Tilatyyppi
Toimistotilaa
363 m2
Pohjapiirros
Kiinteistö
Tasokas Business Park erinomaisten kulkuyhteyksien varrella, lähellä Leppävaaraa.
Vuokralaisilla on käytettävissä laadukas ja kattava palveluvalikoima mukaan lukien aulapalvelu, lounasravintola ja kuntosali. Polaris sijaitsee näkyvällä paikalla, erinomaisten kulkuyhteyksien varrella Espoossa ja oman sähköauton lataus onnistuu myös pysäköintihallissa. Kiinteistö on Breeam In-Use sertifioitu arvosanalla Very Good.
Vuokralaisilla on käytettävissä laadukas ja kattava palveluvalikoima mukaan lukien aulapalvelu, lounasravintola ja kuntosali. Polaris sijaitsee näkyvällä paikalla, erinomaisten kulkuyhteyksien varrella Espoossa ja oman sähköauton lataus onnistuu myös pysäköintihallissa. Kiinteistö on Breeam In-Use sertifioitu arvosanalla Very Good.
Kulkuyhteydet
Bussipysäkki 200 m, Juna-asema 1 km, Lentoasema 19,3 km
Vapautuu
Heti
Kerros
2 / 6
Energiatehokkuusluokka
Ei lain edellyttämää energiatodistusta
Näkyvällä paikalla
Hissi
Ota yhteyttä
ScanReal Oy LKV
Opus Business Park
Hitsaajankatu 24
00810 Helsinki
info@scanreal.fi
Puh:
Näytä puhelinnumero
020 730 8830
Sopivat toimitilat yhdellä otolla!
Kartoitamme toimitilatarpeesi ja etsimme yrityksellesi parhaiten sopivat vapaat toimitilat. Koska vuokranantajat maksavat palvelumme, on tämä yrityksellesi veloituksetonta.
OTA YHTEYTTÄ - SOVI NÄYTTÖ!
Kaikki kohteemme eivät ole netissä, kerro tilatarpeesi niin kartoitamme vaihtoehdot.
Palvelumme on tilanhakijalle ilmainen
Pyydä lisätietoa
