Vuokrataan toimistotilat - Helsinki
Atomitie 5, Pitäjänmäki, 00370 Helsinki #10802817
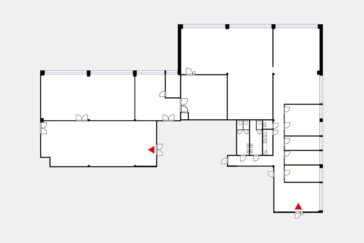
Tervetuloa suunnittelemaan uusi toimistonne! Tämä kuudennen kerroksen tila tarjoaa toimivan ja valoisan aihion toimistolle, joka voidaan muokata vastaamaan juuri teidän tarpeitanne. Huoneistossa on omat wc-tilat sekä keittiö. Älä anna pohjakuvan hämätä, tilan lopullinen toteutus on teistä kiinni. E-portaan kautta toimistosta on tavarahissiyhteys talon lastauslaiturille.
Atomitie 5:stä löytyy aulapalvelu sekä vuokrattavia neuvottelutiloja. Työpäivän kulkua sujuvoittaa lounasravintola, ja catering-palvelu mahdollistaa myös kokouseväiden helpon hankkimisen. Tältä kiinteistöltä löytyy vapaata toimistotilaa aina 12 neliömetrin pientoimistosta ylöspäin. Myös erilaisia tuotantotilan kokonaisuuksia lastauslaiturilla sekä tavarahissillä löytyy, joten kysyttehän meiltä lisää erilaisista joustavista tilaratkaisuista!
Me Croisettella autamme teitä löytämään teille parhaat tilat! Olemme puolueettomia asiantuntijoita ja tunnemme toimitilamarkkinat, talot sekä tilat vankalla kokemuksella. Meillä on välityksessä kaikki toimitilat ja tiedämme niiden alustavat vuokratasot.
Tehtävämme on tehdä toimitilahaustanne onnistunut ja helppo. Saamme palkkiomme kiinteistönomistajalta, joten sinulle palvelumme on täysin maksuton.
Hissi
Croisette Real Estate Partner
Erottajankatu 5 A 6, 00130 Helsinki
Näytä puhelinnumero
+358 400 585 857
Croisette Vuokraus
Näytä puhelinnumero
+358400585857
