Vuokrataan toimistotilat - Jyväskylä
Lutakonaukio 7, 40100 Jyväskylä #10802561
Vuokrattavana moderni toimistotila Jyväskylän Lutakossa – Erinomainen sijainti ja palvelut!
Osoite
Lutakonaukio 7, 40100 Jyväskylä
Tilatyyppi
Toimistotilaa
193 m2
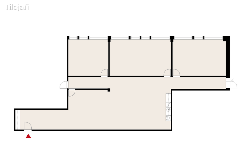
Pohjapiirros
Vuokra
Hintatiedot pyydettäessä!
Vuokraan sisältyy lämpö
Kiinteistö
Tarjoamme vuokrattavaksi tilavan 193 m² toimistotilan Innova 2 -talosta, joka sijaitsee Jyväskylän Lutakossa. Tämä 3. kerroksen tila tarjoaa upeat näkymät keskustaan päin ja on suunniteltu tukemaan tehokasta työskentelyä nykyaikaisessa ympäristössä.
Kohteen tiedot:
+ Osoite: Lutakonaukio 7, Lutakko, 40100 Jyväskylä
+ Tilatyyppi: Toimisto
+ Pinta-ala: 193 m²
+ Kerros: 3. kerros
+ Vapautuminen: Vapautumassa oleva
Tervetuloa tutustumaan tähän toimistotilaan, joka tarjoaa erinomaiset puitteet liiketoiminnallesi. Ota meihin yhteyttä, niin sovitaan esittelyaika ja keskustellaan lisää tilasta ja sen mahdollisuuksista.
Kohteen tiedot:
+ Osoite: Lutakonaukio 7, Lutakko, 40100 Jyväskylä
+ Tilatyyppi: Toimisto
+ Pinta-ala: 193 m²
+ Kerros: 3. kerros
+ Vapautuminen: Vapautumassa oleva
Tervetuloa tutustumaan tähän toimistotilaan, joka tarjoaa erinomaiset puitteet liiketoiminnallesi. Ota meihin yhteyttä, niin sovitaan esittelyaika ja keskustellaan lisää tilasta ja sen mahdollisuuksista.
Sijainti
Kohde sijaitsee hyvien kulkuyhteyksien varrella, mikä tekee siitä helposti saavutettavan sekä omalla autolla että julkisilla liikennevälineillä. Jyväskylän keskustan palvelut ja juna-asema ovat vain lyhyen matkan päässä.
Pysäköinti
Pysäköintipaikkana toimii ensisijaisesti Jyväs-Parkin Paviljonki 1 ja 2 -pysäköintitalot.
Palvelut
Kiinteistönpalvelut:
- Catering
- Vuokrattavia neuvottelutiloja
- Aulapalvelu
- Catering
- Vuokrattavia neuvottelutiloja
- Aulapalvelu
Vapautuu
Vapautumassa oleva
Kerros
3
Energiatehokkuusluokka
Ei lain edellyttämää energiatodistusta
Näkyvällä paikalla
Ota yhteyttä
Arvo Premises Oy
Joakim Kukkonen
Osakas, Toimitilavälittäjä
Näytä puhelinnumero
040 555 8106
Seppo Pakarinen
Osakas, Kiinteistönvälittäjä. LKV, YKV, AKA
Näytä puhelinnumero
040-703 8000
Pyydä lisätietoa
