Vuokrataan toimistotilat - Helsinki
Atomitie 5, Pitäjänmäki, 00370 Helsinki #10802554
Siisti ja valoisa, 2. kerroksen toimisto hyvällä paikalla Pitäjänmäessä.
Osoite
Atomitie 5, 00370 Helsinki
Tilatyyppi
Toimistotilaa
278 m2
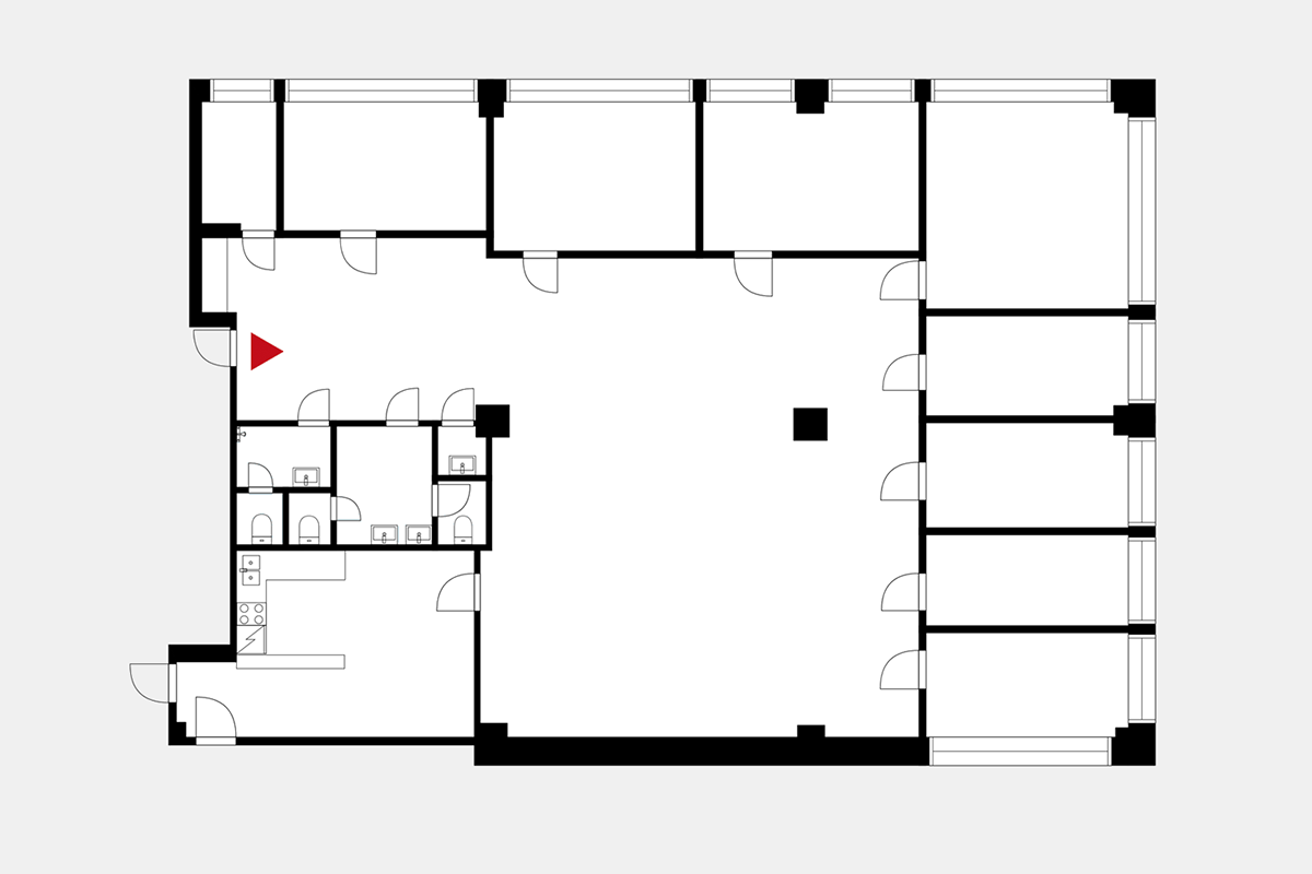
Pohjapiirros
Kiinteistö
Saneerattava toimistotila, josta löytyy muun muassa yhdeksän erillistä toimistohuonetta, avotilaa, keittiö sekä wc-tilat. Tilaa on tarvittaessa mahdollista muokata käyttäjän yksilölliset toiveet täyttäväksi.
Atomitie 5 on yritystalo jossa sekä yritykset että työntekijät viihtyvät.
Yhteydet kaikille Helsingin pääväylille ovat hyvät ja talo itsessään on
suunniteltu mahdollisimman käytännölliseksi ja toimivaksi. Talossa on helppo yhdistellä erilaisia asiakas-, toimisto- ja huoltotiloja.
Yritysten huolto- ja varastotilat optimoidaan niiden käyttötarkoituksen perusteella ja niistä on hyvät kulkuyhteydet lastauslaitureille vieville tavarahisseille.
Talossa on nykyaikainen hälytysjärjestelmä sekä tallentava videonauhoitus kaikissa sisäänkäynneissä. Videolle tallentuu myös liikkuminen lastauslaitureilla.
Ykköskerroksessa sisääntuloaulan vieressä on talon laadukas ja
monipuolinen lounasravintola. Viidennen kerroksen kokousmaailma tarjoaa talon käyttäjille monipuoliset kokoustilat ja palvelut.
Atomitie 5 on yritystalo jossa sekä yritykset että työntekijät viihtyvät.
Yhteydet kaikille Helsingin pääväylille ovat hyvät ja talo itsessään on
suunniteltu mahdollisimman käytännölliseksi ja toimivaksi. Talossa on helppo yhdistellä erilaisia asiakas-, toimisto- ja huoltotiloja.
Yritysten huolto- ja varastotilat optimoidaan niiden käyttötarkoituksen perusteella ja niistä on hyvät kulkuyhteydet lastauslaitureille vieville tavarahisseille.
Talossa on nykyaikainen hälytysjärjestelmä sekä tallentava videonauhoitus kaikissa sisäänkäynneissä. Videolle tallentuu myös liikkuminen lastauslaitureilla.
Ykköskerroksessa sisääntuloaulan vieressä on talon laadukas ja
monipuolinen lounasravintola. Viidennen kerroksen kokousmaailma tarjoaa talon käyttäjille monipuoliset kokoustilat ja palvelut.
Sijainti
Yhteydet Helsingin kaupunkialueelle sekä myös kehäteille ja kaikille
pääkaupungista lähteville ulosmenoväylille ovat sujuvat. Tästä hyötyvät sekä talossa työskentelevä henkilöstö että asiakkaat ja myös Atomitie 5:n toimintaan liittyvä logistiikka.
Monilla yrityksillä ympäristöasiat on kirjattu toimintastrategiaan ja kiinteistössä pyritään olemaan mahdollisimman ympäristöystävällisiä ja energiatehokkaita. Kaikki jäte lajitellaan, eikä sekajäteastioita ole lainkaan. Myös valaistuksen ja lämmityksen osalta on pyritty olemaan mahdollisimman energiatehokkaita. Talo on Breem-sertifioitu “Good”-pisteillä.
pääkaupungista lähteville ulosmenoväylille ovat sujuvat. Tästä hyötyvät sekä talossa työskentelevä henkilöstö että asiakkaat ja myös Atomitie 5:n toimintaan liittyvä logistiikka.
Monilla yrityksillä ympäristöasiat on kirjattu toimintastrategiaan ja kiinteistössä pyritään olemaan mahdollisimman ympäristöystävällisiä ja energiatehokkaita. Kaikki jäte lajitellaan, eikä sekajäteastioita ole lainkaan. Myös valaistuksen ja lämmityksen osalta on pyritty olemaan mahdollisimman energiatehokkaita. Talo on Breem-sertifioitu “Good”-pisteillä.
Pysäköinti
Autohalli ja pihapysäköinti
Palvelut
Pitäjänmäen palvelut kävelyetäisyydellä.
Kulkuyhteydet
Liikenne: Valimon asema 0,2 km, Vihdintie 0,4 km, Pitäjänmäen asema 0,8 km, Kehä I 1,5 km, Leppävaara 3,0 km, Helsingin keskusta 9,0 km, Lentoasema 15 km
Vapautuu
Heti
Kerros
2
Energiatehokkuusluokka
Ei lain edellyttämää energiatodistusta
Hissi
Lastauslaituri
Ota yhteyttä
ScanReal Oy LKV
Opus Business Park
Hitsaajankatu 24
00810 Helsinki
info@scanreal.fi
Puh:
Näytä puhelinnumero
020 730 8830
Sopivat toimitilat yhdellä otolla!
Kartoitamme toimitilatarpeesi ja etsimme yrityksellesi parhaiten sopivat vapaat toimitilat. Koska vuokranantajat maksavat palvelumme, on tämä yrityksellesi veloituksetonta.
OTA YHTEYTTÄ - SOVI NÄYTTÖ!
Kaikki kohteemme eivät ole netissä, kerro tilatarpeesi niin kartoitamme vaihtoehdot.
Palvelumme on tilanhakijalle ilmainen
Pyydä lisätietoa
