Vuokrataan toimistotilat - Oulu
Kasarmintie 13 D, Keskusta, 90101 Oulu #10802537
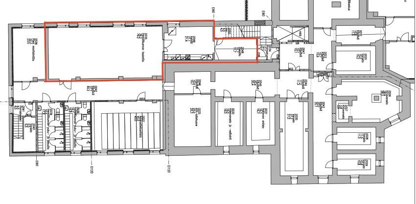
112 m² avaraa toimistotilaa Lasaretin saaressa
Osoite
Kasarmintie 13 D, 90101 Oulu
Tilatyyppi
Toimistotilaa
112 m2
Pohjapiirros
Vuokra
790 + alv.
Kiinteistö
112 m² avaraa toimistotilaa Lasaretin saaressa
Avara kellarikerroksen 112 m² tila mikä sopii hyvin esimerkiksi toimisto-, vastaanotto- tai varastotilaksi. Tilassa on oma keittiö ja taukotila. Pukuhuoneet ja wc kuuluu yhteiskäyttötiloihin ja sisältyvät vuokraan. Tilan yläosassa ikkunat tuovat luonnonvaloa huoneistoon.
Sijainti
Kohde sijaitsee uniikissa Lasaretin saaressa Hupisaarten kainalossa. Pihapiiri huokuu historiaa ja rauhoittavaa tunnelmaa. Lasaretin saari on kävelymatkan päässä Oulun keskustasta. Pihassa on pyörille pihalla ja siihen voi myös vuokrata pysäköintioikeuden. Vierailla on mahdollisuus tunnin ilmaiseen pysäköintiin.
Tästäkö sinulle toimiva ja viihtyisä tukikohta? Ota yhteyttä niin mennään paikan päälle katsomaan.
Avara kellarikerroksen 112 m² tila mikä sopii hyvin esimerkiksi toimisto-, vastaanotto- tai varastotilaksi. Tilassa on oma keittiö ja taukotila. Pukuhuoneet ja wc kuuluu yhteiskäyttötiloihin ja sisältyvät vuokraan. Tilan yläosassa ikkunat tuovat luonnonvaloa huoneistoon.
Sijainti
Kohde sijaitsee uniikissa Lasaretin saaressa Hupisaarten kainalossa. Pihapiiri huokuu historiaa ja rauhoittavaa tunnelmaa. Lasaretin saari on kävelymatkan päässä Oulun keskustasta. Pihassa on pyörille pihalla ja siihen voi myös vuokrata pysäköintioikeuden. Vierailla on mahdollisuus tunnin ilmaiseen pysäköintiin.
Tästäkö sinulle toimiva ja viihtyisä tukikohta? Ota yhteyttä niin mennään paikan päälle katsomaan.
Vapautuu
Kysy
Liitetiedostot
Ota yhteyttä
Logistila Oy
Kiilakiventie 1, 90250 OULU
Sami Karppinen
Näytä puhelinnumero
+358401994722
Pyydä lisätietoa
