Vuokrataan - Helsinki
Kaikukatu 3, Kallio, 00530 Helsinki #10802439
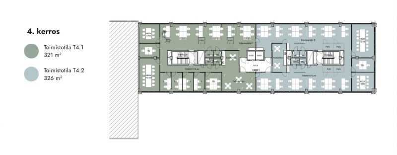
Kaikukatu 3:ssa neljännen kerroksen 326 m² toimistotila tarjoaa monipuoliset tilaratkaisut näkyvällä paikalla Helsingin Kalliossa. Tila on avara ja muunneltavissa. Kiinteistö sijaitsee vilkkaalla alueella hyvien liikenneyhteyksien varrella, ja lähellä on runsaasti palveluita. Tämä toimitila on ihanteellinen valinta yritykselle, joka etsii modernia ja helposti saavutettavaa tilaa Helsingin keskustan tuntumasta.
Kysy lisää: jouko.raitanen@rhg.fi/0504695444
Osoite
Kaikukatu 3, 00530 Helsinki
Vapautuu
Kysy
Huoneiden lukumäärä
1
Energiatehokkuusluokka
Ei lain edellyttämää energiatodistusta
Ota yhteyttä
RHG Real Estate
Hämeenkatu 2 B20, 20500 Turku
Näytä puhelinnumero
020 734 4020
Jouko Raitanen
Näytä puhelinnumero
050 469 5444
Pyydä lisätietoa
