Vuokrataan toimistotilat - Oulu
Elektroniikkatie 6, Linnanmaa, 90590 Oulu #10802315
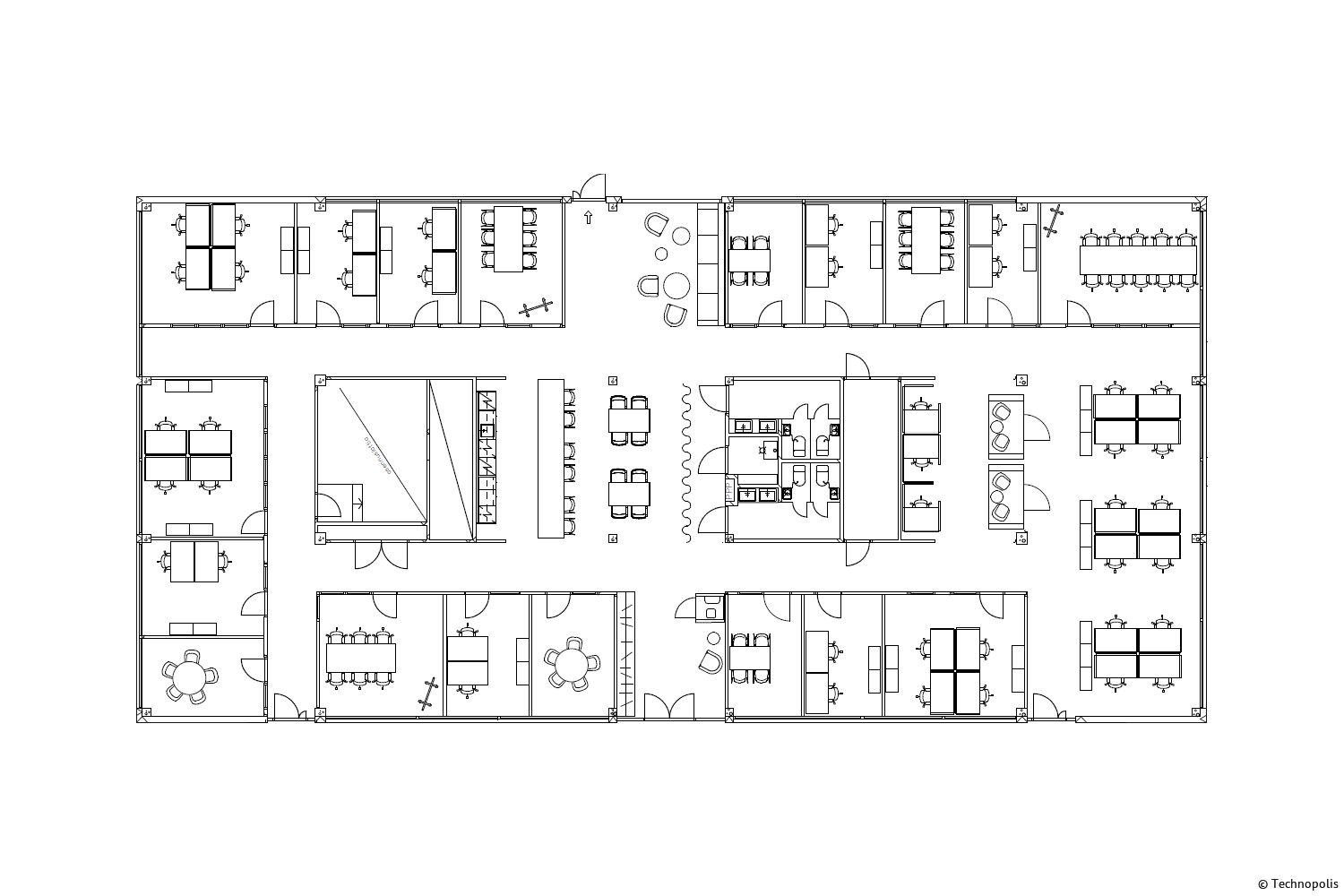
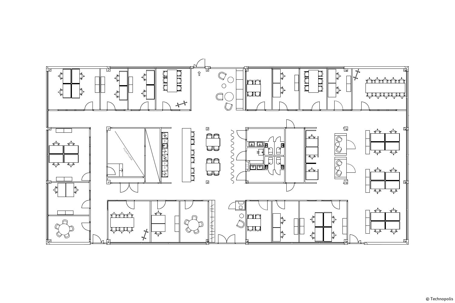
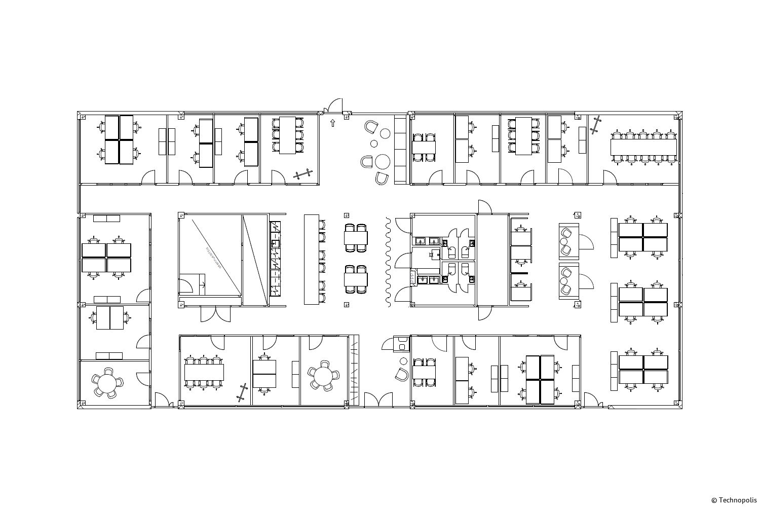
Etsitkö tilavaa, modernia ja muunneltavaa toimistotilaa yrityksellesi? Tämä suuri kolmannen kerroksen toimistotila Technopolis Linnanmaalta tarjoaa erinomaiset puitteet liiketoimintasi kasvulle ja päivittäiselle toiminnalle. Tila on suunniteltu niin, että se täyttää nykyaikaisen työympäristön vaatimukset ja mahdollistaa sekä yksityisyyden että yhteistyön.
Toimistossa on avotila, joka on helposti muokattavissa tarpeidesi mukaan. Voit avata tilan suuremmaksi avotilaksi tai jakaa sen pienemmiksi yksiköiksi. Lisäksi tilassa on erikokoisia työ- ja neuvotteluhuoneita, jotka tarjoavat yksityisyyttä sekä mukautuvat hyvin myös erikokoisiin tiimityötiloihin.
Keittiö ja wc-tilat tuovat lisää käytännöllisyyttä arkeen ja mahdollistavat sujuvan työpäivän ilman tarvetta lähteä kiinteistön ulkopuolelle. Kiinteistössä on myös monipuoliset palvelut, jotka tukevat yrityksesi päivittäistä toimintaa, ja lähistöltä löytyy useita lounasravintoloita, joten työpäivän tauot sujuvat vaivattomasti.
Ilmoitettu neliömäärä sisältää jyvityksen kiinteistön yhteisistä tiloista. Tila on täydellinen valinta yritykselle, joka arvostaa modernia työympäristöä, hyviä liikenneyhteyksiä ja laajaa palvelutarjontaa. Elektroniikkatie 6 -kiinteistöllä on Gold-tason ylläpidon LEED-sertifikaatti. Ympäristösertifikaatti todentaa rakennuksen edelläkävijyyden ympäristöystävällisyydessä.
Tämä tila on muunneltavissa eri käyttötarkoituksiin ja tarjoaa mahdollisuuden räätälöidä tilaratkaisut yrityksesi tarpeiden mukaan. Ota yhteyttä ja varaa esittely – tule tutustumaan tilan mahdollisuuksiin paikan päällä ja suunnittele, miten tämä upea toimitila tukee yrityksesi kasvua ja menestystä!
Technopolis
Elektroniikkatie 8 FIN-90590 Oulu
Näytä puhelinnumero
046 712 0000
Maija Väyrynen
Näytä puhelinnumero
040 584 4747
Myynti Technopolis Oulu
Technopolis on työympäristöjen asiantuntija. Tarjoamme joustavia ja tehokkaita toimitiloja sekä niihin liittyviä palveluita. Hoidamme kaiken työtilojen suunnittelusta sekä aula- ja kokouspalveluista ravintoloihin ja siivoukseen. Asiakaskokemus ja sen kehittäminen ovat toimintamme ytimessä. Meillä on 14 kampusta, joissa toimii 1200 asiakasyritystä ja niiden yli 30 000 työntekijää neljässä maassa Euroopassa.
https://technopolisglobal.com/fi