Vuokrataan varastotilat - Turku
Ovakonkatu 2, Pahaniemi, 20200 Turku #10802311
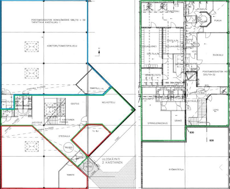
Terminaalitilaa toimistolla
Osoite
Ovakonkatu 2, 20200 Turku
Tilatyyppi
Varastotilaa
1500 - 4212 m2
Kiinteistö
Logistiikka-Terminaalitilaa
Ryhdikästä, valoisaa ja siistiä logistiikkatilaa vuokrattavissa läheltä Turun Satamaa Pahaniemestä asvaltoiduilla ja aidatuilla piha-alueilla. Kokonaisuus on mahdollista jakaa 2-3 toimijalle.
Hallitilan mitat: 39 m x 108 m /4212 m2. Siistit ja hyväkuntoiset pinnat.
Hallin vapaa korkeus 7 m. Lastaustaskuja 8 kpl, kaikki samalla seinällä.
Hallin lattiankanto 1000 kg/m2. Led-valaistus asennettu halliin 2019.
Rakennus on liitetty kaukolämpöön. Kiinteistöllä on kaksi lämmönsiirrintä, joista toinen lämmittää tuloilmaa ja toinen patteri- ja kiertoilmakoneverkkoa.
Lisäksi vuokrattavissa toimistotilaa noin 300 m2 sekä yhteiskäytössä olevia sosiaalitiloja, jotka voidaan tarpeen tullen jakaa. Toimistossa on 6 työhuonetta, avokonttoria ja neuvottelutila.
Kiinteistöön tulee valokuitu.
Logistisesti hyvä sijainti.
Ota yhteyttä ja tiedustele lisää!
Ryhdikästä, valoisaa ja siistiä logistiikkatilaa vuokrattavissa läheltä Turun Satamaa Pahaniemestä asvaltoiduilla ja aidatuilla piha-alueilla. Kokonaisuus on mahdollista jakaa 2-3 toimijalle.
Hallitilan mitat: 39 m x 108 m /4212 m2. Siistit ja hyväkuntoiset pinnat.
Hallin vapaa korkeus 7 m. Lastaustaskuja 8 kpl, kaikki samalla seinällä.
Hallin lattiankanto 1000 kg/m2. Led-valaistus asennettu halliin 2019.
Rakennus on liitetty kaukolämpöön. Kiinteistöllä on kaksi lämmönsiirrintä, joista toinen lämmittää tuloilmaa ja toinen patteri- ja kiertoilmakoneverkkoa.
Lisäksi vuokrattavissa toimistotilaa noin 300 m2 sekä yhteiskäytössä olevia sosiaalitiloja, jotka voidaan tarpeen tullen jakaa. Toimistossa on 6 työhuonetta, avokonttoria ja neuvottelutila.
Kiinteistöön tulee valokuitu.
Logistisesti hyvä sijainti.
Ota yhteyttä ja tiedustele lisää!
Vapautuu
Kysy
Kerros
1. ja 2.
Lastauslaituri
Ota yhteyttä
LogisTila Oy
Tuureporinkatu 6, 20100 TURKU
Stina Lindroos
Näytä puhelinnumero
044 972 9468
Pyydä lisätietoa
