Vuokrataan liiketilat - Rovaniemi
Maakuntakatu 29-31, Keskusta, 96200 Rovaniemi #10802294
Liiketilaa Rovaniemen keskustassa
Osoite
Maakuntakatu 29-31, 96200 Rovaniemi
Tilatyyppi
Liiketilaa
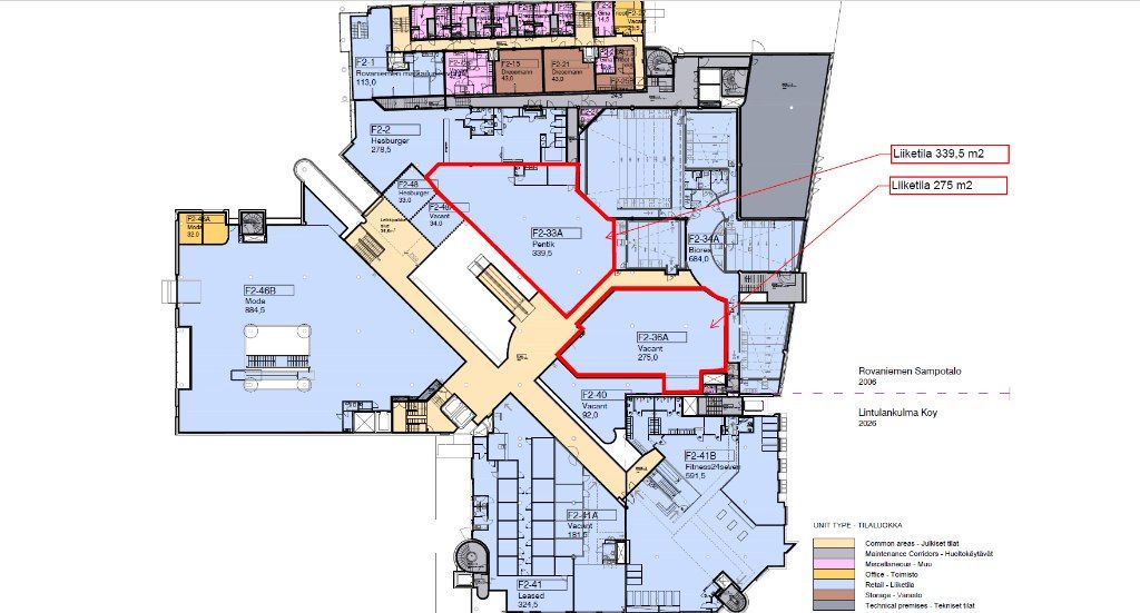
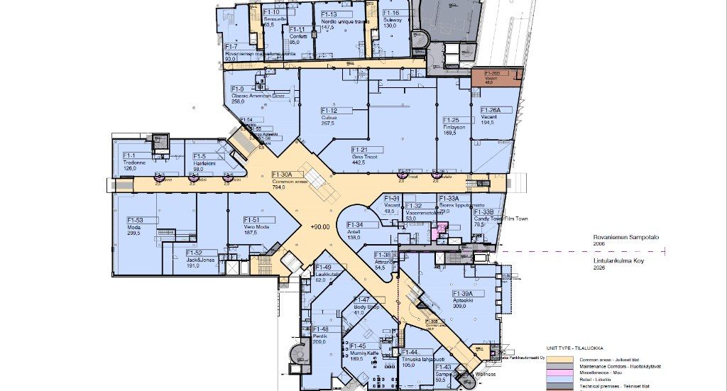
206 m2
Pysäköinti
Hallissa
Muuta
Vuokrataan siistiä 1.-2, kerroksien liiketilaa Sampokeskuksessa Rovaniemen keskustassa, vuokrattava tila on 1.-2. kerroksen 206 m2 liiketila. (F1-7, F2-1)
Rovaniemen keskustassa kävelykadun varrella sijaitseva Sampokeskus on viihtyisä kauppakeskus, jonne myös matkailijat löytävät helposti.
Sampokeskus on koko Lapin läänin muodin keskus, jonka monipuolisia palveluita ja rentoa ilmapiiriä täydentävät elokuvateatteri, kahvilat ja lämmin parkkihalli.
Tervetuloa tutustumaan, varaathan välittäjältä oman esittelyaikasi. Voit kysyä meiltä myös muita sopivia vaihtoehtoja, kauttamme löydät juuri teidän tarpeisiinne sopivat tilat. Palvelumme on tilanhakijalle veloitukseton!
Rovaniemen keskustassa kävelykadun varrella sijaitseva Sampokeskus on viihtyisä kauppakeskus, jonne myös matkailijat löytävät helposti.
Sampokeskus on koko Lapin läänin muodin keskus, jonka monipuolisia palveluita ja rentoa ilmapiiriä täydentävät elokuvateatteri, kahvilat ja lämmin parkkihalli.
Tervetuloa tutustumaan, varaathan välittäjältä oman esittelyaikasi. Voit kysyä meiltä myös muita sopivia vaihtoehtoja, kauttamme löydät juuri teidän tarpeisiinne sopivat tilat. Palvelumme on tilanhakijalle veloitukseton!
Vapautuu
Kysy
Kerros
1-2
Ota yhteyttä
Tuloskiinteistöt Oy
Rikhardinkatu 2 B 5, 00130 Helsinki
Näytä puhelinnumero
(09) 6841 620
Jorma Ryynänen
Commercial Real Estate Advisor LKV, LVV
Näytä puhelinnumero
+358 40 708 4064
Nina Meyke
Commercial Real Estate Advisor
Näytä puhelinnumero
+358 50 466 1519
Pyydä lisätietoa
