Lataa pohjapiirros [PDF]
Pohjapiirros
Lataa pohjapiirros [PDF]
Pohjapiirros
Lataa pohjapiirros [PDF]
Pohjapiirros
Vuokrataan toimistotilat - Helsinki
Köydenpunojankatu 2 A, Hietalahti, 00180 Helsinki #10802278
Tyylikästä ja avaraa monitilatoimistotilaa historiallisessa, vanhassa teollisuusrakennuksessa Hietalahden sykkeessä! Vapaana olevat kolmannen sekä viidennen kerroksen toimistotilat tarjoavat persoonallisen ympäristön modernin työnteon tarpeisiin. Korkeat tilat ja ainutlaatuinen miljöö antavat toimistolle oman erityisen tunnelmansa!
Osoite
Köydenpunojankatu 2 A, 00180 Helsinki
Tilatyyppi
Toimistotilaa
249 - 578 m2
Pohjapiirros
Kiinteistö
Kiinteistöstä vapaana 3. kerroksen tila 294 m² sekä 5. kerroksen 250 m². Lisätietoja tiloista:
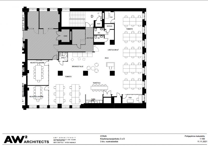
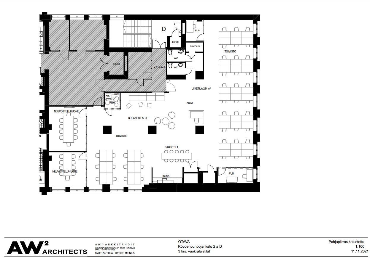
Tilatiedot 3. kerros tila
+ Pinta-ala: 294 m²
+ Tilat: modernia monitilatoimistoa, neuvottelutilat, puhelinkopit
+ Keittiö: upea taukokeittiö
+ WC: 2 kappaletta
+ Ikkunat kadulle ja sisäpihalle
+ Koneellinen ilmanvaihto
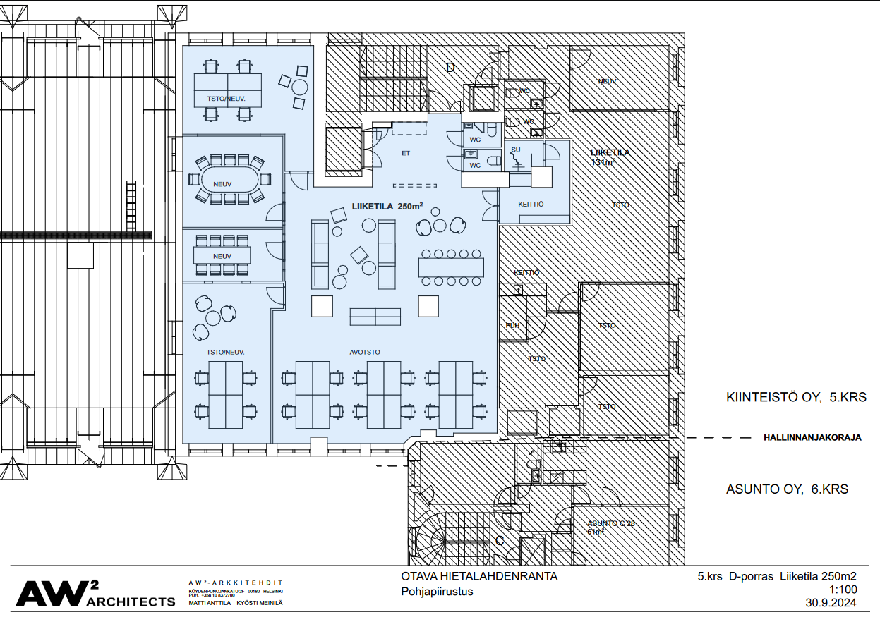
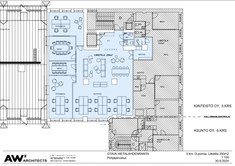
Tilatiedot 5. kerros tila
+ Pinta-ala: 250 m²
+ Tilat: koostuu avotilasta, yksittäisistä huoneista ja neuvottelutiloista
+ Varustelu: 2 wc:tä, suihku, taukokeittiö
+ Ikkunat kadulle ja sisäpihalle
+ Koneellinen poistoilmanvaihto
Tämän toimiston sijainti tarjoaa myös erinomaiset yhteydet kaupungin keskustaan ja sen palveluihin.
Ota yhteyttä ja sovi esittely!
Tilatiedot 3. kerros tila
+ Pinta-ala: 294 m²
+ Tilat: modernia monitilatoimistoa, neuvottelutilat, puhelinkopit
+ Keittiö: upea taukokeittiö
+ WC: 2 kappaletta
+ Ikkunat kadulle ja sisäpihalle
+ Koneellinen ilmanvaihto
Tilatiedot 5. kerros tila
+ Pinta-ala: 250 m²
+ Tilat: koostuu avotilasta, yksittäisistä huoneista ja neuvottelutiloista
+ Varustelu: 2 wc:tä, suihku, taukokeittiö
+ Ikkunat kadulle ja sisäpihalle
+ Koneellinen poistoilmanvaihto
Tämän toimiston sijainti tarjoaa myös erinomaiset yhteydet kaupungin keskustaan ja sen palveluihin.
Ota yhteyttä ja sovi esittely!
Sijainti
Köydenpunojankatu 2 a sijaitsee erinomaisella paikalla Helsingissä, Hietalahden alueella. Tämä alue tunnetaan sen vilkkaasta ja eläväisestä ympäristöstä, jossa on runsaasti palveluja, ravintoloita ja kahviloita. Alue on helposti saavutettavissa sekä julkisilla liikennevälineillä että omalla autolla.
Kohde on lähellä merinäköalaa, mikä tarjoaa upeat näkymät ja rauhallisen työympäristön. Alue on kehittynyt moderniksi liiketoimintakeskukseksi, jossa on monipuolisia toimitilavaihtoehtoja. Läheisyydessä sijaitsee myös useita puistoja ja virkistysalueita, mikä lisää alueen houkuttelevuutta. Hietalahdenrantaan on helppo päästä niin autoilla kuin julkisilla kulkuvälineillä, mikä tekee sijainnista ihanteellisen erilaisille liiketoimintamalleille.
Kohde on lähellä merinäköalaa, mikä tarjoaa upeat näkymät ja rauhallisen työympäristön. Alue on kehittynyt moderniksi liiketoimintakeskukseksi, jossa on monipuolisia toimitilavaihtoehtoja. Läheisyydessä sijaitsee myös useita puistoja ja virkistysalueita, mikä lisää alueen houkuttelevuutta. Hietalahdenrantaan on helppo päästä niin autoilla kuin julkisilla kulkuvälineillä, mikä tekee sijainnista ihanteellisen erilaisille liiketoimintamalleille.
Palvelut
Köydenpunojankatu 2 a ympäristössä on runsaasti palveluita, jotka tekevät työskentelystä alueella erityisen miellyttävää. Alue tarjoaa monipuolisia mahdollisuuksia niin työntekijöille kuin asiakkaillekin.
Vapautuu
Heti vapaana
Energiatehokkuusluokka
Ei lain edellyttämää energiatodistusta
Näkyvällä paikalla
Liitetiedostot
Ota yhteyttä
Arvo Premises Oy
Joakim Kukkonen
Osakas, Toimitilavälittäjä
Näytä puhelinnumero
040 555 8106
Seppo Pakarinen
Osakas, Kiinteistönvälittäjä. LKV, YKV, AKA
Näytä puhelinnumero
040-703 8000
Pyydä lisätietoa
