Vuokrataan toimistotilat - Espoo
Ahventie 4, Haukilahti, 02170 Espoo #10802144
Laadukasta ja edullista toimistotilaa Espoon Haukilahdesta
Osoite
Ahventie 4, 02170 Espoo
Tilatyyppi
Toimistotilaa
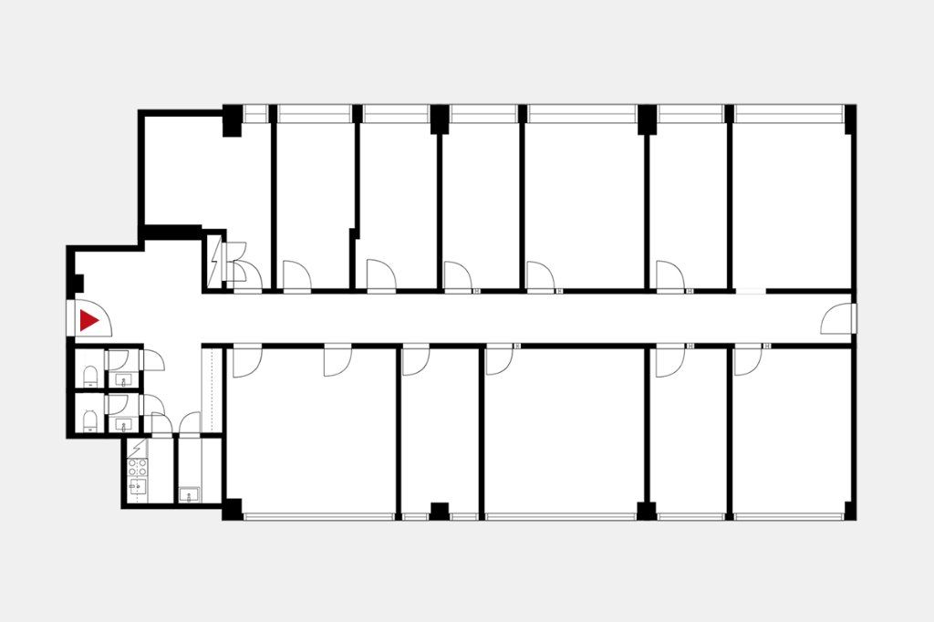
245 m2
Pysäköinti
Hallissa
Muuta
Vuokrataan laadukasta toimistotilaa Espoon Haukilahdesta, vuokrattava tila on 5. kerroksen 245m2 toimistotila.
Kiinteistö Ahventie 4, Ahti Business Park, on rakennettu 1978 ja on yksi Espoon parhaimmalla sijainnilla mäenpäällä, aivan Länsiväylän (51) varrella. Kiinteistöstä on pidetty hyvää huolta ja siten Ahti Business Parkille on myönnetty Very Good - BREEAM In Use -ympäristösertifikaatti. Kiinteistöstä on vain 15 minuutin ajomatka Helsingin keskustaan ja 5 minuutin ajomatka kauppakeskus Iso Omenan palveluihin. Oman auton käyttäjiä palvelee vuokrattavat autopaikat pihalla ja hallissa.
Julkisen liikenteen palvelut ovat loistavat, Niittykummun Metroasema on vain 950m/13minuutin kävelymatkan päässä. Työmatkapyöräilijöitä on huomioitu laadukkaalla pyöräparkilla ja siisteillä pukuhuonetiloilla.
Tervetuloa tutustumaan, varaathan välittäjältä oman esittelyaikasi. Voit kysyä meiltä myös muita sopivia vaihtoehtoja, kauttamme löydät juuri Teidän tarpeisiinne sopivat tilat. Palvelumme on tilanhakijalle veloitukseton!
Kiinteistö Ahventie 4, Ahti Business Park, on rakennettu 1978 ja on yksi Espoon parhaimmalla sijainnilla mäenpäällä, aivan Länsiväylän (51) varrella. Kiinteistöstä on pidetty hyvää huolta ja siten Ahti Business Parkille on myönnetty Very Good - BREEAM In Use -ympäristösertifikaatti. Kiinteistöstä on vain 15 minuutin ajomatka Helsingin keskustaan ja 5 minuutin ajomatka kauppakeskus Iso Omenan palveluihin. Oman auton käyttäjiä palvelee vuokrattavat autopaikat pihalla ja hallissa.
Julkisen liikenteen palvelut ovat loistavat, Niittykummun Metroasema on vain 950m/13minuutin kävelymatkan päässä. Työmatkapyöräilijöitä on huomioitu laadukkaalla pyöräparkilla ja siisteillä pukuhuonetiloilla.
Tervetuloa tutustumaan, varaathan välittäjältä oman esittelyaikasi. Voit kysyä meiltä myös muita sopivia vaihtoehtoja, kauttamme löydät juuri Teidän tarpeisiinne sopivat tilat. Palvelumme on tilanhakijalle veloitukseton!
Vapautuu
Kysy
Rakennusvuosi
1978
Kerros
5
Ota yhteyttä
Tuloskiinteistöt Oy
Rikhardinkatu 2 B 5, 00130 Helsinki
Näytä puhelinnumero
(09) 6841 620
Otto Ahtola
Commercial Real Estate Advisor
Näytä puhelinnumero
+358 40 042 2830
Jorma Ryynänen
Commercial Real Estate Advisor LKV, LVV
Näytä puhelinnumero
+358 40 708 4064
Pyydä lisätietoa
