Vuokrataan toimistotilat - Helsinki
Pohjoisesplanadi 35, Keskusta, 00100 Helsinki #10802081
Arvotoimistotilaa Helsingin keskustassa
Osoite
Pohjoisesplanadi 35, 00100 Helsinki
Tilatyyppi
Toimistotilaa
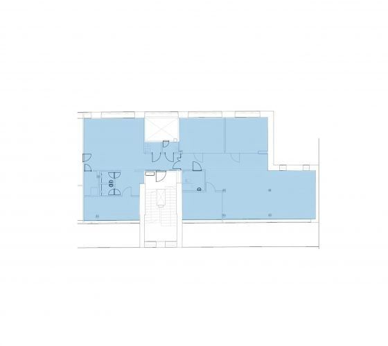
224 m2
Muuta
Vuokrataan arvokiinteistöstä toimistotilaa Helsingin ydinkeskustassa, vuokrattava tila on 6. kerroksen 224m2.
Pohjoisesplanadi 35 ja Mikonkatu 2 kulmassa oleva kiinteistön perusparannustyöt valmistuivat 2016. Arvokiinteistö on 1888 valmistunut ja sen on suunnitellut K.A. Wreden. Perusparannustyöt on tehty kiinteistön arkkitehtuuria ja arvokasta historiaa kunnioittaen.
Kohteessa on tehokkaat tilaratkaisut, jotka voi joustavasti hyödyntää monitoimitilaympäristönä monen kokoisille yrityksille. Tiloissa on koneellinen ilmanvaihto ja jäähdytys.
Julkisen liikenteen palvelut ovat lyhyen kävelyn matkan päässä ja lähin pysäköintihalli sijaitsee Kluuvissa, sisäänajo Kaisaniemenkadulta ja Fabianinkadulta.
Tervetuloa tutustumaan, varaathan välittäjältä yksityisnäyttösi. Kysy myös muita sopivia vaihtoehtoja - palvelumme on tilanhakijalle veloitukseton!
Pohjoisesplanadi 35 ja Mikonkatu 2 kulmassa oleva kiinteistön perusparannustyöt valmistuivat 2016. Arvokiinteistö on 1888 valmistunut ja sen on suunnitellut K.A. Wreden. Perusparannustyöt on tehty kiinteistön arkkitehtuuria ja arvokasta historiaa kunnioittaen.
Kohteessa on tehokkaat tilaratkaisut, jotka voi joustavasti hyödyntää monitoimitilaympäristönä monen kokoisille yrityksille. Tiloissa on koneellinen ilmanvaihto ja jäähdytys.
Julkisen liikenteen palvelut ovat lyhyen kävelyn matkan päässä ja lähin pysäköintihalli sijaitsee Kluuvissa, sisäänajo Kaisaniemenkadulta ja Fabianinkadulta.
Tervetuloa tutustumaan, varaathan välittäjältä yksityisnäyttösi. Kysy myös muita sopivia vaihtoehtoja - palvelumme on tilanhakijalle veloitukseton!
Vapautuu
Kysy
Rakennusvuosi
1888
Kerros
6
Ota yhteyttä
Tuloskiinteistöt Oy
Rikhardinkatu 2 B 5, 00130 Helsinki
Näytä puhelinnumero
(09) 6841 620
Jorma Ryynänen
Commercial Real Estate Advisor LKV, LVV
Näytä puhelinnumero
+358 40 708 4064
Nina Meyke
Commercial Real Estate Advisor
Näytä puhelinnumero
+358 50 466 1519
Pyydä lisätietoa
