Vuokrataan toimistotilat, liiketilat - Helsinki
Ruoholahdenkatu 8, Kamppi, 00180 Helsinki #10802075
Tehokasta toimisto- ja liiketilaa Helsingin Ruoholahdenkadulla
Osoite
Ruoholahdenkatu 8, 00180 Helsinki
Tilatyyppi
Toimistotilaa
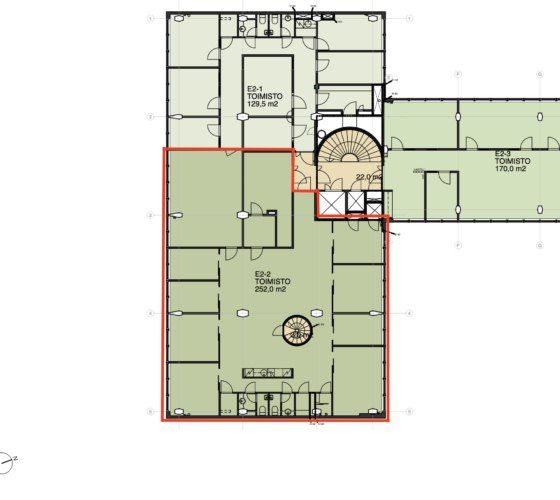
252 m2
Liiketilaa
252 m2
Yhteensä
252 m2
Pysäköinti
Kyllä
Muuta
Vuokrataan tehokasta ja muuntojoustavaa toimistotilaa Helsingin Ruoholahdenkadulta. Vuokrattavana on 2. kerroksen 252 m² tila.
Ruoholahdenkatu 8 tarjoaa hyvät toimistotilat aivan Helsingin keskustan tuntumasta.
Kiinteistö on valmistunut 1956 ja 1964. Tilat on kokonaan peruskorjattu 2005.
Tilat on räätälöitävissä asiakkaan tarpeen mukaan avokonttoriksi tai huoneiksi.
Rakennuksessa on koneellinen ilmanvaihto ja jäähdytys. Rakennuksen sisällä ja pihassa on yhteensä 50 autopaikkaa.
Ruoholahdenkatu 8 sijaitsee vain lyhyen kävelymatkan päästä Kampin metroasemasta.
Ota yhteyttä ja käydään tutustumassa tiloihin. Kysy myös muista vaihtoehdoista, etsimme tilat veloituksetta.
Ruoholahdenkatu 8 tarjoaa hyvät toimistotilat aivan Helsingin keskustan tuntumasta.
Kiinteistö on valmistunut 1956 ja 1964. Tilat on kokonaan peruskorjattu 2005.
Tilat on räätälöitävissä asiakkaan tarpeen mukaan avokonttoriksi tai huoneiksi.
Rakennuksessa on koneellinen ilmanvaihto ja jäähdytys. Rakennuksen sisällä ja pihassa on yhteensä 50 autopaikkaa.
Ruoholahdenkatu 8 sijaitsee vain lyhyen kävelymatkan päästä Kampin metroasemasta.
Ota yhteyttä ja käydään tutustumassa tiloihin. Kysy myös muista vaihtoehdoista, etsimme tilat veloituksetta.
Vapautuu
Kysy
Rakennusvuosi
1956
Kerros
2
Ota yhteyttä
Tuloskiinteistöt Oy
Rikhardinkatu 2 B 5, 00130 Helsinki
Näytä puhelinnumero
(09) 6841 620
Jorma Ryynänen
Commercial Real Estate Advisor LKV, LVV
Näytä puhelinnumero
+358 40 708 4064
Nina Meyke
Commercial Real Estate Advisor
Näytä puhelinnumero
+358 50 466 1519
Pyydä lisätietoa
