Vuokrataan toimistotilat - Helsinki
Pohjoinen Rautatiekatu 25, Etu-Töölö, 00100 Helsinki #10802006
Viihtyisää toimistotilaa Etu-Töölössä
Osoite
Pohjoinen Rautatiekatu 25, 00100 Helsinki
Tilatyyppi
Toimistotilaa
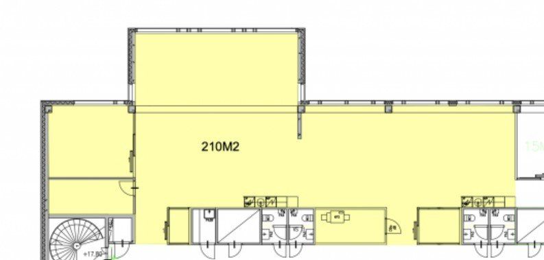
210 m2
Pysäköinti
Kyllä
Muuta
Vuokrataan moderni laadukas 210m2 toimistotila Helsingin keskustassa.
Viihtyisässä 1999 valmistuneessa kiinteistössä on seitsemän maanpäällistä toimistokerrosta, saunaosasto ullakkokerroksessa, kaksi kellarikerrosta, jossa on pysäköintihalli 15 autolle. Lisäksi kellarikerroksessa on erittäin tilava pyöräkellari pukuhuoneineen.
Kiinteistö sijaitsee erinomaisten julkisten kulkuvälineiden äärellä: Kampin metroasema, bussiterminaali ja pyöräilyväylän baanan äärellä.
Tervetuloa tutustumaan tähän kohteeseen! Kysythän myös muita sopivia vaihtoehtoja - palvelumme tilanhakijalle on veloitukseton.
Viihtyisässä 1999 valmistuneessa kiinteistössä on seitsemän maanpäällistä toimistokerrosta, saunaosasto ullakkokerroksessa, kaksi kellarikerrosta, jossa on pysäköintihalli 15 autolle. Lisäksi kellarikerroksessa on erittäin tilava pyöräkellari pukuhuoneineen.
Kiinteistö sijaitsee erinomaisten julkisten kulkuvälineiden äärellä: Kampin metroasema, bussiterminaali ja pyöräilyväylän baanan äärellä.
Tervetuloa tutustumaan tähän kohteeseen! Kysythän myös muita sopivia vaihtoehtoja - palvelumme tilanhakijalle on veloitukseton.
Vapautuu
Kysy
Rakennusvuosi
1999
Kerros
2
Ota yhteyttä
Tuloskiinteistöt Oy
Rikhardinkatu 2 B 5, 00130 Helsinki
Näytä puhelinnumero
(09) 6841 620
Jorma Ryynänen
Commercial Real Estate Advisor LKV, LVV
Näytä puhelinnumero
+358 40 708 4064
Otto Ahtola
Commercial Real Estate Advisor
Näytä puhelinnumero
+358 40 042 2830
Pyydä lisätietoa
