Vuokrataan toimistotilat - Helsinki
Tammasaarenkatu 7, Ruoholahti, 00180 Helsinki #10801972
Modernia toimistotilaa Helsingin Ruoholahdessa
Osoite
Tammasaarenkatu 7, 00180 Helsinki
Tilatyyppi
Toimistotilaa
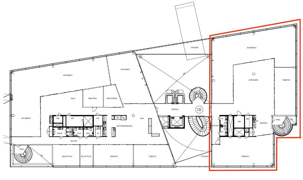
396 m2
Pysäköinti
Kyllä
Muuta
Modernia ja uudenveroista toimistotilaa merellisessä Helsingin Ruoholahdessa. Vuokrattava tila on 2. kerroksen 396m2 toimistotila.
Upealla paikalla Ruoholahdessa, meren rannalla arkkitehtikilpailuja voittanut HTC Helsinki, koostuu neljästä rakennuksesta. Kiinteistö Oy HTC Vega on valmistunut 2001.
HTC Helsinki tarjoaa kaikille vuokralaisilleen ja kävijöille aulapalveluita, kaksi ravintolaa, neuvottelu- ja edustustiloja catering palveluineen. HTC Helsinkiä palvelee yhteinen pysäköintihalli. Lisäksi kohteen lähellä on Ruoholahden Metroasema ja raitiovaunulinja 8 on myös kohteen lähistöllä.
Tervetuloa tutustumaan, varaathan välittäjältä oman esittelyaikasi. Voit kysyä meiltä myös muita sopivia vaihtoehtoja, kauttamme löydät juuri teidän tarpeisiinne sopivat tilat. Palvelumme on tilanhakijalle veloitukseton!
Upealla paikalla Ruoholahdessa, meren rannalla arkkitehtikilpailuja voittanut HTC Helsinki, koostuu neljästä rakennuksesta. Kiinteistö Oy HTC Vega on valmistunut 2001.
HTC Helsinki tarjoaa kaikille vuokralaisilleen ja kävijöille aulapalveluita, kaksi ravintolaa, neuvottelu- ja edustustiloja catering palveluineen. HTC Helsinkiä palvelee yhteinen pysäköintihalli. Lisäksi kohteen lähellä on Ruoholahden Metroasema ja raitiovaunulinja 8 on myös kohteen lähistöllä.
Tervetuloa tutustumaan, varaathan välittäjältä oman esittelyaikasi. Voit kysyä meiltä myös muita sopivia vaihtoehtoja, kauttamme löydät juuri teidän tarpeisiinne sopivat tilat. Palvelumme on tilanhakijalle veloitukseton!
Vapautuu
Kysy
Rakennusvuosi
2001
Kerros
2
Ota yhteyttä
Tuloskiinteistöt Oy
Rikhardinkatu 2 B 5, 00130 Helsinki
Näytä puhelinnumero
(09) 6841 620
Jorma Ryynänen
Commercial Real Estate Advisor LKV, LVV
Näytä puhelinnumero
+358 40 708 4064
Otto Ahtola
Commercial Real Estate Advisor
Näytä puhelinnumero
+358 40 042 2830
Pyydä lisätietoa
