Vuokrataan toimistotilat - Helsinki
Valimotie 15, Pitäjänmäki, 00380 Helsinki #10801968
Toimistotilaa Helsingin Pitäjänmäellä
Osoite
Valimotie 15, 00380 Helsinki
Tilatyyppi
Toimistotilaa
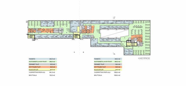
600 m2
Pysäköinti
Kyllä
Muuta
Vuokrataan Pitäjänmäen yrityskeskittymässä 4. kerroksen 600 m2 toimistotila.
Valimotie 15 koostuu kahdesta rakennuksesta A ja B. Talot tarjoavat tehokkaat sekä nykyaikaiset tilaratkaisut ja vuokralaisen käyttöön runsaasti pysäköintipaikkoja.
Valimotie 15 sijaitsee Pitäjänmäellä erinomaisten kulkuyhteyksien varrella, Vihdintien äärellä.
Henkilöstön käytössä ovat viereisen Valimotie 17-19 palvelut: henkilöstöravintola, aulapalvelu, kokoustilat, auditorio sekä kuntosali uima-altaineen ja edustustilat. Kiinteistöt 15 ja 17-19 on yhdistetty toisiinsa Valimokuja yhdistävällä putkella.
Tervetuloa tutustumaan! Varaathan välittäjältä oman esittelyaikasi. Kysy meiltä muitakin juuri teille sopivia vaihtoehtoja - meidän kautta saat täysin teidän tarpeisiinne räätälöidyt tilat. Palvelumme on tilanhakijalle veloitukseton!
Valimotie 15 koostuu kahdesta rakennuksesta A ja B. Talot tarjoavat tehokkaat sekä nykyaikaiset tilaratkaisut ja vuokralaisen käyttöön runsaasti pysäköintipaikkoja.
Valimotie 15 sijaitsee Pitäjänmäellä erinomaisten kulkuyhteyksien varrella, Vihdintien äärellä.
Henkilöstön käytössä ovat viereisen Valimotie 17-19 palvelut: henkilöstöravintola, aulapalvelu, kokoustilat, auditorio sekä kuntosali uima-altaineen ja edustustilat. Kiinteistöt 15 ja 17-19 on yhdistetty toisiinsa Valimokuja yhdistävällä putkella.
Tervetuloa tutustumaan! Varaathan välittäjältä oman esittelyaikasi. Kysy meiltä muitakin juuri teille sopivia vaihtoehtoja - meidän kautta saat täysin teidän tarpeisiinne räätälöidyt tilat. Palvelumme on tilanhakijalle veloitukseton!
Vapautuu
Kysy
Rakennusvuosi
1954
Kerros
4
Ota yhteyttä
Tuloskiinteistöt Oy
Rikhardinkatu 2 B 5, 00130 Helsinki
Näytä puhelinnumero
(09) 6841 620
Jorma Ryynänen
Commercial Real Estate Advisor LKV, LVV
Näytä puhelinnumero
+358 40 708 4064
Otto Ahtola
Commercial Real Estate Advisor
Näytä puhelinnumero
+358 40 042 2830
Pyydä lisätietoa
