Vuokrataan toimistotilat - Espoo
Linnoitustie 4, Leppävaara, 02600 Espoo #10801960
Laadukasta toimistotilaa Leppävaarasta!
Osoite
Linnoitustie 4, 02600 Espoo
Tilatyyppi
Toimistotilaa
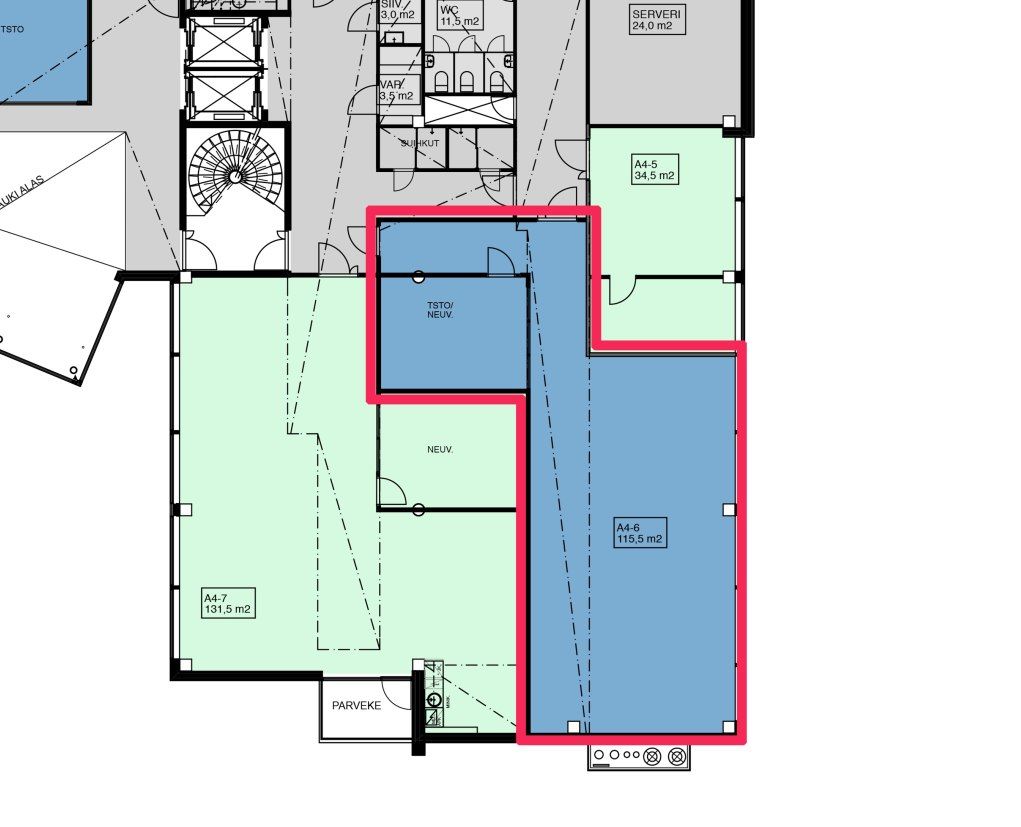
115 m2
Pysäköinti
On
Muuta
Vuokrattavana laadukasta toimitilaa Leppävaarassa, vuokrattava tila on 4. kerroksen 115,50 m² toimistotila.
Quartetto Business Park on tehokas ja viihtyisä yrityspuisto. Yrityspuiston toimitilakonsepti ja siihen liittyvä palvelukokonaisuus on suunniteltu vaativan yrityksen tarpeisiin.
Quartetto sijaitsee erinomaisella ja näkyvällä paikalla Etelä-Leppävaaran toimistoalueella Kehä I:n tuntumassa. Kauppakeskus Sellon palvelut sekä juna-asema ovat kävelymatkan etäisyydellä.
Kaikki pihapaikat on varattu asiakaspysäköintiin, henkilökunnan kaikki paikat sisällä joko kellareissa tai pihalla pysäköintitalossa.
Tervetuloa tutustumaan, varaathan välittäjältä oman esittelyaikasi ja kysy tarjousta tästä tilasta. Palvelumme on tilanhakijalle veloitukseton!
Quartetto Business Park on tehokas ja viihtyisä yrityspuisto. Yrityspuiston toimitilakonsepti ja siihen liittyvä palvelukokonaisuus on suunniteltu vaativan yrityksen tarpeisiin.
Quartetto sijaitsee erinomaisella ja näkyvällä paikalla Etelä-Leppävaaran toimistoalueella Kehä I:n tuntumassa. Kauppakeskus Sellon palvelut sekä juna-asema ovat kävelymatkan etäisyydellä.
Kaikki pihapaikat on varattu asiakaspysäköintiin, henkilökunnan kaikki paikat sisällä joko kellareissa tai pihalla pysäköintitalossa.
Tervetuloa tutustumaan, varaathan välittäjältä oman esittelyaikasi ja kysy tarjousta tästä tilasta. Palvelumme on tilanhakijalle veloitukseton!
Vapautuu
Kysy
Kerros
4
Ota yhteyttä
Tuloskiinteistöt Oy
Rikhardinkatu 2 B 5, 00130 Helsinki
Näytä puhelinnumero
(09) 6841 620
Jorma Ryynänen
Commercial Real Estate Advisor LKV, LVV
Näytä puhelinnumero
+358 40 708 4064
Otto Ahtola
Commercial Real Estate Advisor
Näytä puhelinnumero
+358 40 042 2830
Pyydä lisätietoa
