Vuokrataan toimistotilat - Espoo
Linnoitustie 4, Leppävaara, 02600 Espoo #10801954
Laadukasta toimistotilaa Leppävaarasta!
Osoite
Linnoitustie 4, 02600 Espoo
Tilatyyppi
Toimistotilaa
202 m2
Pysäköinti
On
Muuta
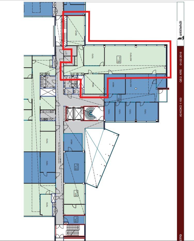
Vuokrattavana laadukasta toimitilaa Leppävaarassa, vuokrattava tila on 2. kerroksen 202,50m2 toimistotila.
Quartetto Business Park on tehokas ja viihtyisä yrityspuisto. Yrityspuiston toimitilakonsepti ja siihen liittyvä palvelukokonaisuus on suunniteltu vaativan yrityksen tarpeisiin.
Quartetto sijaitsee erinomaisella ja näkyvällä paikalla Etelä-Leppävaaran toimistoalueella Kehä I:n tuntumassa. Kauppakeskus Sellon palvelut sekä juna-asema ovat kävelymatkan etäisyydellä.
Kaikki pihapaikat on varattu asiakaspysäköintiin, henkilökunnan kaikki paikat sisällä joko kellareissa tai pihalla pysäköintitalossa.
Tervetuloa tutustumaan, varaathan välittäjältä oman esittelyaikasi. Voit kysyä meiltä myös muita sopivia vaihtoehtoja, kauttamme löydät juuri teidän tarpeisiinne sopivat tilat. Palvelumme on tilanhakijalle veloitukseton!
Quartetto Business Park on tehokas ja viihtyisä yrityspuisto. Yrityspuiston toimitilakonsepti ja siihen liittyvä palvelukokonaisuus on suunniteltu vaativan yrityksen tarpeisiin.
Quartetto sijaitsee erinomaisella ja näkyvällä paikalla Etelä-Leppävaaran toimistoalueella Kehä I:n tuntumassa. Kauppakeskus Sellon palvelut sekä juna-asema ovat kävelymatkan etäisyydellä.
Kaikki pihapaikat on varattu asiakaspysäköintiin, henkilökunnan kaikki paikat sisällä joko kellareissa tai pihalla pysäköintitalossa.
Tervetuloa tutustumaan, varaathan välittäjältä oman esittelyaikasi. Voit kysyä meiltä myös muita sopivia vaihtoehtoja, kauttamme löydät juuri teidän tarpeisiinne sopivat tilat. Palvelumme on tilanhakijalle veloitukseton!
Vapautuu
Kysy
Kerros
2
Ota yhteyttä
Tuloskiinteistöt Oy
Rikhardinkatu 2 B 5, 00130 Helsinki
Näytä puhelinnumero
(09) 6841 620
Jorma Ryynänen
Commercial Real Estate Advisor LKV, LVV
Näytä puhelinnumero
+358 40 708 4064
Otto Ahtola
Commercial Real Estate Advisor
Näytä puhelinnumero
+358 40 042 2830
Pyydä lisätietoa
