Vuokrataan toimistotilat - Helsinki
Kaarlenkatu 9-11, Kallio, 00530 Helsinki #10801894
Laadukasta toimistotilaa Helsingin Kalliosta
Osoite
Kaarlenkatu 9-11, 00530 Helsinki
Tilatyyppi
Toimistotilaa
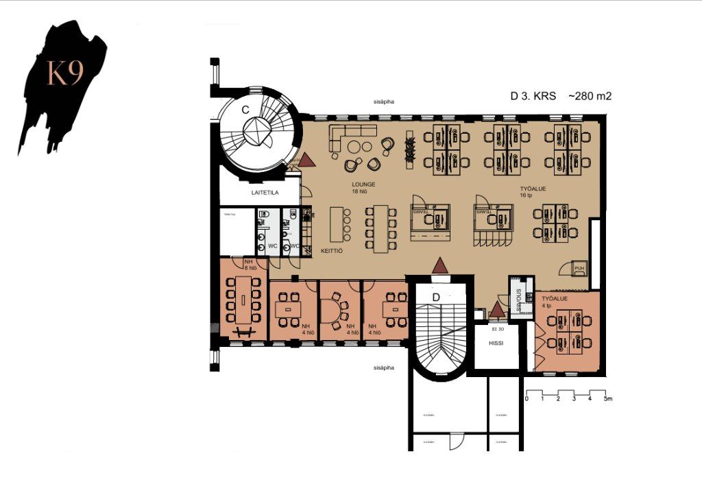
280 m2
Pysäköinti
Hallissa
Muuta
Vuokrattavana laadukas 280 m² toimistotila Helsingin Kallion ytimessä, Kaarlenkatu 9-11 (K9) kiinteistössä.
Tämä 3. kerroksen toimistotila tarjoaa erinomaiset puitteet yrityksellesi, ja sijainti Kallion sydämessä takaa loistavat julkiset liikenneyhteydet, sillä Kaarlenkadun ratikkapysäkki on aivan rakennuksen edessä.
K9-kiinteistö koostuu kolmesta rakennuksesta, joista nuorimmat on rakennettu vuosina 1972 ja 1947. Kiinteistöstä löytyy kaikki modernin toimistorakennuksen palvelut, kuten aulapalvelu, edustustilat, kuntosali, lounasravintola, sauna, sosiaalitilat ja vuokrattavat neuvotteluhuoneet. 3. ja 4. kerroksista löytyy kompakteja toimistotiloja yhteiskäyttötiloineen, ja 4.-6. kerroksista erikokoisia tiloja eri vuokralaisten tarpeisiin.
Keittiötilat on remontoitu vuonna 2020 ja wc-tilat uusitaan vuonna 2024.
Tervetuloa tutustumaan, varaathan välittäjältä oman esittelyaikasi. Voit kysyä meiltä myös muita sopivia vaihtoehtoja, kauttamme löydät juuri Teidän tarpeisiinne sopivat tilat.
Palvelumme on tilanhakijalle veloitukseton!
Tämä 3. kerroksen toimistotila tarjoaa erinomaiset puitteet yrityksellesi, ja sijainti Kallion sydämessä takaa loistavat julkiset liikenneyhteydet, sillä Kaarlenkadun ratikkapysäkki on aivan rakennuksen edessä.
K9-kiinteistö koostuu kolmesta rakennuksesta, joista nuorimmat on rakennettu vuosina 1972 ja 1947. Kiinteistöstä löytyy kaikki modernin toimistorakennuksen palvelut, kuten aulapalvelu, edustustilat, kuntosali, lounasravintola, sauna, sosiaalitilat ja vuokrattavat neuvotteluhuoneet. 3. ja 4. kerroksista löytyy kompakteja toimistotiloja yhteiskäyttötiloineen, ja 4.-6. kerroksista erikokoisia tiloja eri vuokralaisten tarpeisiin.
Keittiötilat on remontoitu vuonna 2020 ja wc-tilat uusitaan vuonna 2024.
Tervetuloa tutustumaan, varaathan välittäjältä oman esittelyaikasi. Voit kysyä meiltä myös muita sopivia vaihtoehtoja, kauttamme löydät juuri Teidän tarpeisiinne sopivat tilat.
Palvelumme on tilanhakijalle veloitukseton!
Vapautuu
Kysy
Rakennusvuosi
1972
Kerros
3
Ota yhteyttä
Tuloskiinteistöt Oy
Rikhardinkatu 2 B 5, 00130 Helsinki
Näytä puhelinnumero
(09) 6841 620
Jorma Ryynänen
Commercial Real Estate Advisor LKV, LVV
Näytä puhelinnumero
+358 40 708 4064
Otto Ahtola
Commercial Real Estate Advisor
Näytä puhelinnumero
+358 40 042 2830
Pyydä lisätietoa
