Vuokrataan toimistotilat - Helsinki
Töölönkatu 4, Etu-Töölö, 00100 Helsinki #10801889
Tyylikästä toimistotilaa Etu-Töölössä
Osoite
Töölönkatu 4, 00100 Helsinki
Tilatyyppi
Toimistotilaa
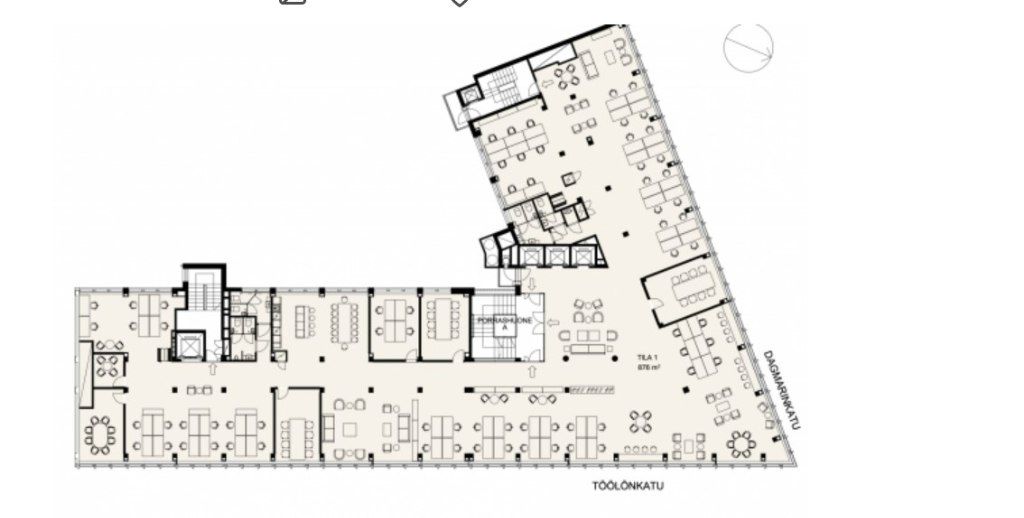
876 m2
Muuta
Modernissa perinteikkäässä Helsingin Kuparitalossa vuokrattavana 876m2 toimistotila, joka muokataan vuokralaisen tarpeiden mukaiseksi. Voit valita sisustuksen toimistotilaasi kolmesta taiten suunnitellusta teemasta: Philip (klassinen New York), Märta (raikas ja linjakas funkkis) ja Arne (skandinaavinen 50-luku).
Helsingin Kuparitalo on arvokas ja moderni kiinteistö päätöksenteon ja vallan ytimessä Eduskuntatalon vieressä Etu-Töölössä. 1957 valmistunut kiinteistö on toiminut Outokummun pääkonttorina, jolloin kiinteistön julkisivussa ja monissa sisätiloissa on käytetty kuparia.
Talo tarjoaa neuvottelutiloja, aulapalvelu ja hyvät catering palvelut.
Helsingin Kuparitalo sijaitsee hyvien kulkuyhteyksien varrella ja ja kävelymatkan päässä Kampin keskuksesta.
Tervetuloa tutustumaan, varaathan välittäjältä oman esittelyaikasi. Voit kysyä meiltä myös muita sopivia vaihtoehtoja, kauttamme löydät juuri teidän tarpeisiinne sopivat tilat. Palvelumme on tilanhakijalle veloitukseton!
Helsingin Kuparitalo on arvokas ja moderni kiinteistö päätöksenteon ja vallan ytimessä Eduskuntatalon vieressä Etu-Töölössä. 1957 valmistunut kiinteistö on toiminut Outokummun pääkonttorina, jolloin kiinteistön julkisivussa ja monissa sisätiloissa on käytetty kuparia.
Talo tarjoaa neuvottelutiloja, aulapalvelu ja hyvät catering palvelut.
Helsingin Kuparitalo sijaitsee hyvien kulkuyhteyksien varrella ja ja kävelymatkan päässä Kampin keskuksesta.
Tervetuloa tutustumaan, varaathan välittäjältä oman esittelyaikasi. Voit kysyä meiltä myös muita sopivia vaihtoehtoja, kauttamme löydät juuri teidän tarpeisiinne sopivat tilat. Palvelumme on tilanhakijalle veloitukseton!
Vapautuu
Kysy
Rakennusvuosi
1957
Kerros
6
Ota yhteyttä
Tuloskiinteistöt Oy
Rikhardinkatu 2 B 5, 00130 Helsinki
Näytä puhelinnumero
(09) 6841 620
Jorma Ryynänen
Commercial Real Estate Advisor LKV, LVV
Näytä puhelinnumero
+358 40 708 4064
Nina Meyke
Commercial Real Estate Advisor
Näytä puhelinnumero
+358 50 466 1519
Pyydä lisätietoa
