Vuokrataan toimistotilat, liiketilat, tuotantotilat, varastotilat - Jyväskylä
Miilukatu 5, 40320 Jyväskylä #10801821
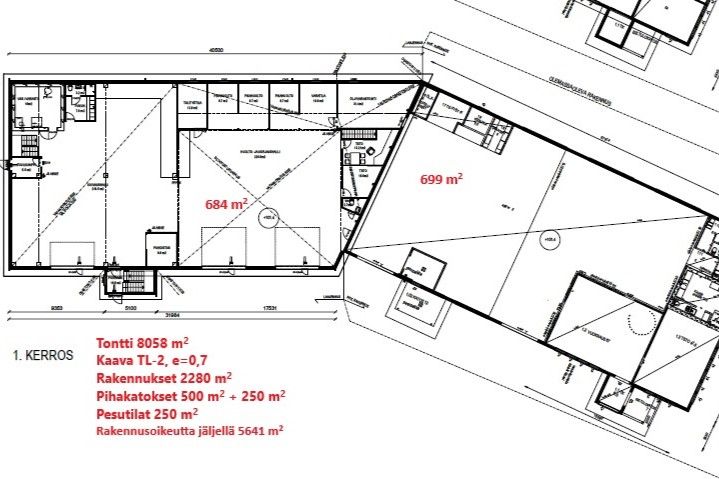
Vuokrataan n. 920 - 2280 m2 Tuotanto-, varasto-, liiketilaa Jyväskylän Seppälästä!
Vilkkaalla Seppälän kauppa-alueella vuokrattavana monikäyttöistä tilaa. Tilat sijaitsee väljällä yli 8000 m2 tontilla. Pihassa ulkokatoksia ja pesuhalleja. Tila soveltuu yhdelle käyttäjälle tai se voidaan jakaa kahden eri toimijan kesken. Hallitilojen vapaa korkeus on n. 6 metriä. Tontille ajo Miilukadulta ja Vasarakadulta. Piha-alue on aidattu ja kiinteistöllä on kameravalvonta. Kiinteistö lämpiää kaukolämmöllä ja tilat on jäähdytetyt. Tiloja voidaan muokata käyttäjän tarpeiden mukaan.
Tilat jaettavissa jolloin alakerran tilat 699 m2 tai 684 m2.
699 m2 halli kokonaisuuteen kuuluu toisen kerroksen toimistotilaa 221 m2.
Pihassa katettuja ulkovarastoja yhteensä n. 750 m2 ja 250 m2 pesutiloja.
Tiloissa kettiö ja sosiaalitiloja valmiina
Molemmissa halleissa voimavirta
Nosto-ovet korkeus n. 4,2 metriä ja leveys n. 4 metriä.
Vapaakorkeus n. 6 metriä
Kaukolämpö
Paineilmaverkko
Lisätiedot ja näytöt: Henri Kumpulainen, Puh: 040 864 3631, s-posti: henri.kumpulainen@aveon.fi
Katutasossa
Näkyvällä paikalla
Jaettavissa
Aveon Real Estate Oy
Kauppakatu 18 C 26, 40100 Jyväskylä
Henri Kumpulainen
Puh.
Näytä puhelinnumero
040 864 3631
henri.kumpulainen@aveon.fi
Olemme kiinteistöliiketoiminnan asiantuntija, joka toimii yrittäjämäisesti neuvonantajana kiinteistökaupoissa, toimitilavälittämisessä sekä kiinteistökehityksessä.
Asiakkaitamme ovat kotimaiset ja ulkomaiset kiinteistönomistajat, -sijoittajat sekä tilojen käyttäjät kaikkialla Suomessa.
