Vuokrataan toimistotilat - Espoo
Säterinkatu 6, Leppävaara, 02600 Espoo #10801803
Huipputyylikäs toimistoympäristö yrityksellenne!
Osoite
Säterinkatu 6, 02600 Espoo
Tilatyyppi
Toimistotilaa
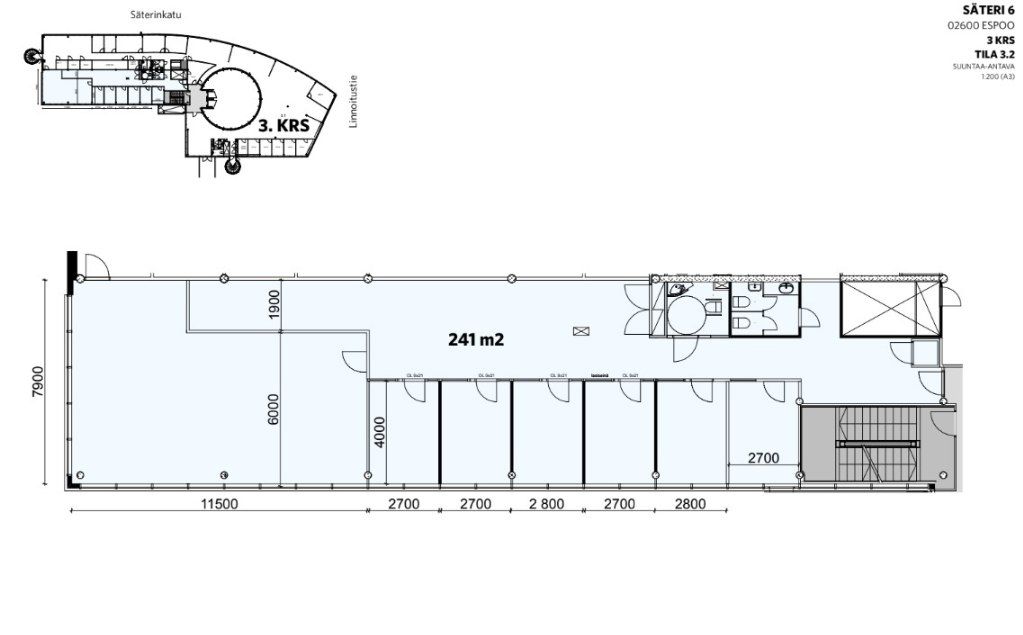
241 m2
Pysäköinti
Hallissa
Muuta
Vuokrataan 241m2 avotoimistotila, jossa tällä hetkellä työpisteitä n. 15-20 henkilölle.
Tilat on mahdollista muokata yrityksenne tarpeen mukaan, esimerkiksi rakentamalla työ- tai neuvotteluhuoneita.
Säteri 6 â toimistotalo sijaitsee mitä parhaimmalla paikalla Leppävaaran ytimessä laajan palvelutarjonnan sekä loistavien liikenneyhteyksien äärellä. Aivan vieressä ovat Kehä I, juna-asema, useita bussiyhteyksiä sekä tulevaisuudessa Raide-Jokeri ja tietysti kauppakeskus Sello. Säteri 6:een tulevat mielellään niin työntekijät kuin asiakkaatkin â tänne onkin valittu palveluntarjoajiksi vain alansa parhaimmat ja innovatiivisimmat toimijat.
Talon sydän on tyylikäs atrium-aula, jossa olevat oleskeluportaat sekä istuinryhmät kutsuvat viihtymään myös oman toimiston ulkopuolella. Aulan yhteydessä on kampaamo ja huippukokin luotsaama BAD eli Best Adventure of the Day lounasravintola, jossa on laadukas ja monipuolinen tarjonta. Täältä käsin loihditaan myös kokoustenne herkulliset tarjoilut!
Modernit maisemahissit kuljettavat asiakkaat toimistoihin sekä ylimmän kerroksen kokoustiloihin, liikuntapalvelujen pariin ja kattoterassille. Jokaisessa toimistokerroksessa on oma parveke ja kaunis näkymä lasiseinien läpi atrium-aulaan.
Rakennuksen kuntosali vastaa laadultaan kaupallisia saleja ja on erinomainen etu työhyvinvoinnin kannalta.
Aulapalvelut kuuluvat Säteri 6:n palvelutarjontaan. Ystävällinen ja asiantunteva aulapalvelu helpottaa yritysten arkea ja pitää huolta yleisestä turvallisuudesta. Luotettava ammattitaitoinen kiinteistöjohto ja -huolto ovat paikan päällä ja aina tavoitettavissa. Muita talon palveluita ovat neuvotteluhuoneet, sauna, catering, siivouspalvelut, vartiointi ja sähköauton latauspiste.
Kysy lisätietoja tai varaa välittäjältä tutustumiskäynti!
Mikäli tämä kohde ei sovi yrityksenne tukikohdaksi, olethan yhteydessä meihin - löydämme varmasti teidän tarpeeseenne sopivat toimitilat. Palvelumme on vuokralaiselle ilmainen!
Tilat on mahdollista muokata yrityksenne tarpeen mukaan, esimerkiksi rakentamalla työ- tai neuvotteluhuoneita.
Säteri 6 â toimistotalo sijaitsee mitä parhaimmalla paikalla Leppävaaran ytimessä laajan palvelutarjonnan sekä loistavien liikenneyhteyksien äärellä. Aivan vieressä ovat Kehä I, juna-asema, useita bussiyhteyksiä sekä tulevaisuudessa Raide-Jokeri ja tietysti kauppakeskus Sello. Säteri 6:een tulevat mielellään niin työntekijät kuin asiakkaatkin â tänne onkin valittu palveluntarjoajiksi vain alansa parhaimmat ja innovatiivisimmat toimijat.
Talon sydän on tyylikäs atrium-aula, jossa olevat oleskeluportaat sekä istuinryhmät kutsuvat viihtymään myös oman toimiston ulkopuolella. Aulan yhteydessä on kampaamo ja huippukokin luotsaama BAD eli Best Adventure of the Day lounasravintola, jossa on laadukas ja monipuolinen tarjonta. Täältä käsin loihditaan myös kokoustenne herkulliset tarjoilut!
Modernit maisemahissit kuljettavat asiakkaat toimistoihin sekä ylimmän kerroksen kokoustiloihin, liikuntapalvelujen pariin ja kattoterassille. Jokaisessa toimistokerroksessa on oma parveke ja kaunis näkymä lasiseinien läpi atrium-aulaan.
Rakennuksen kuntosali vastaa laadultaan kaupallisia saleja ja on erinomainen etu työhyvinvoinnin kannalta.
Aulapalvelut kuuluvat Säteri 6:n palvelutarjontaan. Ystävällinen ja asiantunteva aulapalvelu helpottaa yritysten arkea ja pitää huolta yleisestä turvallisuudesta. Luotettava ammattitaitoinen kiinteistöjohto ja -huolto ovat paikan päällä ja aina tavoitettavissa. Muita talon palveluita ovat neuvotteluhuoneet, sauna, catering, siivouspalvelut, vartiointi ja sähköauton latauspiste.
Kysy lisätietoja tai varaa välittäjältä tutustumiskäynti!
Mikäli tämä kohde ei sovi yrityksenne tukikohdaksi, olethan yhteydessä meihin - löydämme varmasti teidän tarpeeseenne sopivat toimitilat. Palvelumme on vuokralaiselle ilmainen!
Vapautuu
Kysy
Rakennusvuosi
2001
Kerros
3
Ota yhteyttä
Tuloskiinteistöt Oy
Rikhardinkatu 2 B 5, 00130 Helsinki
Näytä puhelinnumero
(09) 6841 620
Nina Meyke
Commercial Real Estate Advisor
Näytä puhelinnumero
+358 50 466 1519
Jorma Ryynänen
Commercial Real Estate Advisor LKV, LVV
Näytä puhelinnumero
+358 40 708 4064
Pyydä lisätietoa
