Vuokrataan liiketilat - Hämeenlinna
Katsastusmiehenkuja 1, 13130 Hämeenlinna #10801769
Vuokrattavana monipuolinen liiketila Hämeenlinnassa
Osoite
Katsastusmiehenkuja 1, 13130 Hämeenlinna
Tilatyyppi
Liiketilaa
508 m2
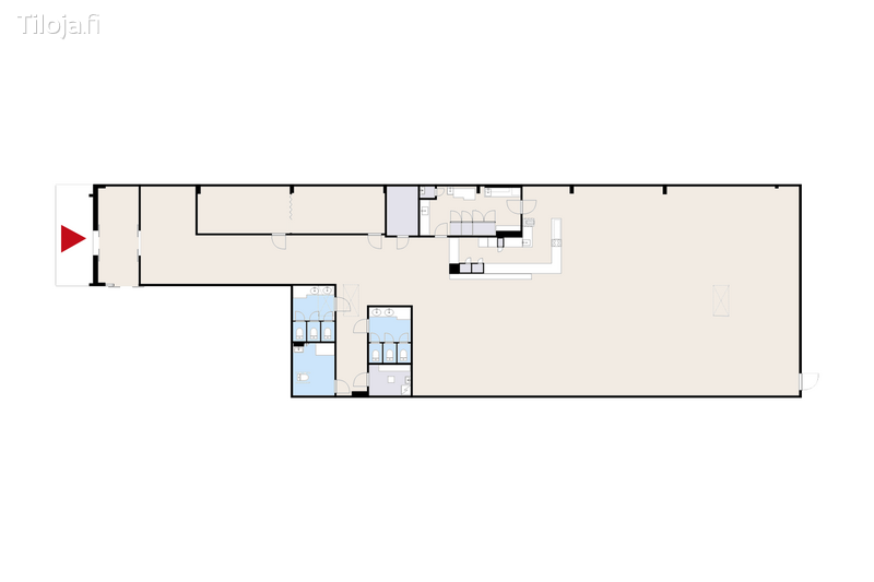
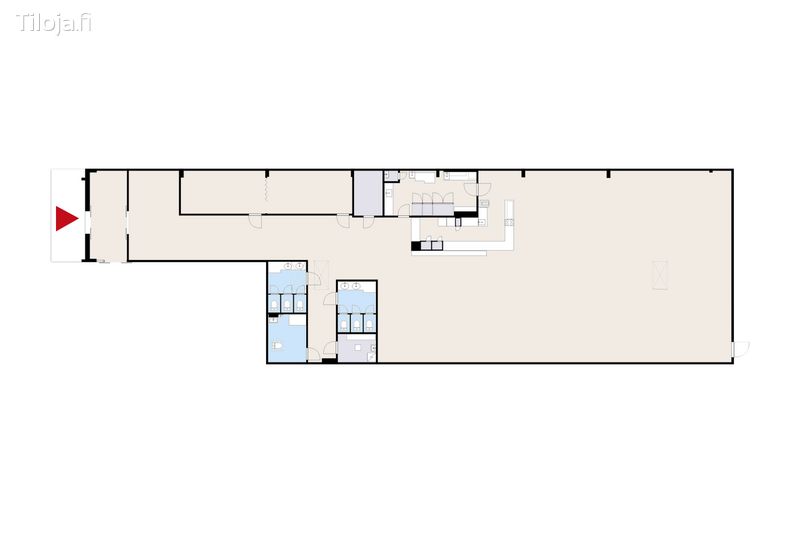
Pohjapiirros
Vuokra
Hintatiedot pyydettäessä!
Vuokraan sisältyy lämpö
Kiinteistö
Tarjolla 508 m² liiketila erinomaisella sijainnilla Tiiriössä, Hämeenlinnassa. Tämä toimitila soveltuu hyvin erilaisiin käyttötarkoituksiin, kuten kaupalliseen toimintaan, varastointiin tai tuotantoon.
Naapurissa toimivat muun muassa Kinex ja Katsastusasema
Toimitilan tiedot:
+ Käyntiosoite: Katsastusmiehenkuja 1, Tiiriö, 13130 Hämeenlinna
+ Tilatyyppi: Liiketila
+ Pinta-ala: 508 m² (Tila on yhdistettävissä viereisen 261 m² tilan kanssa.)
+ Kerros: Katutaso
+ Vapautuminen: Heti vapaa
Ota yhteyttä ja tule tutustumaan tähän monipuoliseen liiketilaan, joka tarjoaa erinomaiset mahdollisuudet liiketoiminnallesi!
Naapurissa toimivat muun muassa Kinex ja Katsastusasema
Toimitilan tiedot:
+ Käyntiosoite: Katsastusmiehenkuja 1, Tiiriö, 13130 Hämeenlinna
+ Tilatyyppi: Liiketila
+ Pinta-ala: 508 m² (Tila on yhdistettävissä viereisen 261 m² tilan kanssa.)
+ Kerros: Katutaso
+ Vapautuminen: Heti vapaa
Ota yhteyttä ja tule tutustumaan tähän monipuoliseen liiketilaan, joka tarjoaa erinomaiset mahdollisuudet liiketoiminnallesi!
Sijainti
Kohde sijaitsee hyvien liikenneyhteyksien varrella, mikä takaa sujuvan pääsyn niin asiakkaiden kuin henkilöstönkin kulkuun. Alueella on kattavat palvelut, jotka tukevat päivittäistä toimintaa.
Pysäköinti
Laaja pysäköintialue mahdollistaa sujuvan asioimisen.
Palvelut
Alueella kattavat palvelut
Vapautuu
Heti vapaana
Energiatehokkuusluokka
Ei lain edellyttämää energiatodistusta
Katutasossa
Näkyvällä paikalla
Ota yhteyttä
Arvo Premises Oy
Joakim Kukkonen
Osakas, Toimitilavälittäjä
Näytä puhelinnumero
040 555 8106
Seppo Pakarinen
Osakas, Kiinteistönvälittäjä. LKV, YKV, AKA
Näytä puhelinnumero
040-703 8000
Pyydä lisätietoa
