Vuokrataan toimistotilat - Helsinki
Keskuskatu 1, Keskusta, 00100 Helsinki #10801728
Vuokrataan korkeatasoista, pääosin avotoimistotilaa ydinkeskustasta Stockmannia vastapäätä. Toimistotilat on modernisoitu muutama vuosi sitten, kiinteistön arvokkuutta kunnioittaen. Ota yhteyttä ja sovi esittely, vuokrauspalvelumme on tilanhakijoille maksuton.
Osoite
Keskuskatu 1, 00100 Helsinki
Tilatyyppi
Toimistotilaa
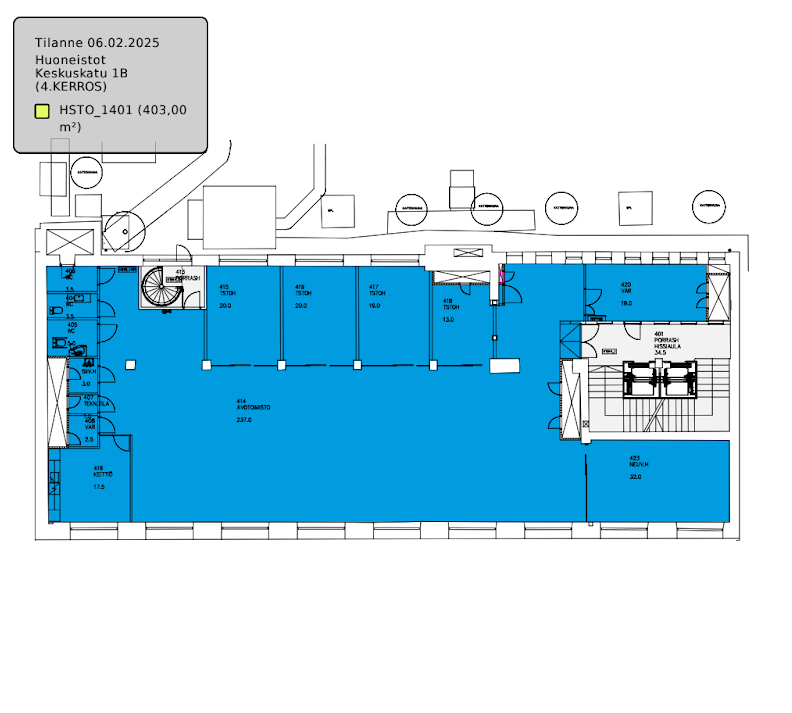
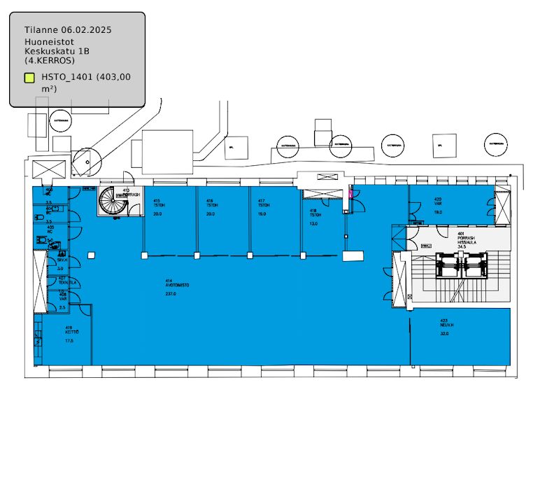
403 m2
Pohjapiirros
Kiinteistö
Helsingin Keskuskatu 1B on Eliel Saarisen vuonna 1921 suunnittelema arvokiinteistö, joka sijaitsee Helsingin business-keskustan ytimessä, keskustan tyylikkäimmän kävelykadun varrella. Kohteen tilat ovat pääosin erikokoisia toimistotiloja sekä katutason liiketilaa.
Vapautuu
Heti
Rakennusvuosi
1921
Kerros
4
Liitetiedostot
Ota yhteyttä
Senaatin Notariaatti Oy LKV
Lämmittäjänkatu 4 A
FIN-00880 Helsinki
Tel:
Näytä puhelinnumero
+358 9 7745 100
Pyydä lisätietoa
