Vuokrataan - Helsinki
Keskuskatu 1 B, Keskusta, 00100 Helsinki #10801687
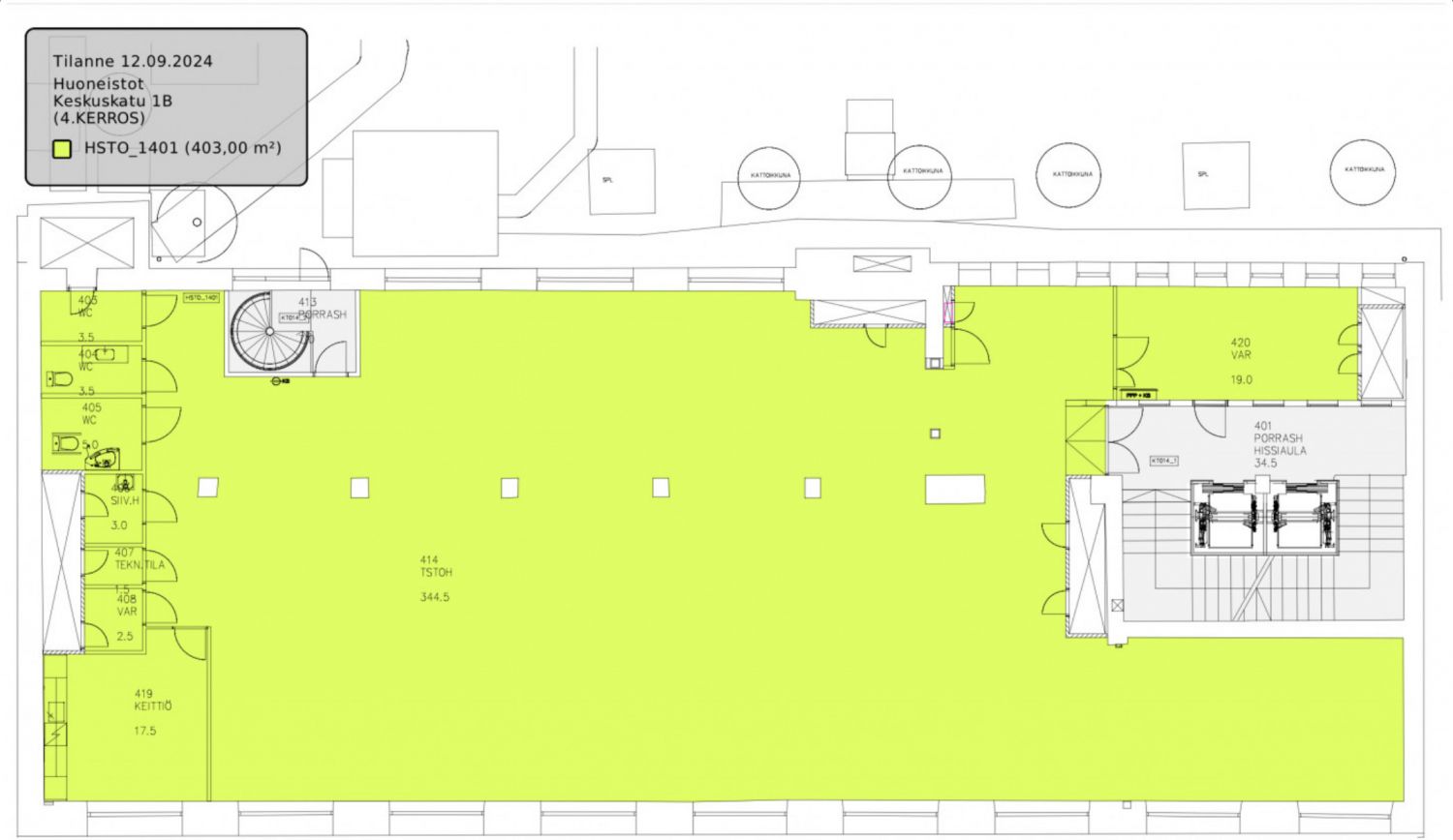
Premium-toimistotila Helsingin sykkeessä – Keskuskatu 1, 403 m², vastapäätä Stockmannia!
Tässä osoitteessa työpäivät alkavat Helsingin parhaimmalta paikalta. Neljännen kerroksen 403 m² toimistotila tarjoaa kaiken, mitä moderni yritys voi toivoa – keskeinen sijainti, monipuoliset tilaratkaisut ja palvelut aivan kulman takana. Tässä tilassa yhdistyvät tyyli, toimivuus ja tehokkuus.
Voiko keskeisempää paikkaa enää olla? Stockmannia vastapäätä sijaitseva toimisto on paitsi helppo löytää myös täydellinen paikka tehdä
vaikutus asiakkaisiin. Kaikki Helsingin keskustan palvelut ovat kävelyetäisyydellä, ja julkiset kulkuyhteydet tuovat sinut ovelle lähes suoraan.
Pääosin avotilasta koostuva pohjaratkaisu tukee modernia työympäristöä, jossa yhteistyö ja luovuus kukoistavat.
Ikkunoista tulviva luonnonvalo ja tilan käytännöllisyys tekevät tästä toimistosta paikan, jossa työnteko ei ole vain velvollisuus vaan myös
nautinto. Viihtyisät tilat tukevat työntekijöiden hyvinvointia ja luovuutta.
Tämä ei ole vain toimistotila, tämä on yrityksesi käyntikortti. Näkyvyys Keskuskadulla Helsingin keskustan sydämessä antaa tilalle ainutlaatuista arvoa ja tekee siitä halutun osoitteen.
Jos yrityksesi etsii toimitilaa, joka tekee vaikutuksen niin tiimiin kuin asiakkaisiinkin – tämä on tilaisuutesi. Varaa esittely ja tule näkemään, miten Keskuskatu 1 voisi olla yrityksesi seuraava menestyksen tukikohta.
Kysy lisää: jouko.raitanen@rhg.fi/0504695444
RHG Real Estate
Hämeenkatu 2 B20, 20500 Turku
Näytä puhelinnumero
020 734 4020
Jouko Raitanen
Näytä puhelinnumero
050 469 5444
