Vuokrataan toimistotilat - Espoo
Kalkkipellontie 6, Leppävaara, 02650 Espoo #10801642
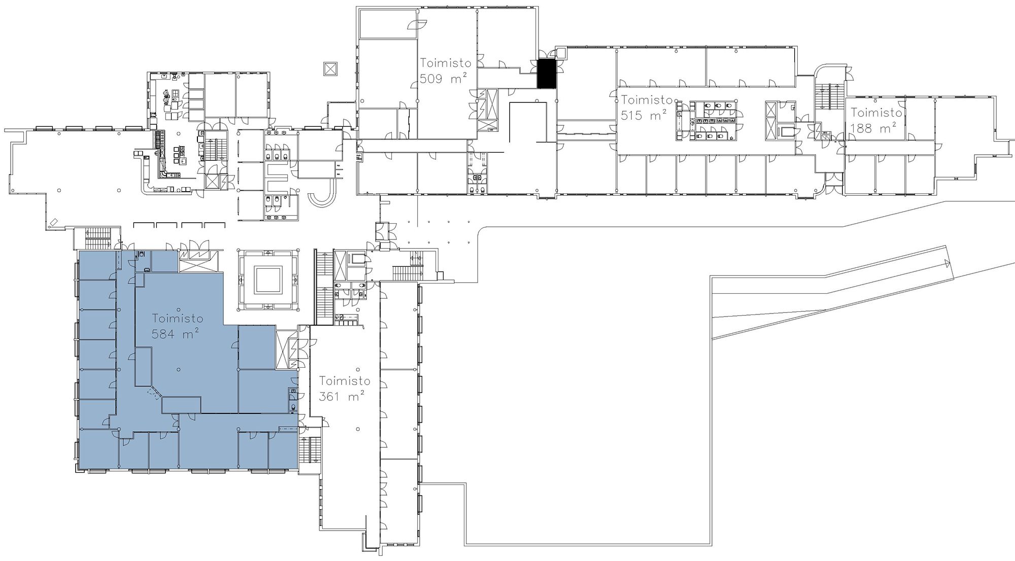
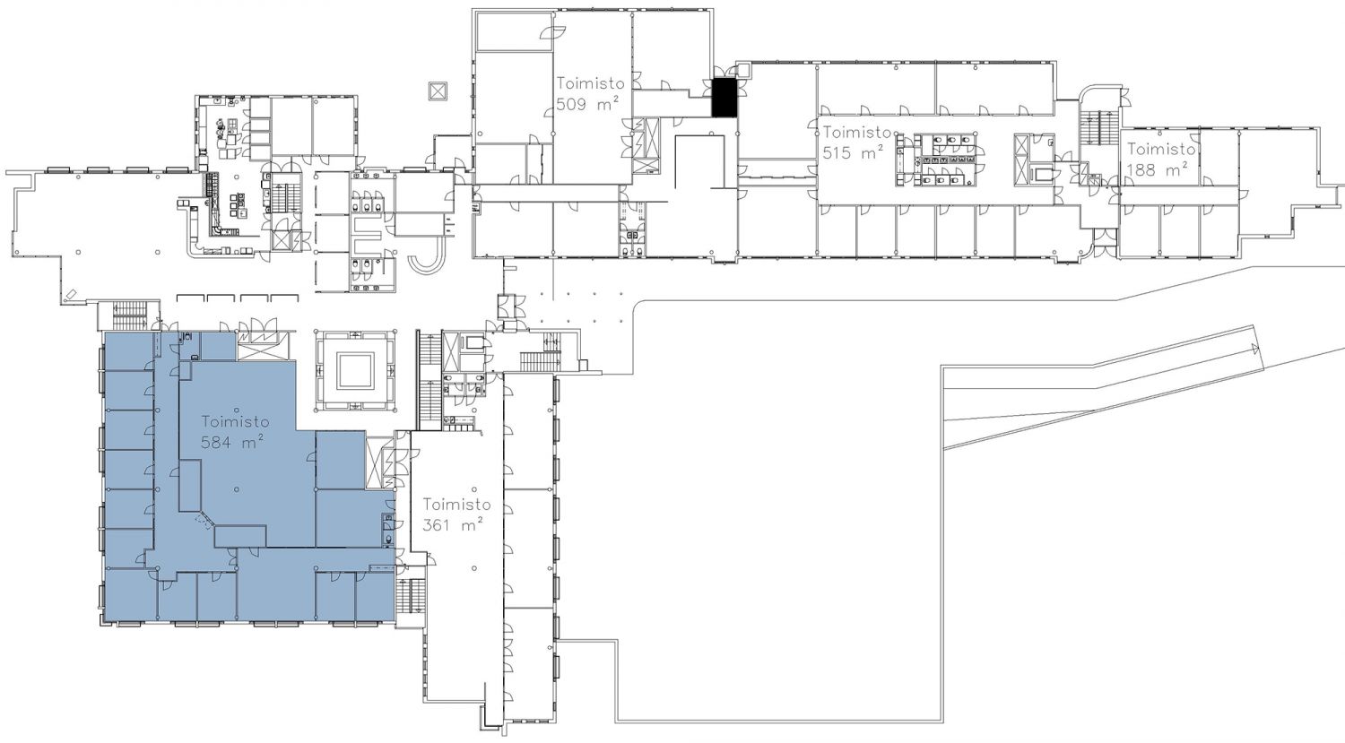
Hyväkuntoinen ja valoisa katotason toimistotila, johon kaksi sisäänkäyntiä.
Osoite
Kalkkipellontie 6, 02650 Espoo
Tilatyyppi
Toimistotilaa
584 m2
Pohjapiirros
Kiinteistö
Tässä Leppävaaran Mäkkylän alueella sijaitsevassa toimistokiinteistössä on yhteensä 8 242 m² muuntojoustavaa toimistotilaa.
Kiinteistössä on aulapalvelu sekä runsaasti erikokoisia neuvottelutiloja ja auditorio. Suuri edustussauna ja saunatila, jota voidaan käyttää myös neuvottelutilana, luovat hienot puitteet mukavaan yhdessäoloon.
Kiinteistössä on aulapalvelu sekä runsaasti erikokoisia neuvottelutiloja ja auditorio. Suuri edustussauna ja saunatila, jota voidaan käyttää myös neuvottelutilana, luovat hienot puitteet mukavaan yhdessäoloon.
Sijainti
Kiinteistö sijaitsee Leppävaaran ja Pitäjänmäen välisellä alueella Mäkkylässä. Mäkkylän asemalle on reilun viiden minuutin kävelymatka. Vanhalla Turuntiellä liikennöivät bussit, kuten Jokerilinja 550, pysähtyvät kiinteistön vieressä. Kiinteistöltä pääsee autolla Kehä I:lle noin kahdessa minuutissa.
Kiinteistön vuokralaisille on pysäköintipaikkoja sekä pihalla että autokatoksessa. Pääsisäänkäynnin viereen on varattu asiakaspysäköintipaikkoja.
Kiinteistön vuokralaisille on pysäköintipaikkoja sekä pihalla että autokatoksessa. Pääsisäänkäynnin viereen on varattu asiakaspysäköintipaikkoja.
Pysäköinti
Autopaikat kiinteistön pihassa ja autokatoksessa
Palvelut
Leppävaaran palvelut reilun 10 minuutin kävelymatkan päässä.
Kulkuyhteydet
Lähimmälle bussipysäkille 200 m
Lähimmälle juna-asemalle 750 m
Lentokentälle 20 min
Lähimmälle juna-asemalle 750 m
Lentokentälle 20 min
Vapautuu
Kysy
Rakennusvuosi
1987
Kerros
1
Energiatehokkuusluokka
C2018
Ympäristöluokitus
RESB Global Sector Leader 2025
Ota yhteyttä
Sponda Oy
Yrjönkatu 29C, 00100 Helsinki
Näytä puhelinnumero
020 43131
Anna Puhtila
Senior Manager, Value Add Portfolio
Näytä puhelinnumero
+358 50 407 9601
Sponda Oy
https://www.sponda.fiPyydä lisätietoa
