Myydään toimistotilat - Tampere
Aleksanterinkatu 29, 33100 Tampere #10801638
Osoite
Aleksanterinkatu 29, 33100 Tampere
Tilatyyppi
Toimistotilaa
165 m2
Muuta
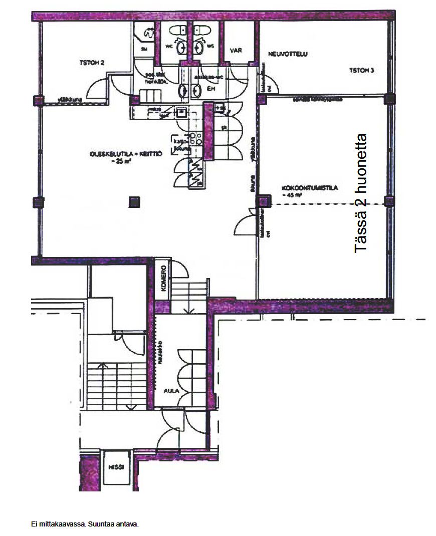
Myydään noin 165 m2 toimistotila ydinkeskustasta.
Avara toimisto/asuinhuoneisto hyvällä sijainnilla ydinkeskustassa.
Rakennusvuosi 1960. Oma tontti. Kaukolämpö.
Huoneisto on vapaa.
Myyntihinta n. 277.358,74 euroa.
Velaton hinta 320.000 euroa.
Esite liitetiedostona.
Kysy lisää!
Avara toimisto/asuinhuoneisto hyvällä sijainnilla ydinkeskustassa.
Rakennusvuosi 1960. Oma tontti. Kaukolämpö.
Huoneisto on vapaa.
Myyntihinta n. 277.358,74 euroa.
Velaton hinta 320.000 euroa.
Esite liitetiedostona.
Kysy lisää!
Vapautuu
Vapaa
Liitetiedostot
Ota yhteyttä
Catella Property Oy
Hämeenkatu 13b A, 33100 Tampere
Näytä puhelinnumero
010 5220 100
Pertti Miettinen
Näytä puhelinnumero
0400 624 801
Pyydä lisätietoa
