Vuokrataan toimistotilat - Vantaa
Äyritie 24, Veromies, 01510 Vantaa #10801626
Vuokrattavana edustavaa ja viihtyisää toimistotilaa Vantaalla.
Osoite
Äyritie 24, 01510 Vantaa
Tilatyyppi
Toimistotilaa
375 m2
Kiinteistö
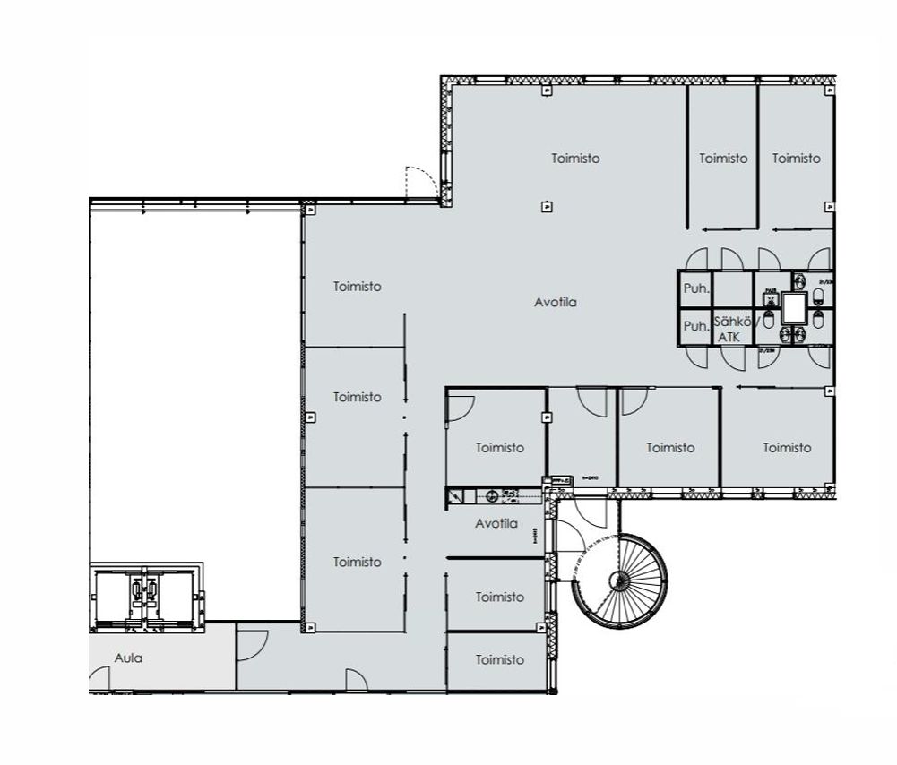
Vuokrattavana edustavaa ja viihtyisää toimistotilaa Vantaalla. Toimisto koostuu avotilasta sekä toimisto-/neuvotteluhuoneista. Tilassa on oma keittiö ja kolme wc: ta.
Sijainti
Veromies, Vantaa
Pysäköinti
Vuokrattavissa Plaza Business Parkin pysäköintitalosta.
Palvelut
-Aulapalvelu
-Henkilöstöravintola
-Vuokrattavia neuvottelutiloja
-Henkilöstöravintola
-Vuokrattavia neuvottelutiloja
Kulkuyhteydet
-Bussipysäkki 300 m
-Juna-asema 1,3 km
-Lentoasema 3,4 km
-Juna-asema 1,3 km
-Lentoasema 3,4 km
Vapautuu
Heti
Kerros
6
Energiatehokkuusluokka
Ei lain edellyttämää energiatodistusta
Näkyvällä paikalla
Hissi
Ota yhteyttä
REALIUM OY LKV
Tammasaarenkatu 1, 00180 Helsinki
Vaihde:
Näytä puhelinnumero
010 326 346
Tuomo Mäkelä
tuomo.makela@realium.fi
p.
Näytä puhelinnumero
044 050 1158
Joel Keto
joel.keto@realium.fi
p.
Näytä puhelinnumero
045 317 0330
KAIKKI TILAVAIHTOEHDOT KERRALLA!
SOITA - MEILAA JA TILAA NÄYTTÖ!
Ilmainen palvelu tilanhakijoille.
Kartoitamme parhaat tilavaihtoehdot.
Kaikki kohteet eivät ole netissä.
Pyydä lisätietoa
