Vuokrataan toimistotilat - Helsinki
Työpajankatu 10, Kalasatama, 00580 Helsinki #10801615
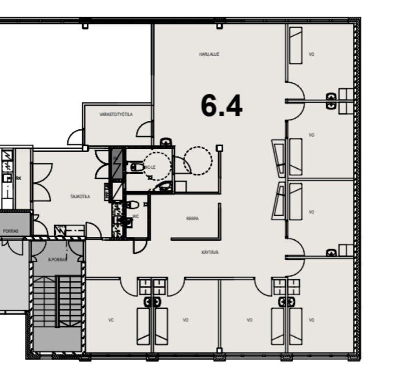
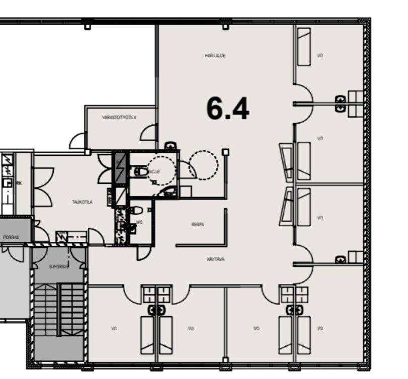
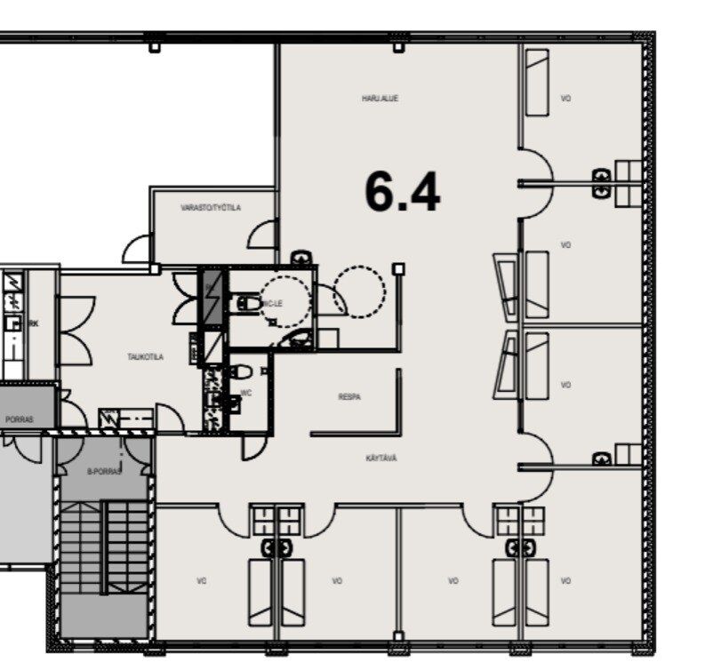
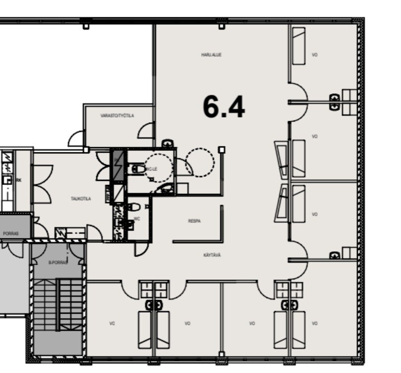
Vuokrataan valoisa toimistotila täydellisellä sijainnilla Helsingin Kalasatamassa. Toimitila koostuu useimmista pienemmistä tiloista sekä avotilasta. Avointa avokonttoria pystyy hyödyntämään monipuolisesti oman tarpeen mukaan ja pienemmistä tiloista löytyy, niin säilytystilaa, kuin myös vesipisteet. Tilasta löytyy taukotila, varasto, toimistokeittiö sekä wc-tilat.
Helsingin Yrittäjätalo tarjoaa toimistotiloja hyvien kulkuyhteyksien varrelta, Kalasataman metroasemaa vastapäätä. Näihin remontoituihin tiloihin on tuotu modernia talotekniikkaa, ilmanvaihto ja -jäähdytys sekä valaistusratkaisut. Toimitilat rakentuvat laadukkailla ratkaisuilla teidän tilatarpeenne huomioiden. Tilojen uniikit yksityiskohdat kuten kaksikerroksinen näyttävä aulatila toivottavat niin työntekijät kuin asiakkaat tervetulleiksi.
Autamme teitä löytämään juuri teille parhaiten sopivat tilat. Olemme puolueettomia asiantuntijoita ja edustamme kaikkia kiinteistönomistajia. Meillä on välityksessä kaikki toimitilat. Tunnemme toimitilamarkkinat, talot ja tilat vankalla kokemuksella sekä tiedämme alustavat vuokratasot.
Tehtävämme on tehdä toimitilahaustasi onnistunut ja helppo. Palkkiomme saamme kiinteistönomistajilta, joten sinulle palvelumme on maksuton.
Hissi
Croisette Real Estate Partner
Erottajankatu 5 A 6, 00130 Helsinki
Näytä puhelinnumero
+358 400 585 857
Croisette Vuokraus
Näytä puhelinnumero
+358400585857
