Vuokrataan - Helsinki
Työpajankatu 10, Kalasatama, 00580 Helsinki #10801493
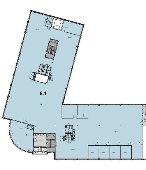
Helsingin Yrittäjätalosta vuokrattavana 6. kerroksen pientuotantotila, johon tavarahissiyhteys. Tila on yhdistettävänä viereisen toimistotilan kanssa (224 m2). Tilassa on epoksilattia. Tarvittaessa tila voidaan jakaa.
Yrittäjätalo on monien käyttäjien toimistotalo, joka sijaitsee hyvien kulkuyhteyksien varrella Kalasataman metroaseman vastapäätä.
Osoite
Työpajankatu 10, 00580 Helsinki
Vapautuu
Kysy
Huoneiden lukumäärä
1
Energiatehokkuusluokka
Ei lain edellyttämää energiatodistusta
Ota yhteyttä
RHG Real Estate
Hämeenkatu 2 B20, 20500 Turku
Näytä puhelinnumero
020 734 4020
Heli Reinberg
Näytä puhelinnumero
040 647 4900
Pyydä lisätietoa
