Vuokrataan toimistotilat - Helsinki
Eteläesplanadi 18, Keskusta, 00130 Helsinki #10801472
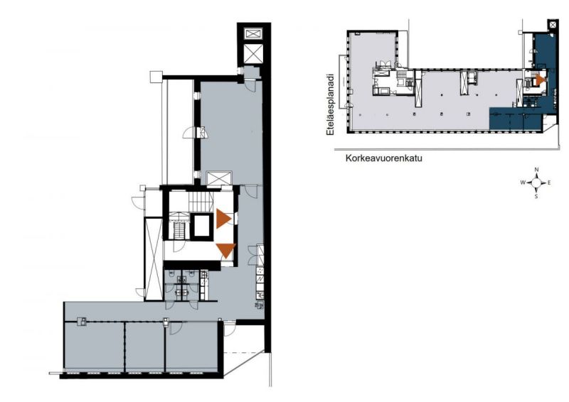
Vuokrataan hieno toimistotila Eteläesplanadilta. Tilassa on avotoimistoa, työhuone, sekä keittiö ja kaksi wc:tä. Erikoisuutena kaksi omaa kattoterassia, joista upeat näkymät kaupungin kattojen ylle.
Lisätietoja soita 020 730 4530 tai info@repoint.fi. Palvelumme on tilanhakijalle ilmainen.
Osoite
Eteläesplanadi 18, 00130 Helsinki
Tilatyyppi
Toimistotilaa
128 m2
Vapautuu
Kysy
Kerros
8
Ota yhteyttä
Repoint Toimitilat Oy
Itälahdenkatu 22 B, 00210 Helsinki
Näytä puhelinnumero
020 730 4530
Lisätietoja soita Näytä puhelinnumero 020 730 4530 tai info@repoint.fi
https://repoint.fi/Pyydä lisätietoa
