Vuokrataan toimistotilat - Helsinki
Työpajankatu 10, Kalasatama, 00580 Helsinki #10801413
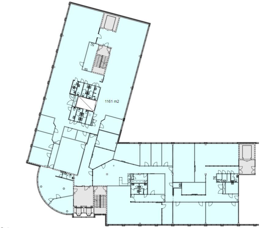
Nykyaikaiseksi ja omiin tarpeisiin remontoitava monitilatoimisto Yrittäjätalosta Kalasatamasta. Yrittäjätalon palveluihin kuuluu mm. lounasravintola ja viihtyisä vastaremontoitu saunatila edustustilaisuuksia varten. Tila on myös jaettavissa.
Lisätietoja 020 7290 710 ja lisää kohteita premises.fi.
Kohteella ei ole lain edellyttämää energiatodistusta tai energialuokka ei tiedossa.Kerros: 6
Osoite
Työpajankatu 10, 00580 Helsinki
Tilatyyppi
Toimistotilaa
1161 m2
Ota yhteyttä
CRE PREMISES
Puh. Näytä puhelinnumero 020 7290 710
Vantaankoskentie 14
01670 VANTAA
Pyydä lisätietoa
