Vuokrataan toimistotilat - Helsinki
Työpajankatu 2, Kalasatama, 00580 Helsinki #10801407
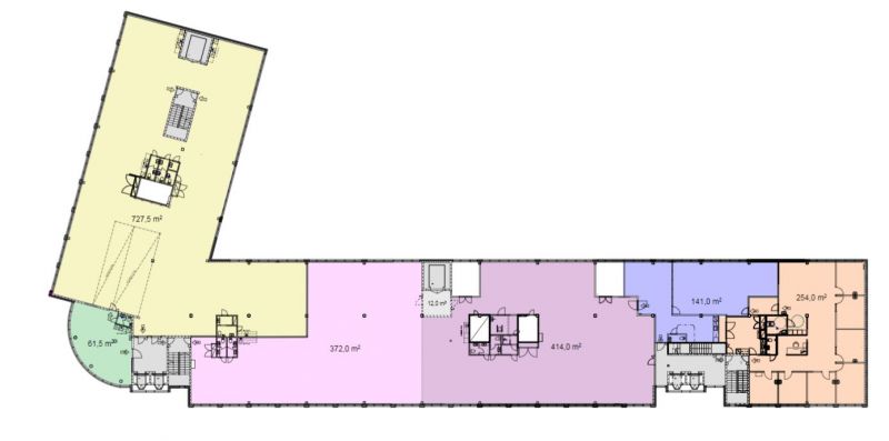
Vuokrataan saneerattua toimitilaa Yrittäjätalosta Kalasatamasta. Toimistotilaan tehdään täysi remontti ja vapaasta 1575 m2 tilasta on mahdollista vuokrata omiin tarpeisiin sopiva tila. Kysy lisää.
Yrittäjätalon palveluihin kuuluu mm. lounasravintola ja viihtyisä vastaremontoitu saunatila edustustilaisuuksia varten.
Lisätietoja 020 7290 710 ja lisää kohteita premises.fi.
Kohteella ei ole lain edellyttämää energiatodistusta tai energialuokka ei tiedossa.Kerros: 6
Osoite
Työpajankatu 2, 00580 Helsinki
Tilatyyppi
Toimistotilaa
224 m2
Ota yhteyttä
CRE PREMISES
Puh. Näytä puhelinnumero 020 7290 710
Vantaankoskentie 14
01670 VANTAA
Pyydä lisätietoa
