Vuokrataan toimistotilat - Jyväskylä
Viveca, Rautpohjankatu 8, Rautpohja, 40700 Jyväskylä #10801380
Vuokrataan toimistotilaa Rautpohjasta
Osoite
Rautpohjankatu 8, 40700 Jyväskylä
Tilatyyppi
Toimistotilaa
750 m2
Muuta
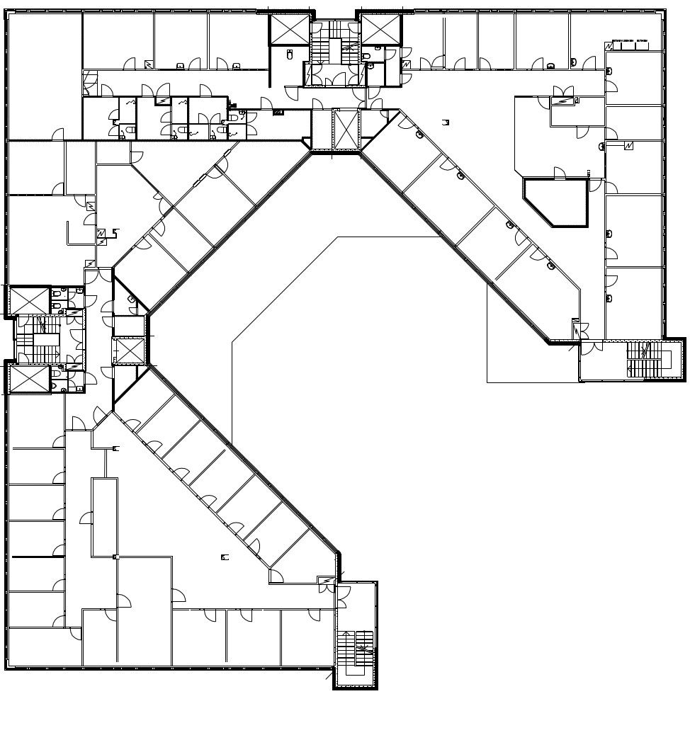
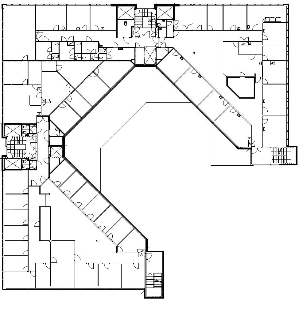
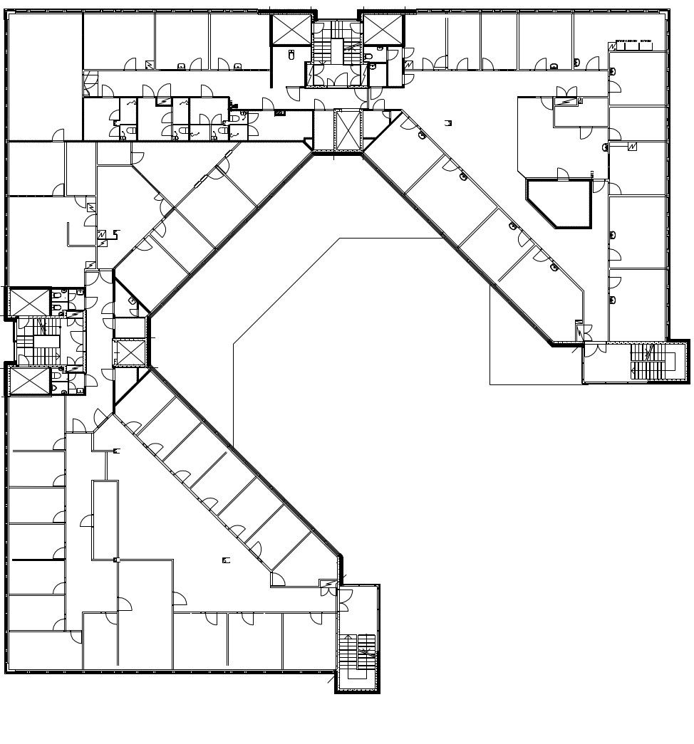
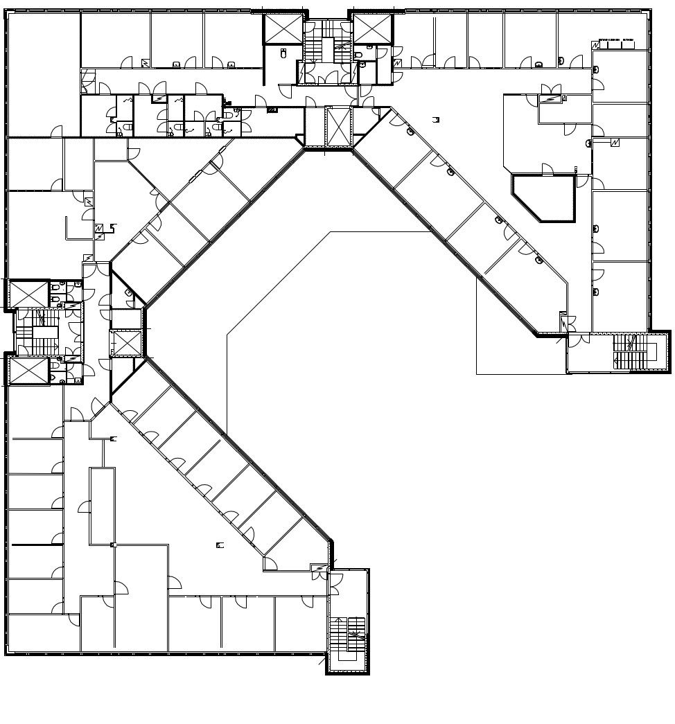
Näkyvällä paikalla sijaitseva, vuonna 2003 rakennetun kiinteistön 3. kerroksen noin 750 m2 toimistotilakokonaisuus vapautuu tammikuussa 2025 uuden vuokralaisen käyttöön.
Sijainti Rautpohjassa on mitä mainioin. Toimivat ja kattavat liikenneyhteydet niin omalla autolla kuin bussilla liikkuville.
Kiinteistön läheisyydestä löytyy mm. lounasravintoloita ja runsaasti pysäköintitilaa. Sairaala Nova noin 1 km päässä ja Jyväskylän keskustaan noin 2 km. Hissillinen talo.
Soita ja sovi näyttö!
Sijainti Rautpohjassa on mitä mainioin. Toimivat ja kattavat liikenneyhteydet niin omalla autolla kuin bussilla liikkuville.
Kiinteistön läheisyydestä löytyy mm. lounasravintoloita ja runsaasti pysäköintitilaa. Sairaala Nova noin 1 km päässä ja Jyväskylän keskustaan noin 2 km. Hissillinen talo.
Soita ja sovi näyttö!
Vapautuu
01.01.2025
Rakennusvuosi
2003
Kerros
3
Ota yhteyttä
Infonia Oy
Kauppakatu 18 A, 40100 Jyväskylä
Näytä puhelinnumero
+358 407579731
Mikko Hirvi
Näytä puhelinnumero
+358 407579731
Pyydä lisätietoa
