Vuokrataan toimistotilat - Tampere
Hatanpään Valtatie 36, Hatanpää, 33100 Tampere #10801331
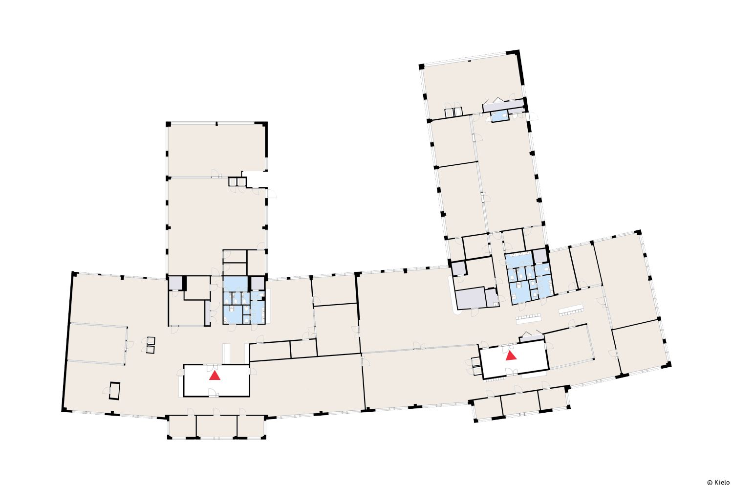
Vapautumassa vuokralle viidennen kerroksen nykyaikainen toimistotila. Tila käsittää koko kerroksen, johon tilasuunnittelusta riippuen mahdollisuus n. 140-170 työpistettä + neuvottelu- ja taukotilat. Ikkunoista upeat näkymät niin järvelle kuin Tampereen keskustaan. Pohjakuva on esimerkki tilasovituksesta. Tilasuunnittelu tehdään yhdessä käyttäjän kanssa.
36Hatanpää on laajasti peruskorjattu Business Park -kiinteistö. Energiatehokkuus, hyvä sisäilma ja korkeatasoiset tilat olivat v. 2021 valmistuneen saneerauksen avaintekijät. Kohteella on LEED Gold -ympäristösertifikaatti. 36Hatanpään palveluihin lukeutuu mm. aulapalvelu, yhteiskäyttöiset neuvottelu- ja saunatilat, lounasravintola ja kuntosali sekä noin 400 pysäköintipaikkaa pysäköintihallissa ja pihalla, ml. asiakaspysäköinti. Vuokrattavia tiloja löytyy rakennusten ylimmistä kerroksista 5–6, poikkeuksellisen hienoin näkymin. Tilakoot alkaen n. 250 m²–2600 m². Tilakoosta riippuen tilalla on joko omat wc tilat tai yhteiskäyttöiset kerroksen muiden käyttäjien kanssa.
Kielo
Juho Ihanamäki
Näytä puhelinnumero
040 529 3212
Tarjoamme toimi-, kokous- ja saunatiloja niin isoille kuin pienillekin yrityksille!
https://kielotoimitilat.fi/