Vuokrataan toimistotilat - Helsinki
Lautatarhankatu 6, Kalasatama, 00580 Helsinki #10801329
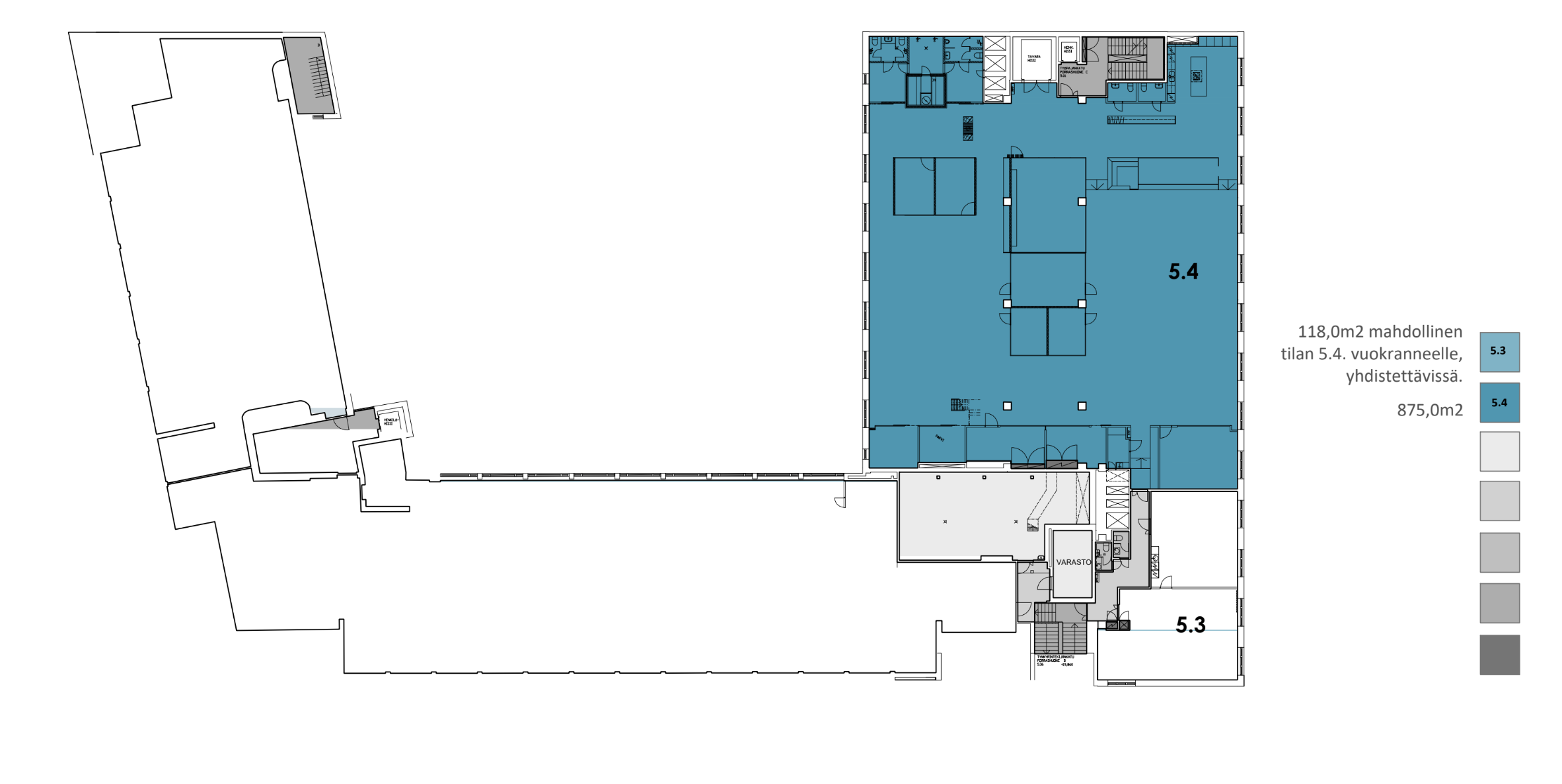
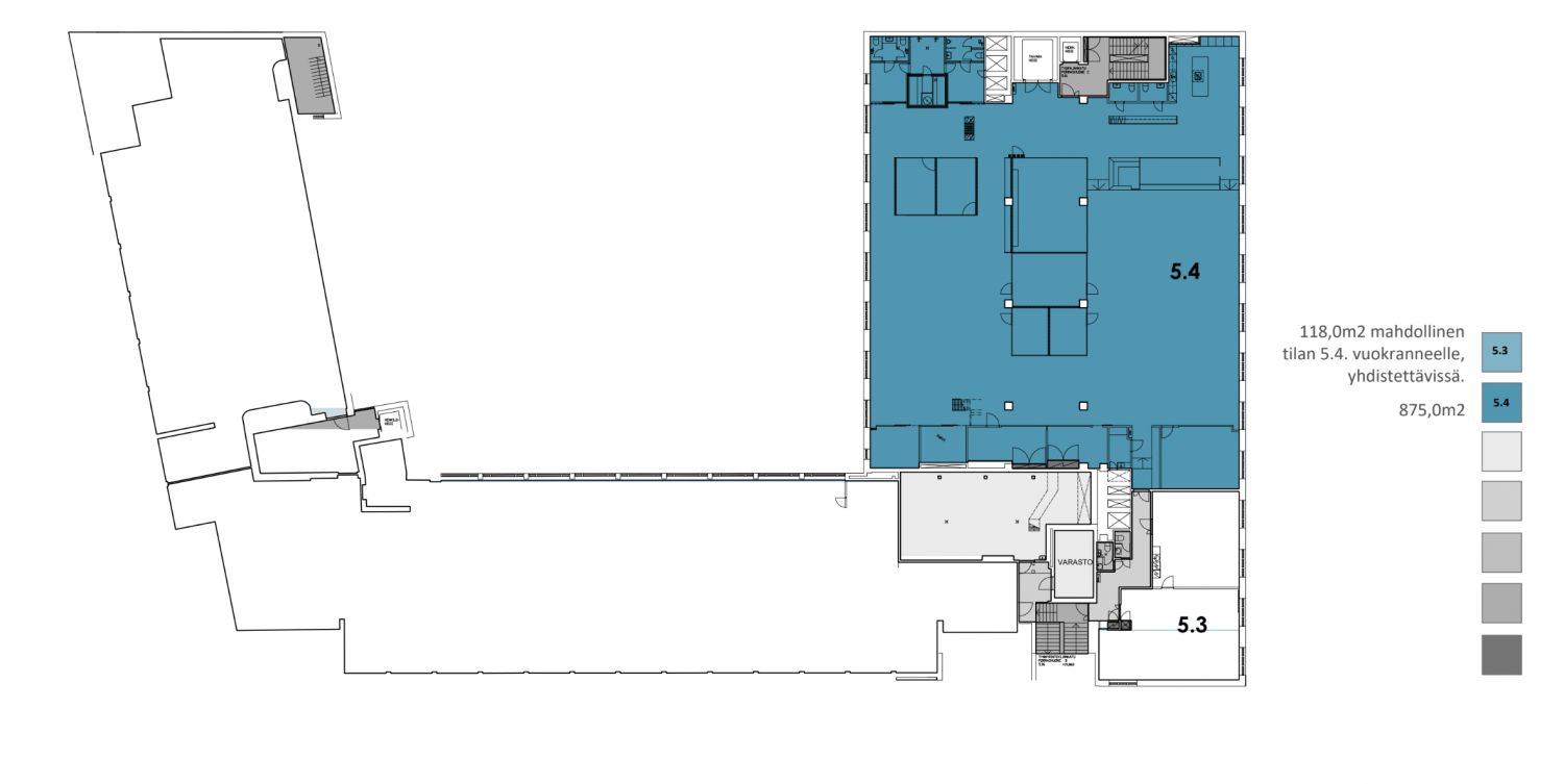
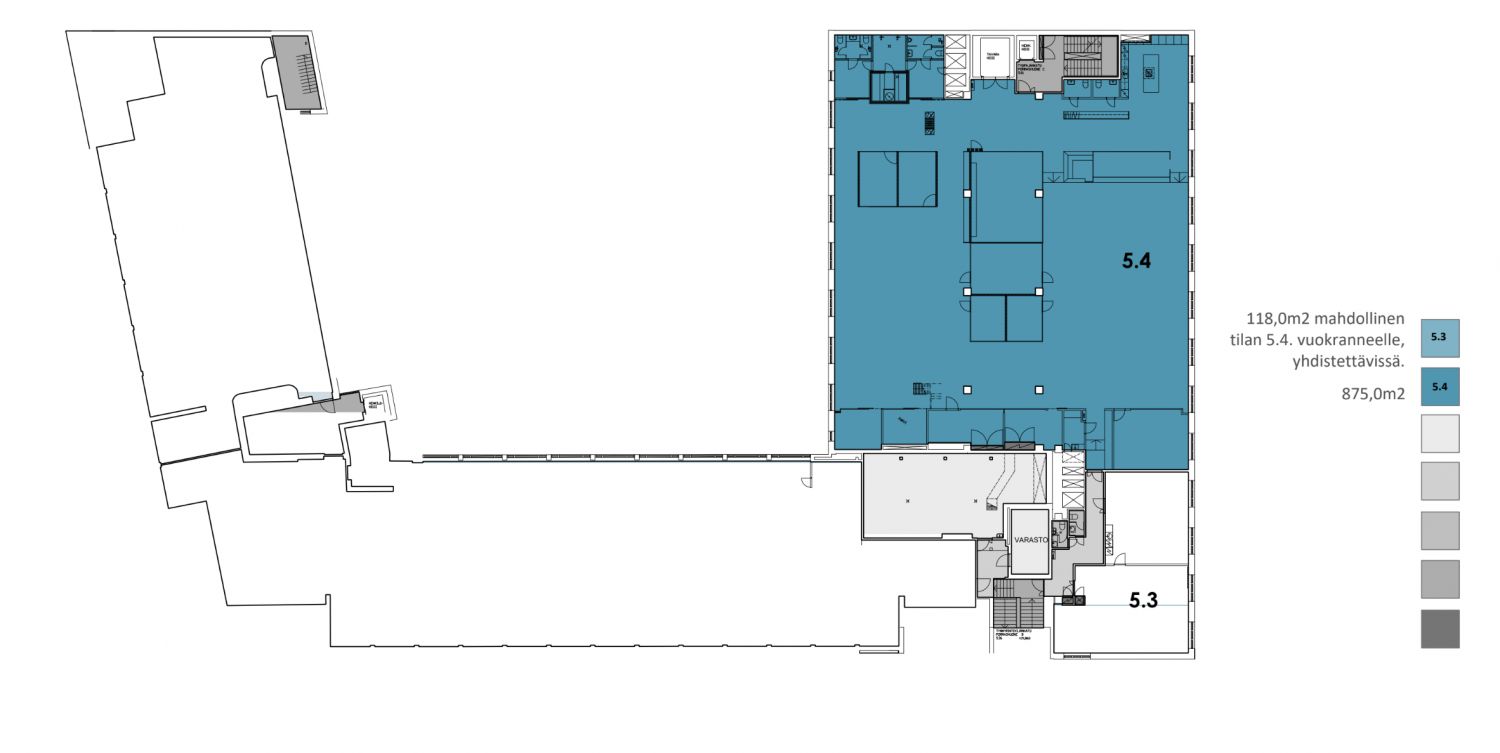
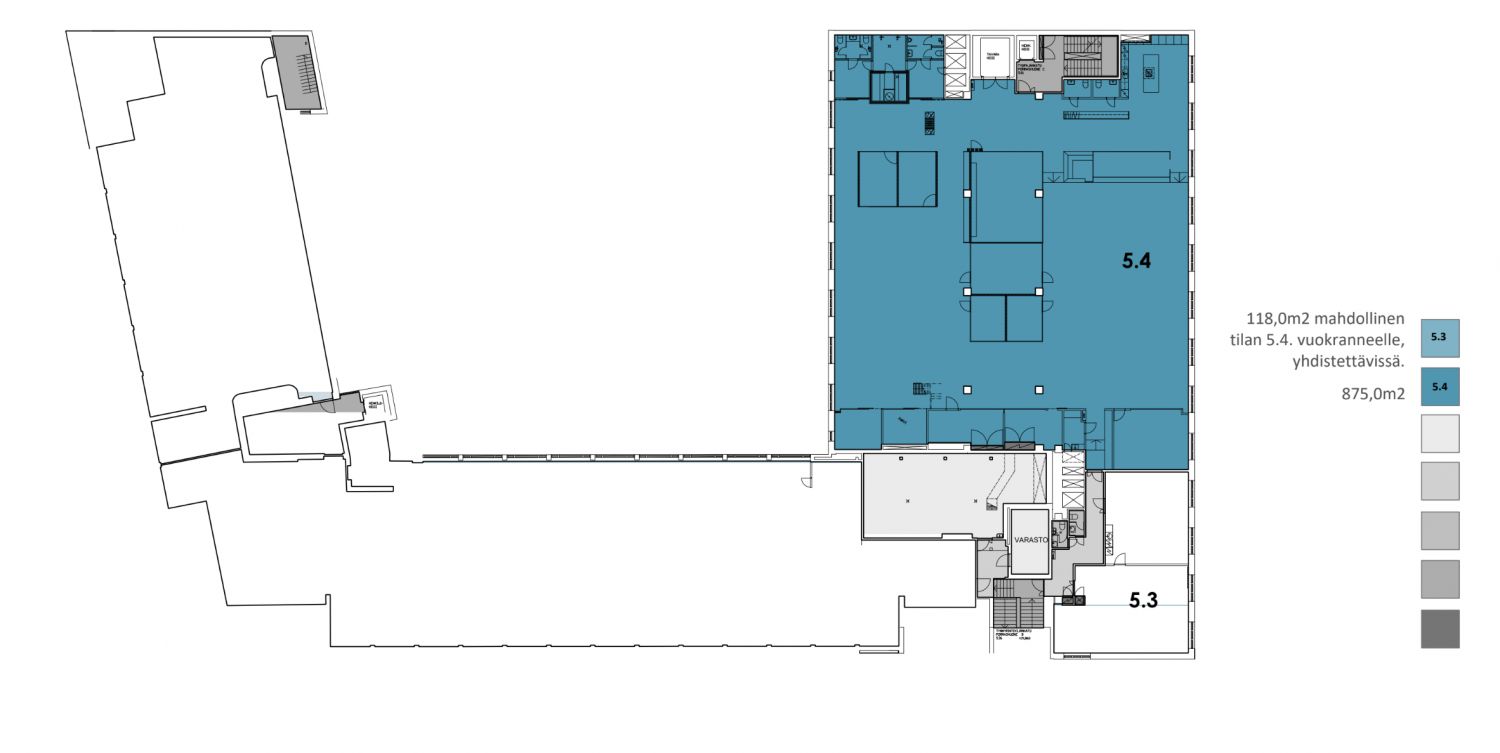
Vapaana ylimmän kerroksen korkeakattoinen ja valoisa ullakkotoimisto, jossa on kattoikkunoita, sisäparvi, oma keittiö ja tavarahissi. Tyylikkään kokonaisuuden kruunaavat oma takka ja sauna. Ota yhteyttä niin käydään tutustumassa tähän upeaan tilaan!
Lindström Talo on alueen vanhimpia kiinteistöjä ja rakennettu vuonna 1902. Talo toimi nimensä mukaisesti Lindströmin pesularakennuksena, mutta koki täydellisen remontin vuonna 2003, jolloin se uudistettiin pesulasta moderniksi tämän päivän toimistotilaksi. Kiinteistön vanhan käyttötarkoituksen vuoksi osa tilasta on upeaa yli neljän metrin huonekorkeudellista industrial-henkistä tilaa suurine ikkunoineen.
Kiinteistön päivityksen yhteydessä otettiin huomioon nykypäivän vaateet ja tila onkin muokattavissa joustavasti erilaisiin tarpeisiin. Talosta löytyy aulapalvelun lisäksi myös yhteisiä neuvottelutiloja ja ravintola, josta saa niin aamupalaa kuin lounastakin. Lindströmin Talo sijaitsee aivan Teurastamon urbaanin kaupunkikeskuksen vieressä, josta löydät lounasvaihtoehtoja. Kauppakeskus REDI sijaitsee kävelymatkan päässä.
Croisette on uusi ja innovatiivinen toimitilojen välitysyritys Suomessa. Meillä on vahva halu auttaa teitä löytämään paras toimitilaratkaisu mahdollisimman vaivattomasti. Huomaathan, että kaikki vapaat ja vapautuvat tilat ovat kauttamme saatavilla. Osa tiloista on hiljaisessa markkinoinnissa, mutta ottamalla meihin yhteyttä saat nekin tietoosi. Palvelumme on tilanhakijoille täysin maksutonta.
Hissi
Croisette Real Estate Partner
Erottajankatu 5 A 6, 00130 Helsinki
Näytä puhelinnumero
+358 400 585 857
Croisette Vuokraus
Näytä puhelinnumero
+358400585857
