Vuokrataan liiketilat - Helsinki
Kaivokatu 10, Keskusta, 00100 Helsinki #10801326
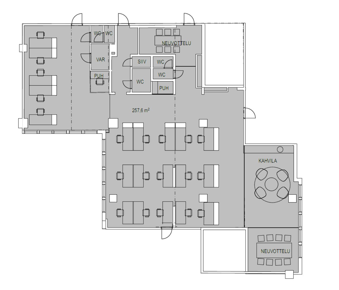
Tyylikäs muuttovalmis avotoimisto Kaivotalosta Helsingin keskeisimmältä paikalta. Valoisa ja ajanmukainen tila on tarpeen mukaan kattavasti muokattavissa vastaamaan uuden käyttäjän tarpeita.
Arkkitehti Pauli Salomaan suunnittelema Kaivotalo valmistui tyylisuuntansa malliesimerkiksi vuonna 1955. Kaivotalon ensimmäisessä ja toisessa kerroksessa sijaitsee liiketiloja, ylemmät kerrokset toimivat toimistotiloina.
Tässä olet lähellä kaikkea ja tähän on tasapuolisen helppoa tulla ihan kaikista suunnista – metro itään ja länteen, junat läheltä ja kaukaa, lentokentältäkin.
Croisette on uusi ja innovatiivinen toimitilojen välitysyritys Suomessa. Meillä on vahva halu auttaa teitä löytämään paras toimitilaratkaisu mahdollisimman vaivattomasti.
Huomaathan, että kaikki vapaat ja vapautuvat tilat ovat kauttamme saatavilla. Osa tiloista on hiljaisessa markkinoinnissa, mutta ottamalla meihin yhteyttä saat nekin tietoosi.
Palvelumme on tilanhakijoille täysin maksutonta.
Croisette Real Estate Partner
Erottajankatu 5 A 6, 00130 Helsinki
Näytä puhelinnumero
+358 400 585 857
Croisette Vuokraus
Näytä puhelinnumero
+358400585857
