Vuokrataan toimistotilat - Espoo
Bertel Jungin aukio 3, Leppävaara, 02600 Espoo #10801318
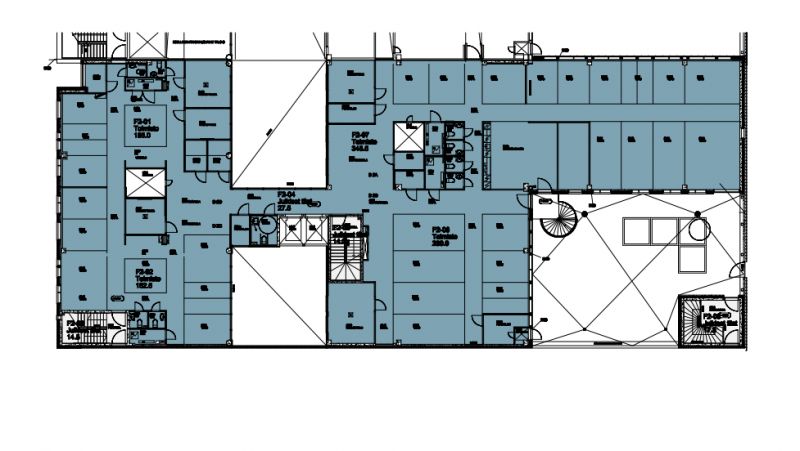
Vuokrattavana koko kerroksen siistiä, modernia, tilavaa toimistotilaa.
Osoite
Bertel Jungin aukio 3, 02600 Espoo
Tilatyyppi
Toimistotilaa
920,5 m2
Kiinteistö
Vuokrattavana koko kerroksen siistiä, modernia, tilavaa toimistotilaa erinomaisella paikalla Kauppakeskus Sellon vieressä.
Sijainti
Leppävaara, Espoo
Pysäköinti
Kiinteistössä on oma pysäköintitalo.
Palvelut
- Aulapalvelu
- Catering
- Kuntosali
- Saunatilat
- Toimistokalusteet
- Vuokrattavia neuvottelutiloja
- Catering
- Kuntosali
- Saunatilat
- Toimistokalusteet
- Vuokrattavia neuvottelutiloja
Kulkuyhteydet
- Lähijuna
- Bussi
- Oma auto
- Bussi
- Oma auto
Vapautuu
Heti
Kerros
2
Energiatehokkuusluokka
Ei lain edellyttämää energiatodistusta
Näkyvällä paikalla
Hissi
Ota yhteyttä
REALIUM OY LKV
Tammasaarenkatu 1, 00180 Helsinki
Vaihde:
Näytä puhelinnumero
010 326 346
Tuomo Mäkelä
tuomo.makela@realium.fi
p.
Näytä puhelinnumero
044 050 1158
Joel Keto
joel.keto@realium.fi
p.
Näytä puhelinnumero
045 317 0330
KAIKKI TILAVAIHTOEHDOT KERRALLA!
SOITA - MEILAA JA TILAA NÄYTTÖ!
Ilmainen palvelu tilanhakijoille.
Kartoitamme parhaat tilavaihtoehdot.
Kaikki kohteet eivät ole netissä.
Pyydä lisätietoa
