Vuokrataan varastotilat - Tuusula
Högberginhaara 3, 04360 Tuusula #10801234
Varastotilaa vuokrattavana Tuusulasta
Osoite
Högberginhaara 3, 04360 Tuusula
Tilatyyppi
Varastotilaa
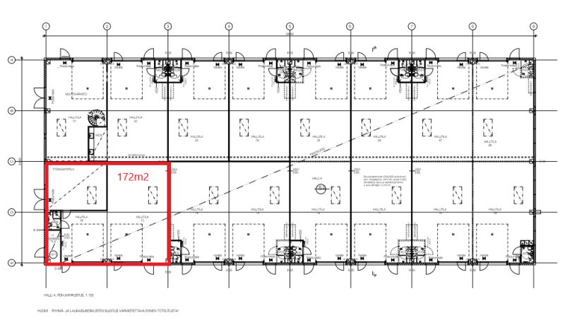
86 m2
Tilajako
Jaettavissa
Pohjapiirros
Vuokra
Hinta tiedot pyydettäessä!
Vuokraan sisältyy lämpö
Kiinteistö
Tarjolla monipuolista ja käytännöllistä varastotilaa loistavalla sijainnilla Tuusulassa. Tämä 172 m² kokoinen varastotila sopii erinomaisesti esimerkiksi logistiikkaan, varastointiin tai kevyeen tuotantoon. Tilan voi myös joustavasti jakaa kahteen osaan 86 m² / 86m².
Tilan tiedot:
+ Pinta-ala: 172 m² (mahdollisuus jakaa puoliksi)
+ Kaksi nosto-ovea: Helppo lastaus ja purku
+ Lämmitys ja ilmanvaihto: Tilassa on tehokas lämmitys ja ilmanvaihtojärjestelmä, joka takaa mukavat työolosuhteet ympäri vuoden
+ Lattian kantavuus: Sopii raskaampaan kalustoon ja varastointiin
+ Korkeus: Mahdollistaa korkeiden hyllyratkaisujen ja ajoneuvojen käytön
+ Vapautuminen: 1/2025
Kiinnostuitko? Ota yhteyttä ja sovi esittely!
Tilan tiedot:
+ Pinta-ala: 172 m² (mahdollisuus jakaa puoliksi)
+ Kaksi nosto-ovea: Helppo lastaus ja purku
+ Lämmitys ja ilmanvaihto: Tilassa on tehokas lämmitys ja ilmanvaihtojärjestelmä, joka takaa mukavat työolosuhteet ympäri vuoden
+ Lattian kantavuus: Sopii raskaampaan kalustoon ja varastointiin
+ Korkeus: Mahdollistaa korkeiden hyllyratkaisujen ja ajoneuvojen käytön
+ Vapautuminen: 1/2025
Kiinnostuitko? Ota yhteyttä ja sovi esittely!
Sijainti
Tila sijaitsee erinomaisella paikalla Högberginhaara 3, Tuusulassa. Läheiset päätiet tarjoavat hyvän saavutettavuuden pääkaupunkiseudulle ja muualle Uudenmaan alueelle.
Palvelut
Tuusulan alue tarjoaa kattavat palvelut yrityksille. Lähialueella on monipuolisia ravintoloita ja kahviloita sekä päivittäistavarakauppoja, jotka helpottavat työntekijöiden arkea. Lisäksi lähialueella toimii useita logistiikka- ja teollisuusyrityksiä, mikä tekee ympäristöstä yritystoiminnalle suotuisaa.
Vapautuu
1/2025
Energiatehokkuusluokka
Ei lain edellyttämää energiatodistusta
Katutasossa
Näkyvällä paikalla
Jaettavissa
Ota yhteyttä
Pyydä lisätietoa
