Vuokrataan toimistotilat - Helsinki
Erottajankatu 15, Kaartinkaupunki, 00130 Helsinki #10801222
Vuokrataan Helsingin parhaalta paikalta toimistotilaa
Osoite
Erottajankatu 15, 00130 Helsinki
Tilatyyppi
Toimistotilaa
505 m2
Tila soveltuu
Coworking
Muuta
Vuokrattavana 4. kerroksen 505 m² toimistotila Helsingin keskustassa. Tämä korkealuokkainen toimisto sijaitsee erinomaisella paikalla aivan palveluiden keskellä ja tarjoaa upeat näkymät kaupungin ylle.
Tila on suunniteltu modernin työskentelyn tarpeisiin, ja sen tyylikkäät sekä korkeat sisätilat luovat viihtyisän ja inspiroivan työympäristön. Rakennuksen klassinen julkisivu tuo tiloihin ripauksen vanhan ajan glamouria, yhdistäen sen nykyaikaiseen toiminnallisuuteen.
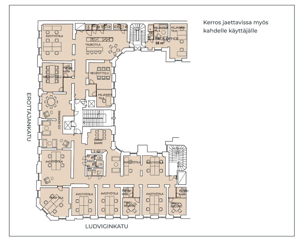
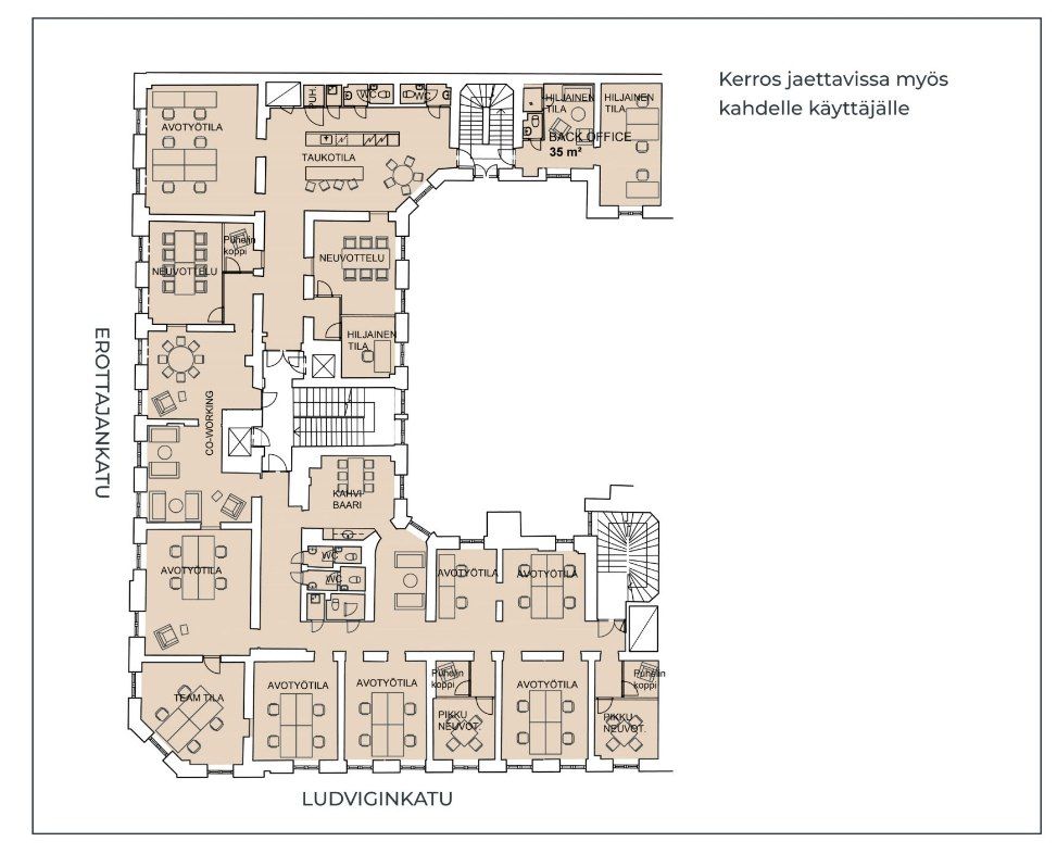
Toimisto on jaettavissa myös kahdelle käyttäjälle, ja tiloista löytyy monipuolisia ratkaisuja erilaisiin työskentelytapoihin, kuten tilat luovaan co-working-työskentelyyn.
Rakennukseen on myös suunnitteilla kellaritilat, jotka sisältäisivät suihkut ja pyöräpaikkoja henkilöstön käyttöön. Mahdollisuus aulapalveluihin, toteutuminen riippuu kiinteistön täyttöasteesta.
Kohde sopii sekä pienille että suuremmille yrityksille, jotka arvostavat viihtyisyyden ja toiminnallisuuden yhdistelmää.
Tervetuloa tutustumaan, varaathan välittäjältä oman esittelyaikasi. Voit kysyä meiltä myös muita sopivia vaihtoehtoja, kauttamme löydät juuri Teidän tarpeisiinne sopivat tilat. Palvelumme on tilanhakijalle veloitukseton!
Tila on suunniteltu modernin työskentelyn tarpeisiin, ja sen tyylikkäät sekä korkeat sisätilat luovat viihtyisän ja inspiroivan työympäristön. Rakennuksen klassinen julkisivu tuo tiloihin ripauksen vanhan ajan glamouria, yhdistäen sen nykyaikaiseen toiminnallisuuteen.
Toimisto on jaettavissa myös kahdelle käyttäjälle, ja tiloista löytyy monipuolisia ratkaisuja erilaisiin työskentelytapoihin, kuten tilat luovaan co-working-työskentelyyn.
Rakennukseen on myös suunnitteilla kellaritilat, jotka sisältäisivät suihkut ja pyöräpaikkoja henkilöstön käyttöön. Mahdollisuus aulapalveluihin, toteutuminen riippuu kiinteistön täyttöasteesta.
Kohde sopii sekä pienille että suuremmille yrityksille, jotka arvostavat viihtyisyyden ja toiminnallisuuden yhdistelmää.
Tervetuloa tutustumaan, varaathan välittäjältä oman esittelyaikasi. Voit kysyä meiltä myös muita sopivia vaihtoehtoja, kauttamme löydät juuri Teidän tarpeisiinne sopivat tilat. Palvelumme on tilanhakijalle veloitukseton!
Vapautuu
Kysy
Rakennusvuosi
1886
Kerros
4
Ota yhteyttä
Tuloskiinteistöt Oy
Rikhardinkatu 2 B 5, 00130 Helsinki
Näytä puhelinnumero
(09) 6841 620
Nina Meyke
Commercial Real Estate Advisor
Näytä puhelinnumero
+358 50 466 1519
Jorma Ryynänen
Commercial Real Estate Advisor LKV, LVV
Näytä puhelinnumero
+358 40 708 4064
Pyydä lisätietoa
