Vuokrataan toimistotilat - Helsinki
Mikonkatu 8, Keskusta, 00100 Helsinki #10801156
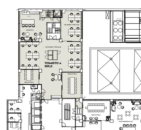
Toimistotilaa keskeisellä paikalla Helsingin ydinkeskustassa.
Tämä 309 m² toimistotila sijaitsee kiinteistön 4. kerroksessa. Toimistossa on huoneita, avotilaa sekä omat wc-tilat. Keittiö on mahdollista rakentaa.
Mikonkatu 8 eli Aikatalo sijaitsee Ateneumin takana Helsingin keskustassa. Sijainti aivan rautatieaseman sekä Rautatientorin linja-autoaseman lähellä takaa loistavat julkisen liikenteen yhteydet. Myös Helsingin yliopiston metroasema on aivan lyhyen kävelymatkan päässä. Henkilöautoilijoille löytyy parkkitilaa Aikatalon ja WTC:n pysäköintihalleista.
Kysy lisää numerosta 044 723 4700 tai info@bref.fi. Palvelumme on tilanhakijoille ilmainen.
Hissi
Bureau Real Estate Finland Oy
Lars Sonckin kaari 16, 02600 Espoo
Näytä puhelinnumero
0447234700
Bureau Real Estate Finland Oy
https://www.bref.fi