Vuokrataan toimistotilat - Helsinki
Salomonkatu 17 B, Keskusta, 00100 Helsinki #10801138
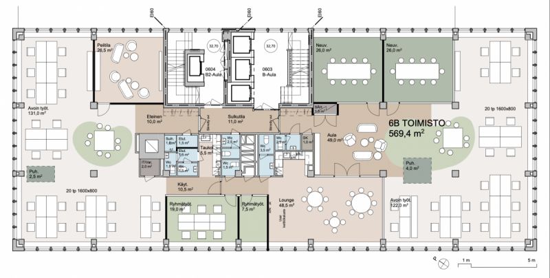
Vuokrataan siisti ja valoisa toimistotila Autotalosta keskeltä Kamppia. Tilassa on valoisaa avotoimistoa ja eri kokoisia neuvotteluhuoneita. Tilaa on mahdollista muokata seuraavalle käyttäjälle sopivaksi.
Talon ylimmästä kerroksessa upea Sky Lounge, jossa erikseen vuokrattavissa olevat kokous- ja saunatilat.
Kiinteistössä tehty mittava perusparannushanke muutama vuosi sitten. Talon aulatilat uusittiin samalla ja alakerrassa toimii suosittuja lounasravintoloita. Autoilijoille löytyy parkkipaikkoja talon alta autohallista. Pyöräilijöille pyöräparkki, suihkut ja pukuhuonetilat.
Erinomaiset julkiset kulkuyhteydet, metro- ja linja-autoasema aivan vieressä ja juna-asemalle muutaman minuutin kävelymatka.
Lisätietoja soita 020 730 4530 tai info@repoint.fi. Palvelumme on tilanhakijalle ilmainen.
Repoint Toimitilat Oy
Itälahdenkatu 22 B, 00210 Helsinki
Näytä puhelinnumero
020 730 4530
Lisätietoja soita Näytä puhelinnumero 020 730 4530 tai info@repoint.fi
https://repoint.fi/