Vuokrataan toimistotilat, työtilat - Porvoo
Kipinätie 1, 06150 Porvoo #10801089
Vuokraa valoisa katutason toimistotila Porvoon Tarmolasta! Vuokra:8,20 €/m²/kk + alv
Osoite
Kipinätie 1, 06150 Porvoo
Tilatyyppi
Toimistotilaa
280 m2
Työtilaa
280 m2
Yhteensä
280 m2
Vuokra
8,20 €/m²/kk + alv
Vuokraan sisältyy lämpö
Muuta
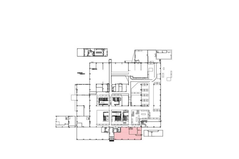
Tarmolassa on nyt vuokrattavana iso, hiljattain remontoitu toimistotila. Tila on ison toimistotalon katutasossa, ikkunanäkymä etupihalle päin.
Tilaan kulku pääovista oikeanpuoleiseen tilaan. Huoneiston pinta-ala on noin 280 m² ja se on pääosin avonaista tilaa ja sinne mahtuu runsaasti työpisteitä. Tilaa voidaan myös jakaa pienempiin huoneisiin väliseinin. Takaosassa on keittiö, wc-tilat ja neuvotteluhuone. Useiden ikkunoiden ansiosta tila on valoisa ja avara. Rakennuksessa on moderni Enerventin koneellinen ilmanvaihto ja ilmastointi, joka takaa miellyttävän ja raikkaan sisäilman.
Toimistotalon pääovista avautuva aula on valoisa ja tyylikäs. Eteisaulassa ei ole aulapalvelua, mutta siihen on hyvä vastaanottaa yritysvieraita. Aulasta myös kulku toiseen kerrokseen ja pukuhuoneisiin/suihkutiloihin.
Piha-alue on siisti ja asfaltoitu ja pihassa on hyvin parkkipaikkoja. Alue on aidattu ja siinä on sähköinen ajoportti. Tarmolan kaikki kaupanpalvelut ja lounasravintolat ovat lähietäisyydellä
Rakennus sijaitsee hyvällä paikalla. Sekä Porvoon keskustaan että moottoritielle on lyhyt matka.
Tyylikkäät ja raikkaat tilat hyväkuntoisessa toimistotalossa!
Kohdetiedot
Sijainti
Katuosoite: Kipinätie 1, 06150 Porvoo
Kaupunginosa: Tarmola
Ympäristö: Teollisuusalue
Rakennus/huoneisto
Pinta-alat: Noin 280 m²
Huoneistoselitelmä: Toimistotilat, keittiö, wc
Kunto, varusteet ja palvelut: Remontoidut tilat. Pääosin avonaista tilaa, keittiö, wc, arkistointiin pieni varastotila. Tarmolan kaupanpalvelut lähellä
Pysäköinti: Pihalla, aidattu alue
Vapautuu: Sopimuksen mukaan/Nopeasti
Vuokrahinta ja kulut
Kuukausivuokra: 8,20 €/m²/kk + alv
Sähkömaksu: Kulutuksen mukaan
Vesimaksu: Kulutuksen mukaan
Lämmitys: Kaukolämpö sisältyy vuokraan
Muuta: Vakuus 3kk vuokraa vastaava summa, minimisopimus 12kk ja luottotietojen on oltava kunnossa
Tilaan kulku pääovista oikeanpuoleiseen tilaan. Huoneiston pinta-ala on noin 280 m² ja se on pääosin avonaista tilaa ja sinne mahtuu runsaasti työpisteitä. Tilaa voidaan myös jakaa pienempiin huoneisiin väliseinin. Takaosassa on keittiö, wc-tilat ja neuvotteluhuone. Useiden ikkunoiden ansiosta tila on valoisa ja avara. Rakennuksessa on moderni Enerventin koneellinen ilmanvaihto ja ilmastointi, joka takaa miellyttävän ja raikkaan sisäilman.
Toimistotalon pääovista avautuva aula on valoisa ja tyylikäs. Eteisaulassa ei ole aulapalvelua, mutta siihen on hyvä vastaanottaa yritysvieraita. Aulasta myös kulku toiseen kerrokseen ja pukuhuoneisiin/suihkutiloihin.
Piha-alue on siisti ja asfaltoitu ja pihassa on hyvin parkkipaikkoja. Alue on aidattu ja siinä on sähköinen ajoportti. Tarmolan kaikki kaupanpalvelut ja lounasravintolat ovat lähietäisyydellä
Rakennus sijaitsee hyvällä paikalla. Sekä Porvoon keskustaan että moottoritielle on lyhyt matka.
Tyylikkäät ja raikkaat tilat hyväkuntoisessa toimistotalossa!
Kohdetiedot
Sijainti
Katuosoite: Kipinätie 1, 06150 Porvoo
Kaupunginosa: Tarmola
Ympäristö: Teollisuusalue
Rakennus/huoneisto
Pinta-alat: Noin 280 m²
Huoneistoselitelmä: Toimistotilat, keittiö, wc
Kunto, varusteet ja palvelut: Remontoidut tilat. Pääosin avonaista tilaa, keittiö, wc, arkistointiin pieni varastotila. Tarmolan kaupanpalvelut lähellä
Pysäköinti: Pihalla, aidattu alue
Vapautuu: Sopimuksen mukaan/Nopeasti
Vuokrahinta ja kulut
Kuukausivuokra: 8,20 €/m²/kk + alv
Sähkömaksu: Kulutuksen mukaan
Vesimaksu: Kulutuksen mukaan
Lämmitys: Kaukolämpö sisältyy vuokraan
Muuta: Vakuus 3kk vuokraa vastaava summa, minimisopimus 12kk ja luottotietojen on oltava kunnossa
Vapautuu
Nopeasti
Katutasossa
Näkyvällä paikalla
Ota yhteyttä
Tilat.fi
KTM, LKV Antti Soivio
Näytä puhelinnumero
0400 446 553
OTM, LKV Riikka Tuominen
Näytä puhelinnumero
0400 551 790
KTM, LKV Maria-Sofia Puhakka
Näytä puhelinnumero
0400-150330
Yrityksen virallinen nimi: LKV Toimitilaa.fi Oy. Toimitilojen välitykseen erikoistunut yritys.
http://www.tilat.fiPyydä lisätietoa
