Vuokrataan tuotantotilat, varastotilat, työtilat, autotalli/-hallitilat - Porvoo
Raudoittajantie 5, 06450 Porvoo #10801079
Laadukas teollisuushallitila vuokrattavana!
Osoite
Raudoittajantie 5, 06450 Porvoo
Tilatyyppi
Tuotantotilaa
215 m2
Varastotilaa
215 m2
Työtilaa
215 m2
Autotalli/-hallitilaa
215 m2
Yhteensä
215 m2
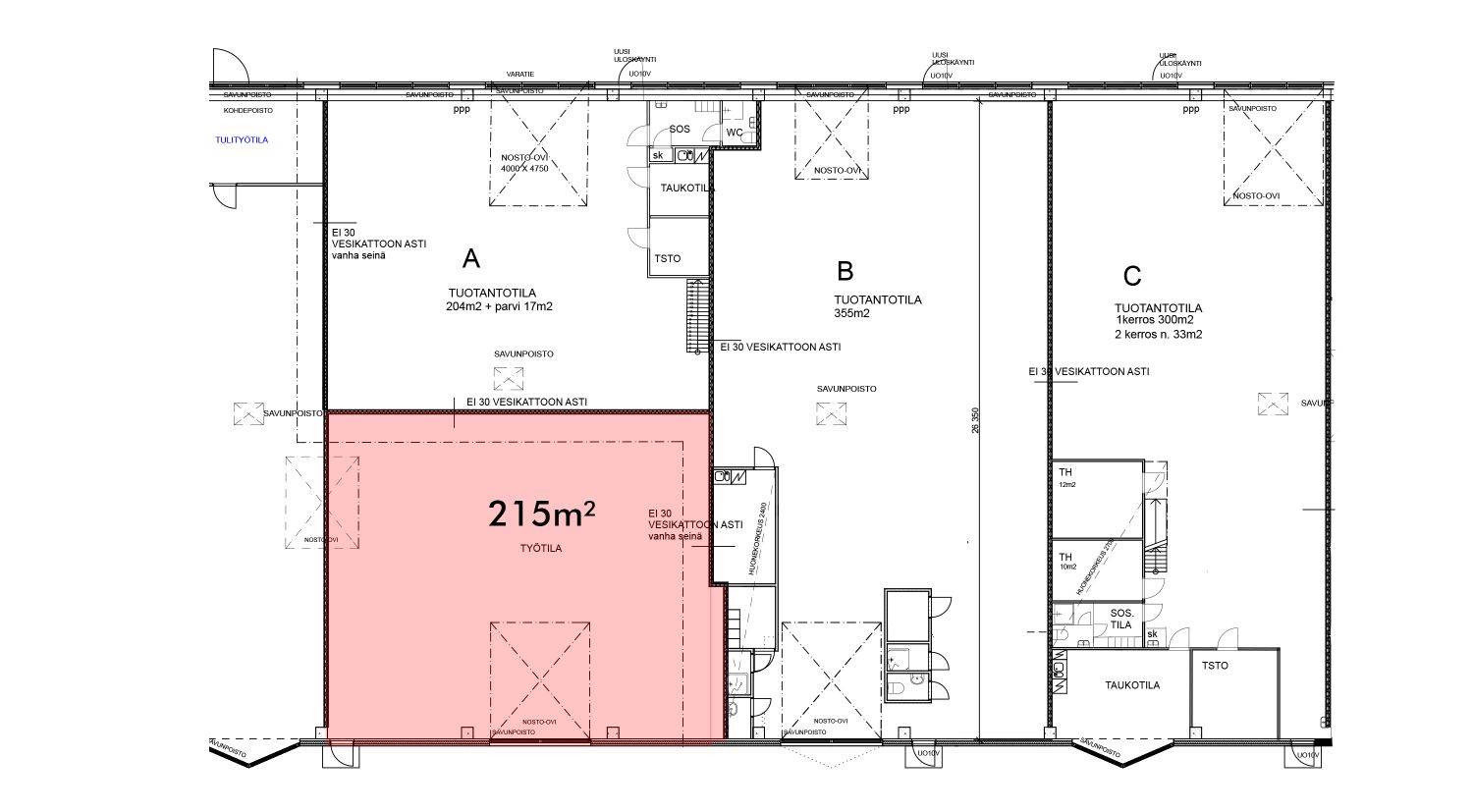
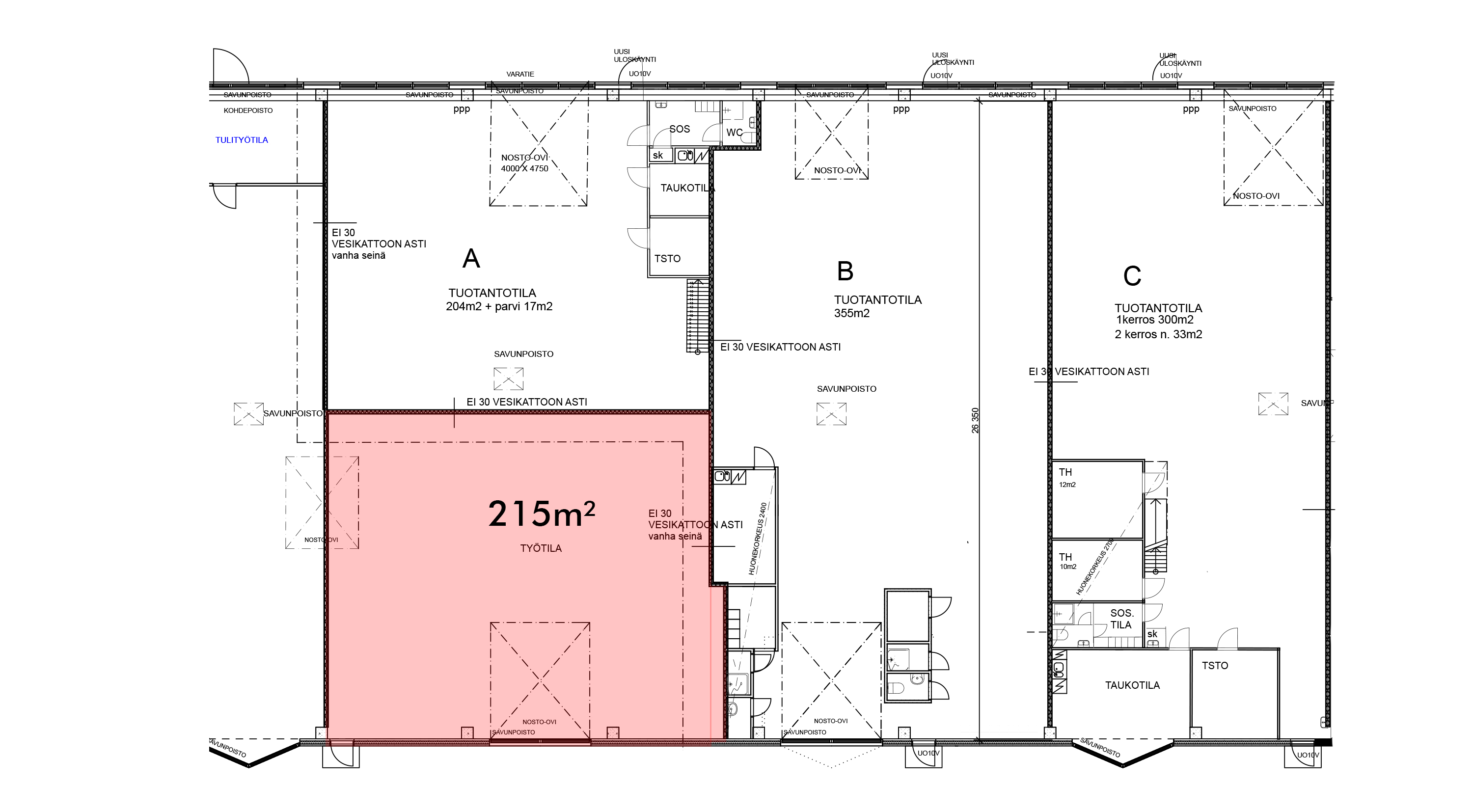
Pohjapiirros
Virtuaaliesittely
Vuokra
1800 €/kk + alv
Vuokraan sisältyy lämpö
Muuta
Ölstensin teollisuusalueella Porvoon Kruunun yrityspuiston alueella vapaana korkeaa ja monipuolista teollisuushallitilaa.
Tila F 215 m² Hallitilan hyvään varusteluun kuuluu leveä nosto-ovi (L4,3 m x K4,7 m) käyntiovella, lattiakaivo, toimistohuone, wc ja siivouskomero. Hallin vapaa korkeus noin 7 metriä. Keskuslämmitys, mikä sisältyy vuokraan. Tila merkittynä pohjaan punaisella.
Tilat sopivat vain arvonlisäverolliseen yrityskäyttöön ja niitä voidaan tarvittaessa varustella omistajan puolesta lisää (vaikuttaa vuokrahintaan).
Rakennus sijaitsee aidatulla, asfaltoidulla alueella. Yritysalueella on useampi tallentava valvontakamera sekä GSM-ohjatut portit.
Kruunun alueella on kierrätettävien materiaalien keräyspisteet paperille, pahville sekä energia-, puu- että metallijätteelle.
Alueella myös pienempiä hallitiloja vuokrattavana – kysy tästä lisää!
Kohdetiedot
Sijainti
Katuosoite: Raudoittajantie 5 F, 06450 Porvoo
Kaupunginosa: Ölstens
Ympäristö: Teollisuusalue
Rakennus/huoneisto
Pinta-alat: Noin 215 m²
Rakennus: Teollisuushallirakennus
Rakennusvuosi: 2002
Huoneistoselitelmä: Tuotantotila/varastotila
Kunto, varusteet ja palvelut: Hyvä kunto, nosto-ovet + käyntiovet, lattiakaivo, wc, siivouskomero. Aidattu piha-alue.
Vapautuu: Heti vapaa
Pysäköinti: Pihalla
Vuokrahinta ja kulut
Kuukausivuokra: 1800 €/kk + alv
Vesimaksu: Kulutuksen mukaan
Sähkö: Mittauksen mukaan
Lämmitys: Sisältyy vuokraan
Muuta: Minimisopimuskausi 12 kk, vakuus 3 kk:n vuokraa vastaava summa, luottotietojen oltava kunnossa
Tila F 215 m² Hallitilan hyvään varusteluun kuuluu leveä nosto-ovi (L4,3 m x K4,7 m) käyntiovella, lattiakaivo, toimistohuone, wc ja siivouskomero. Hallin vapaa korkeus noin 7 metriä. Keskuslämmitys, mikä sisältyy vuokraan. Tila merkittynä pohjaan punaisella.
Tilat sopivat vain arvonlisäverolliseen yrityskäyttöön ja niitä voidaan tarvittaessa varustella omistajan puolesta lisää (vaikuttaa vuokrahintaan).
Rakennus sijaitsee aidatulla, asfaltoidulla alueella. Yritysalueella on useampi tallentava valvontakamera sekä GSM-ohjatut portit.
Kruunun alueella on kierrätettävien materiaalien keräyspisteet paperille, pahville sekä energia-, puu- että metallijätteelle.
Alueella myös pienempiä hallitiloja vuokrattavana – kysy tästä lisää!
Kohdetiedot
Sijainti
Katuosoite: Raudoittajantie 5 F, 06450 Porvoo
Kaupunginosa: Ölstens
Ympäristö: Teollisuusalue
Rakennus/huoneisto
Pinta-alat: Noin 215 m²
Rakennus: Teollisuushallirakennus
Rakennusvuosi: 2002
Huoneistoselitelmä: Tuotantotila/varastotila
Kunto, varusteet ja palvelut: Hyvä kunto, nosto-ovet + käyntiovet, lattiakaivo, wc, siivouskomero. Aidattu piha-alue.
Vapautuu: Heti vapaa
Pysäköinti: Pihalla
Vuokrahinta ja kulut
Kuukausivuokra: 1800 €/kk + alv
Vesimaksu: Kulutuksen mukaan
Sähkö: Mittauksen mukaan
Lämmitys: Sisältyy vuokraan
Muuta: Minimisopimuskausi 12 kk, vakuus 3 kk:n vuokraa vastaava summa, luottotietojen oltava kunnossa
Vapautuu
Heti
Rakennusvuosi
2002
Kerros
1 / 1
Katutasossa
Näkyvällä paikalla
Ota yhteyttä
Tilat.fi
KTM, LKV Antti Soivio
Näytä puhelinnumero
0400 446 553
OTM, LKV Riikka Tuominen
Näytä puhelinnumero
0400 551 790
KTM, LKV Maria-Sofia Puhakka
Näytä puhelinnumero
0400-150330
HTM, LKV Aleksandra Riki
Näytä puhelinnumero
0400-211288
LKV Tilat.fi Oy on toimitilojen välitykseen erikoistunut yritys.
http://www.tilat.fiPyydä lisätietoa
