Vuokrataan - Helsinki
Erottajankatu 15, 00130 Helsinki #10801045
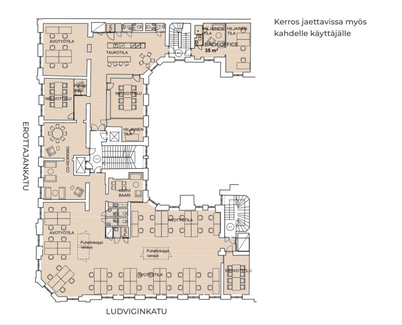
Vuokrataan 5. kerroksen 528m2 toimistotila huippupaikalla. Tämä upea toimitila tarjoaa yrityksellesi koko kerroksen käyttöön Helsingin arvostetulla Erottajankadulla. Tila sijaitsee historiallisessa ja hyvin hoidetussa kiinteistössä, yhdistäen arvokkaan vanhan ajan tunnelman ja modernit toimistoratkaisut. Avarat ja valoisat tilat mahdollistavat monipuoliset käyttötarkoitukset ja muunneltavissa olevat pohjaratkaisut, jotka voidaan räätälöidä juuri yrityksesi tarpeisiin. Kerros voidaan jakaa kahdelle käyttäjälle.
Sijainti Helsingin keskustassa tarjoaa loistavat liikenneyhteydet ja läheiset palvelut, kuten ravintolat, kahvilat ja erikoisliikkeet, mikä tekee tästä tilasta ihanteellisen paikan niin työntekijöille kuin asiakkaillekin. Tämä toimitila on harvinainen mahdollisuus yhdistää näkyvä ja keskeinen sijainti sekä monipuoliset tilaratkaisut. Tervetuloa tutustumaan!
Kysy lisää: jouko.raitanen@rhg.fi/0504695444
RHG Real Estate
Hämeenkatu 2 B20, 20500 Turku
Näytä puhelinnumero
020 734 4020
Jouko Raitanen
Näytä puhelinnumero
050 469 5444
