Vuokrataan tuotantotilat - Kuopio
Microkatu 1, Savilahti, 70210 Kuopio #10800560
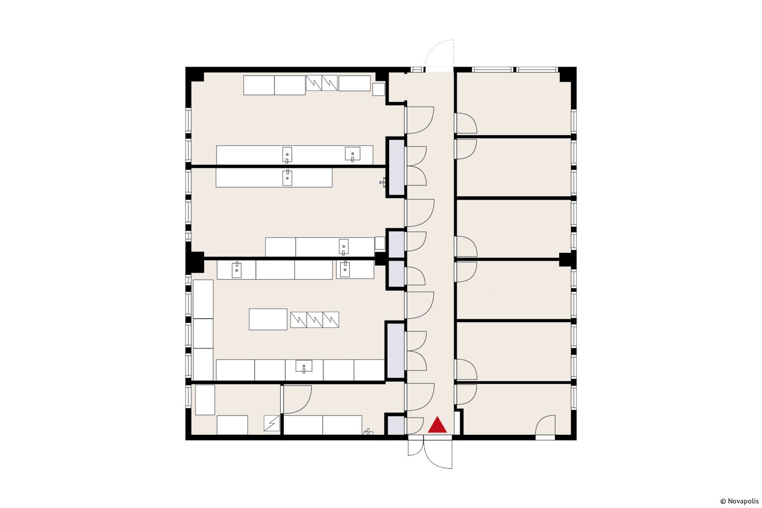
Vuokraamme muuntojoustavan 204,5 m² laboratorion ja toimistotilan yhdistelmän keskeiseltä sijainnilta kasvavassa ja kehittyvässä Savilahdessa, jossa kolme koulutusastetta, tutkimus ja liike-elämä kohtaavat.
Pinta-alaa on reilusti ja vieressä sijaitseva toimistopuoli mahdollistaa toimivan kokonaisuuden rakentamisen tarpeidenne mukaan.
Lounasravintoloita lähettyvillä on kolme ja ne sijaitsevat kävelymatkan päässä viereisissä rakennuksissa.
Eri kokoisia kokoustiloja on runsas valikoima, joista valtaosa soveltuu varustuksiltaan hybridikokouksiin. Kokoustilojen lisäksi varattavissasi on edustava saunatila.
Kattavat arjen palvelut, kuten aulapalvelut, yhteisölliset ja modernit CoWork-yhteistyöskentelytilat, parturi-kampaamo, kuntosali ja hierontapalvelut, ovat saatavillasi viereisissä rakennuksissa.
Sijainti on Microkadun kampuksellamme, hyvien liikenneyhteyksien varrella. Kuopion keskusta on alle 10 minuutin matkan päässä. Kiinteistölle on erinomaiset kulkuyhteydet julkisella liikenteellä sekä autolla.
Autolla liikkuville pysäköintitilaa on runsaasti pysäköintitalossa sekä piha-alueilla.
Tutustu kampuksiimme: https://www.youtube.com/watch?v=LHHoEo9Yk_k
Tutustu Novapolikseen: https://youtu.be/OLjEOn-3IfI
Mikäli kohde kiinnostaa teitä, ota yhteyttä ja tule tutustumaan Novapoliksen tiloihin!
Meillä on myös laaja kirjo erilaisia ja eri kokoisia tiloja, jotka eivät kaikki välttämättä näy vapaiden toimitilojen haussa tai jokin tila on vasta vapautumassa. Myyntitiimimme etsii yhdessä kanssanne tarpeisiinne sopivan tilaratkaisun!
Novapolis
Viestikatu 7, 70600 Kuopio
Näytä puhelinnumero
040 718 9415
Veli-Pekka Ronkainen
Näytä puhelinnumero
040 128 2818
Henri Kuronen
Näytä puhelinnumero
044 033 1293
