Vuokrataan toimistotilat - Helsinki
Vanha Helsingintie 18, Malmi, 00700 Helsinki #10800465
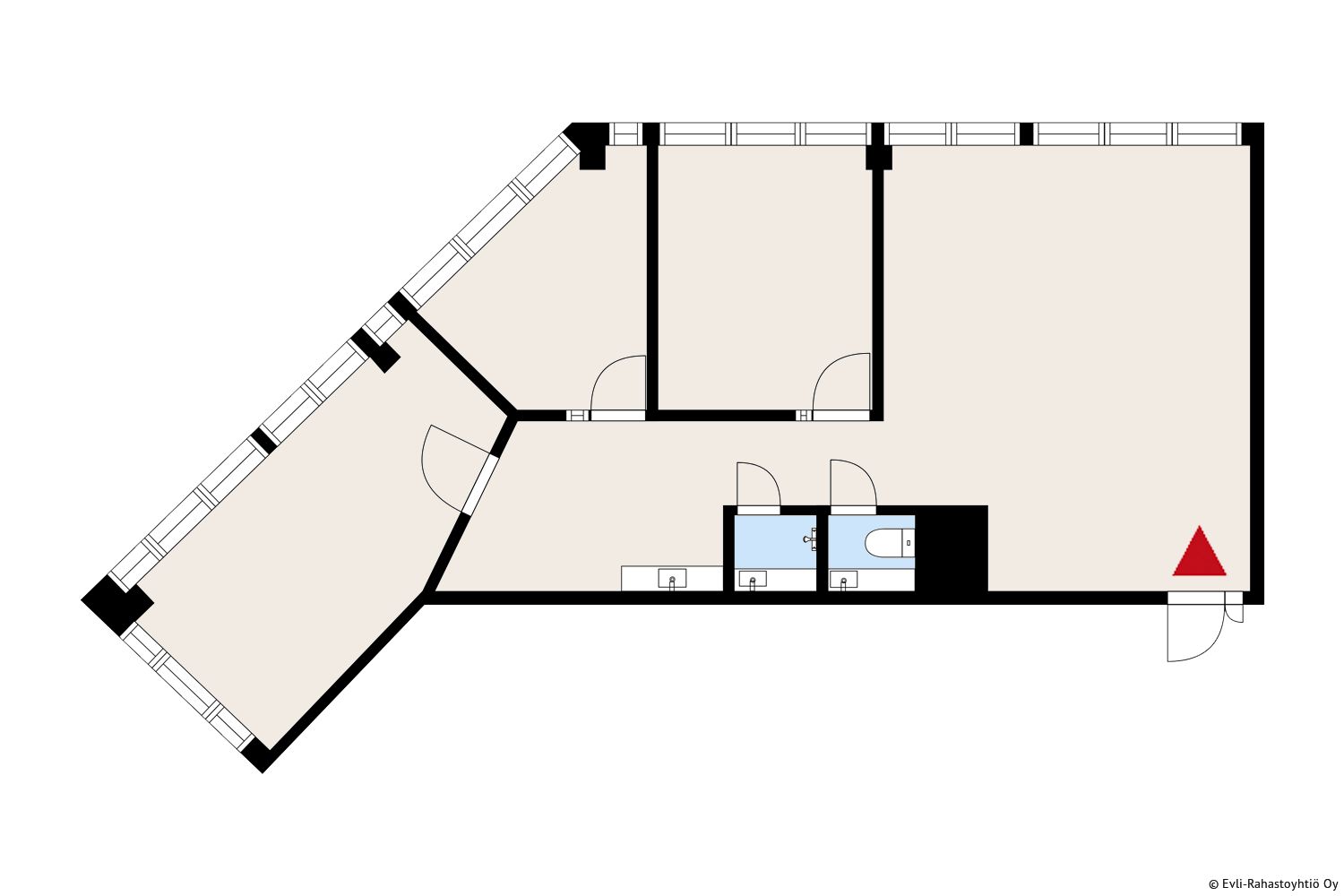
Vuokrattavana siisti kolmannen kerroksen toimistotila, joka koostuu työhuoneista sekä avotilasta. Tilassa on myös suihku- ja wc-tilat. Kiinteistö sijaitsee Helsingin Malmilla, jonne on erinomaiset kulkuyhteydet niin julkisilla kulkuneuvoilla kuin omalla autolla. Malmin monipuoliset julkiset ja kaupalliset palvelut ovat kävelyetäisyydellä. Ota yhteyttä ja kysy lisätietoja!
Osoite
Vanha Helsingintie 18, 00700 Helsinki
Tilatyyppi
Toimistotilaa
108 m2
Kiinteistö
Vanha Helsingintie 18
Pysäköinti
Kiinteistössä vuokrattavissa pysäköintipaikkoja.
Muuta
Tilan ominaisuudet:
Vapautuu
Heti vapaa
Kerros
3.
Energiatehokkuusluokka
D
Ota yhteyttä
Evli
Aleksanterinkatu 19, 00100 Helsinki
Näytä puhelinnumero
020 155 8610
Kukka Floor
Näytä puhelinnumero
09 4766 9480
Pyydä lisätietoa
